---
title: "Afdeling 1 - Emmabodavej"
description: "Afdeling 1 - Emmabodavej"
date: "2026-05-15"
created: "2025-02-10"
---

-
-
-
-

https://maps.google.dk/?q=55.6664034,11.4109915

# Emmabodavej

Afdeling 1

## Velkommen til Emmabodavej 24-32 & 27-37

Emmabodavej er opført i 1962 og består af 11 fritliggende huse. Husene er opført som enkelthuse i et plan med 3 eller 4 rum. Det er tilladt at holde 1 husdyr. I området findes skole, børnehave, vuggestue, sportshal, offentlig transport samt indkøbsmuligheder.

## Faciliteter

Husdyr

Ja

Det er tilladt at holde et husdyr pr. lejemål.

TV og internet

Ja

Lejer skal selv vælge sin TV og internetudbyder og betale direkte til udbyderen.

Varme

Se mere

Afdelingen er tilsluttet Jyderup Fjernvarmeværk. Lejer tilmelder sig selv og afregner direkte til forsyningsselskabet.

Vaskeri

Nej

Der findes ikke vaskeri i afdelingen

Hårde hvidevarer

Ja

Der er komfur, men lejer skal selv medbringe køleskab.

## Boligtyper i afdelingen

Familiebolig

3 værelses

Familiebolig

Familiebolig

4 værelses

Familiebolig

##

Angivet husleje er ex. forbrug

Boligtype

Værelser

Størrelse

Husleje

Indskud/dp

Plantegning

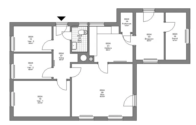
Familiebolig

3

96 m²

4480 kr.

17300 kr.

![](https://vab.dk/i/MOLIRIMEDIA/3a90aed0-01a1-492d-c4f2-08dd476e8eef?width=800)






![](https://vab.dk/i/MOLIRIMEDIA/3a90aed0-01a1-492d-c4f2-08dd476e8eef?width=800)

![](https://vab.dk/i/MOLIRIMEDIA/5653095e-b2ab-4b91-c0ca-08dd476e8eef?width=800)

![](https://vab.dk/i/MOLIRIMEDIA/8c95560b-44a7-41b3-ca68-08dd476e8eef?width=800)

![](https://vab.dk/i/MOLIRIMEDIA/3a90aed0-01a1-492d-c4f2-08dd476e8eef?width=800)

![](https://vab.dk/i/MOLIRIMEDIA/5653095e-b2ab-4b91-c0ca-08dd476e8eef?width=800)

![](https://vab.dk/i/MOLIRIMEDIA/8c95560b-44a7-41b3-ca68-08dd476e8eef?width=800)

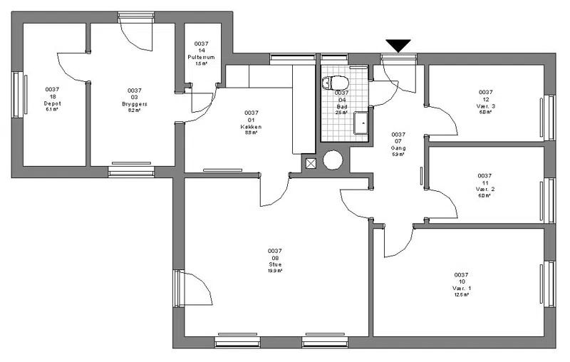
Familiebolig

4

96.2 m²

4480 kr.

17300 kr.

![](https://vab.dk/i/MOLIRIMEDIA/9e5ad621-f969-4943-bb0b-08dd476e8eef?width=800)






![](https://vab.dk/i/MOLIRIMEDIA/9e5ad621-f969-4943-bb0b-08dd476e8eef?width=800)

![](https://vab.dk/i/MOLIRIMEDIA/cad02f52-806d-4e00-b7e3-08dd476e8eef?width=800)

![](https://vab.dk/i/MOLIRIMEDIA/13a7719c-a8c8-4253-d007-08dd476e8eef?width=800)

![](https://vab.dk/i/MOLIRIMEDIA/9e5ad621-f969-4943-bb0b-08dd476e8eef?width=800)

![](https://vab.dk/i/MOLIRIMEDIA/cad02f52-806d-4e00-b7e3-08dd476e8eef?width=800)

![](https://vab.dk/i/MOLIRIMEDIA/13a7719c-a8c8-4253-d007-08dd476e8eef?width=800)

## Afdelingens afstande til

Indkøbsmuligheder

meter

Park & natur

meter

Træning

meter

Bus

meter

Skole/uddanelse

meter

Institution

meter

## Afdelingsdokumenter

Her finder du nyttig information om din afdeling, såsom husorden, vedligeholdelse af dit lejemål m.m.

###

                                                Budget

[afd. 1 - 2015.pdf](https://vab.dk/p/Files/boligdata/BeboerMapper/1/Budget/afd.-1---2015.pdf)
                                            [Afd. 1 - 2016.pdf](https://vab.dk/p/Files/boligdata/BeboerMapper/1/Budget/Afd.-1---2016.pdf)
                                            [afd. 1 - 2017.pdf](https://vab.dk/p/Files/boligdata/BeboerMapper/1/Budget/afd.-1---2017.pdf)
                                            [afd. 1 - 2018.pdf](https://vab.dk/p/Files/boligdata/BeboerMapper/1/Budget/afd.-1---2018.pdf)
                                            [afd. 1 - 2019.pdf](https://vab.dk/p/Files/boligdata/BeboerMapper/1/Budget/afd.-1---2019.pdf)
                                            [Afd. 1 - 2020.pdf](https://vab.dk/p/Files/boligdata/BeboerMapper/1/Budget/Afd.-1---2020.pdf)
                                            [afd. 1 - 2021.pdf](https://vab.dk/p/Files/boligdata/BeboerMapper/1/Budget/afd.-1---2021.pdf)
                                            [afd. 1 - 2022.pdf](https://vab.dk/p/Files/boligdata/BeboerMapper/1/Budget/afd.-1---2022.pdf)
                                            [afd. 1 - 2023.pdf](https://vab.dk/p/Files/boligdata/BeboerMapper/1/Budget/afd.-1---2023.pdf)
                                            [afd. 1 - 2024.pdf](https://vab.dk/p/Files/boligdata/BeboerMapper/1/Budget/afd.-1---2024.pdf)
                                            [afd. 1 - 2025.pdf](https://vab.dk/p/Files/boligdata/BeboerMapper/1/Budget/afd.-1---2025.pdf)
                                            [afd. 1 - 2026.pdf](https://vab.dk/p/Files/boligdata/BeboerMapper/1/Budget/afd.-1---2026.pdf)

###

                                                Markvandringsrapport

[afd. 1 - 2020.pdf](https://vab.dk/p/Files/boligdata/BeboerMapper/1/Markvandringsrapport/afd.-1---2020.pdf)

###

                                                Råderet

[Afd. 1 Råderetskatalog.pdf](https://vab.dk/p/Files/boligdata/BeboerMapper/1/R&#xE5;deret/Afd.-1-R&#xE5;deretskatalog.pdf)

###

                                                Drift- og vedligeholdelsesplaner

[afd. 1 - 2022.pdf](https://vab.dk/p/Files/boligdata/BeboerMapper/1/Drift-%20og%20vedligeholdelsesplaner/afd.-1---2022.pdf)
                                            [afd. 1 - 2025.pdf](https://vab.dk/p/Files/boligdata/BeboerMapper/1/Drift-%20og%20vedligeholdelsesplaner/afd.-1---2025.pdf)
                                            [Afd. 1 - 2026.pdf](https://vab.dk/p/Files/boligdata/BeboerMapper/1/Drift-%20og%20vedligeholdelsesplaner/Afd.-1---2026.pdf)

###

                                                Vejledning til budget og regnskab

[Folder Læs og forstå budget og regnskab.pdf](https://vab.dk/p/Files/boligdata/BeboerMapper/F&#xE6;lles/Vejledning%20til%20budget%20og%20regnskab/Folder-L&#xE6;s-og-forst&#xE5;-budget-og-regnskab.pdf)

###

                                                Behandling og Vedligeholdelse (Fælles)

[Behandling og vedligeholdelsesvejledning.pdf](https://vab.dk/p/Files/boligdata/BeboerMapper/F&#xE6;lles/Behandling_Vedligeholdelse/Behandling-og-vedligeholdelsesvejledning.pdf)
                                            [Det kan betale sig at spare på ressourcerne.pdf](https://vab.dk/p/Files/boligdata/BeboerMapper/F&#xE6;lles/Behandling_Vedligeholdelse/Det-kan-betale-sig-at-spare-p&#xE5;-ressourcerne.pdf)
                                            [Luft ud.pdf](https://vab.dk/p/Files/boligdata/BeboerMapper/F&#xE6;lles/Behandling_Vedligeholdelse/Luft-ud.pdf)
                                            [Standardvedligeholdelsesreglement.pdf](https://vab.dk/p/Files/boligdata/BeboerMapper/F&#xE6;lles/Behandling_Vedligeholdelse/Standardvedligeholdelsesreglement.pdf)
                                            [Termostatventiler.pdf](https://vab.dk/p/Files/boligdata/BeboerMapper/F&#xE6;lles/Behandling_Vedligeholdelse/Termostatventiler.pdf)
                                            [Vandmåler.pdf](https://vab.dk/p/Files/boligdata/BeboerMapper/F&#xE6;lles/Behandling_Vedligeholdelse/Vandm&#xE5;ler.pdf)
                                            [Vedligeholdelse af sanitet.pdf](https://vab.dk/p/Files/boligdata/BeboerMapper/F&#xE6;lles/Behandling_Vedligeholdelse/Vedligeholdelse-af-sanitet.pdf)
                                            [Vedligeholdelse flyttekøkkener.pdf](https://vab.dk/p/Files/boligdata/BeboerMapper/F&#xE6;lles/Behandling_Vedligeholdelse/Vedligeholdelse-flyttek&#xF8;kkener.pdf)
                                            [Vedligeholdelse laminatbordplader.pdf](https://vab.dk/p/Files/boligdata/BeboerMapper/F&#xE6;lles/Behandling_Vedligeholdelse/Vedligeholdelse-laminatbordplader.pdf)

###

                                                Husorden (Fælles)

[Liste over forbudte hunderacer.pdf](https://vab.dk/p/Files/boligdata/BeboerMapper/F&#xE6;lles/Husorden/Liste-over-forbudte-hunderacer.pdf)
                                            [Standard husorden - Arabisk.pdf](https://vab.dk/p/Files/boligdata/BeboerMapper/F&#xE6;lles/Husorden/Standard-husorden---Arabisk.pdf)
                                            [Standard husorden.pdf](https://vab.dk/p/Files/boligdata/BeboerMapper/F&#xE6;lles/Husorden/Standard-husorden.pdf)

###

                                                Råderet (Fælles)

[Råderetsreglerne.pdf](https://vab.dk/p/Files/boligdata/BeboerMapper/F&#xE6;lles/R&#xE5;deret/R&#xE5;deretsreglerne.pdf)

## Afdelingsbestyrelsesmedlemmer

Navn

Titel

Email

Telefon

Ingen bestyrelse.

Ej konstitueret

## Kontaktpersoner i afdelingen

### Anne Suhr

Udlejningssagsbehandler

udlejning@vab.dk

### Channie Schleicher

Teknisk sagsbehandler

midt@vab.dk

### Evy Marie Nielsen

Driftschef

midt@vab.dk

### Helle Trier Hansen

Økonomisk sagsbehandler

okonomi@vab.dk

### Maria Nørregaard Nielsen

Inspektør

midt@vab.dk

### Vinni Barsøe

Teknisk sagsbehandler

midt@vab.dk
