---
title: "Afdeling 106 - Bakkegården"
description: "Afdeling 106 - Bakkegården"
date: "2026-05-15"
created: "2025-02-10"
---

-
-
-
-
-
-
-

https://maps.google.dk/?q=55.748859,11.4565006

# Bakkegården

Afdeling 106

## Velkommen til Bakkegården 29-47 (U) & 30-52 (L) & 1 lejl. 2-34 & 2-10 (-5)

Afdelingen er opført i 1989, 2004, 2012, 2013 og 2014. Den består af 46 ældreboliger og 29 plejeboliger. 18 ældreboliger er 1 rums - resten er 2 rums.

Kontakt Kommunen for yderligere information om opskrivning.

## Faciliteter

Husdyr

Nej

Husdyr ikke tilladt

TV og internet

Ja

Lejer skal selv vælge sin TV og internetudbyder og betale direkte til udbyderen. Der er fibernet.

Varme

Se mere

Fælles gasfyr.

Hårde hvidevarer

Ja

Køleskab, emhætte, dropinette og indb. ovn.

ABA-anlæg

Ja

Der forefindes ABA-anlæg (aut. brandalarmeringsanlæg) i ældreboligerne.

## Boligtyper i afdelingen

Ældrebolig

1 værelses

Ældrebolig

Ældrebolig

2 værelses

Ældrebolig

Plejebolig

2 værelses

Plejebolig

##

Angivet husleje er ex. forbrug

Boligtype

Værelser

Størrelse

Husleje

Indskud/dp

Plantegning

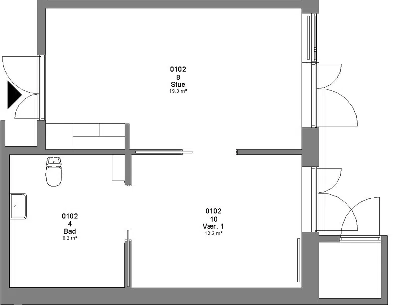
Plejebolig

2

66.4 m²

6062 kr.

25375 kr.

![](https://vab.dk/i/MOLIRIMEDIA/fa30849d-7568-4054-b754-08dd476e8eef?width=800)






![](https://vab.dk/i/MOLIRIMEDIA/fa30849d-7568-4054-b754-08dd476e8eef?width=800)

![](https://vab.dk/i/MOLIRIMEDIA/e8422011-8d88-459e-c740-08dd476e8eef?width=800)

![](https://vab.dk/i/MOLIRIMEDIA/fa30849d-7568-4054-b754-08dd476e8eef?width=800)

![](https://vab.dk/i/MOLIRIMEDIA/e8422011-8d88-459e-c740-08dd476e8eef?width=800)

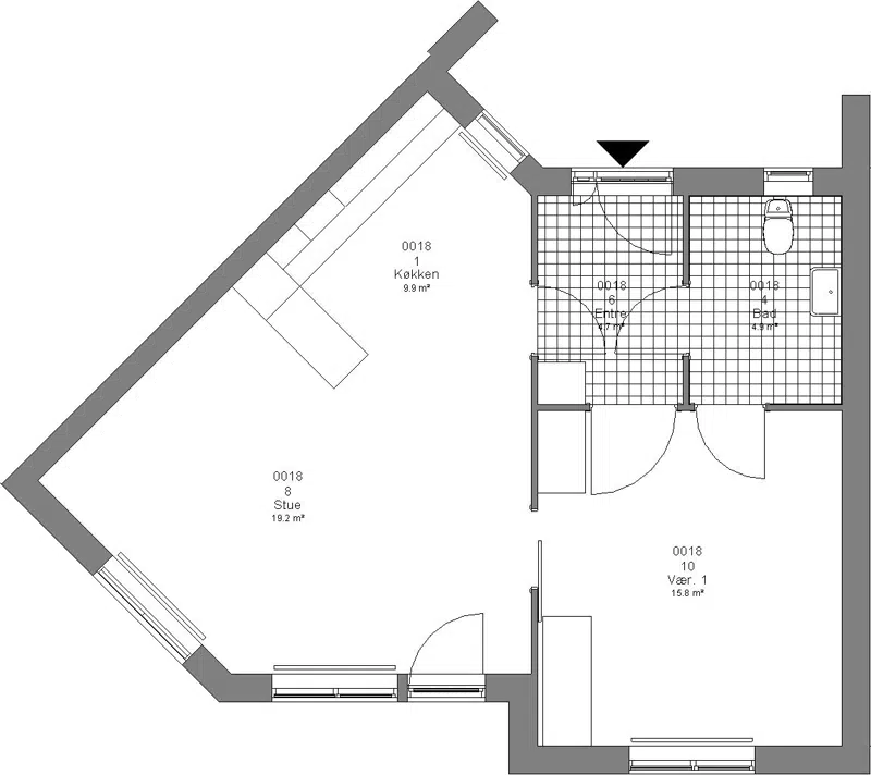
Ældrebolig

1

60 m²

6736 kr.

19703 kr.

![](https://vab.dk/i/MOLIRIMEDIA/c2bcecd7-6009-4500-c4ad-08dd476e8eef?width=800)






![](https://vab.dk/i/MOLIRIMEDIA/c2bcecd7-6009-4500-c4ad-08dd476e8eef?width=800)

![](https://vab.dk/i/MOLIRIMEDIA/53fac00f-c98c-4505-bbe9-08dd476e8eef?width=800)

![](https://vab.dk/i/MOLIRIMEDIA/c2bcecd7-6009-4500-c4ad-08dd476e8eef?width=800)

![](https://vab.dk/i/MOLIRIMEDIA/53fac00f-c98c-4505-bbe9-08dd476e8eef?width=800)

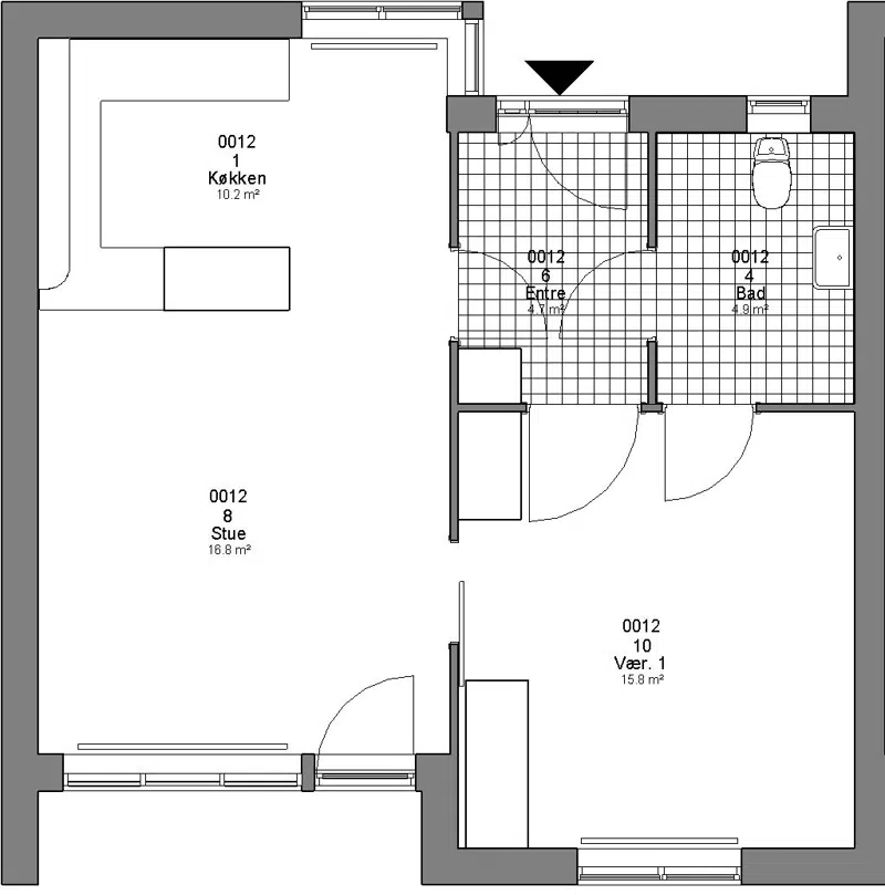
Ældrebolig

2

66 m²

5815 kr.

14160 kr.

![](https://vab.dk/i/MOLIRIMEDIA/6cc7786d-e6eb-4c5f-c77d-08dd476e8eef?width=800)






![](https://vab.dk/i/MOLIRIMEDIA/6cc7786d-e6eb-4c5f-c77d-08dd476e8eef?width=800)

![](https://vab.dk/i/MOLIRIMEDIA/5428e7c9-ecdb-4063-c433-08dd476e8eef?width=800)

![](https://vab.dk/i/MOLIRIMEDIA/6cc7786d-e6eb-4c5f-c77d-08dd476e8eef?width=800)

![](https://vab.dk/i/MOLIRIMEDIA/5428e7c9-ecdb-4063-c433-08dd476e8eef?width=800)

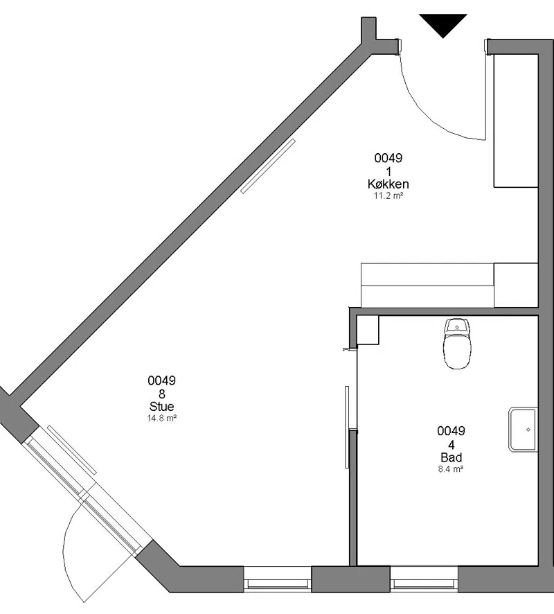
Ældrebolig

2

64 m²

5690 kr.

13720 kr.

![](https://vab.dk/i/MOLIRIMEDIA/bd9c70c5-6c00-4fd8-c29e-08dd476e8eef?width=800)






![](https://vab.dk/i/MOLIRIMEDIA/bd9c70c5-6c00-4fd8-c29e-08dd476e8eef?width=800)

![](https://vab.dk/i/MOLIRIMEDIA/8caa3655-b775-4daa-bd32-08dd476e8eef?width=800)

![](https://vab.dk/i/MOLIRIMEDIA/bd9c70c5-6c00-4fd8-c29e-08dd476e8eef?width=800)

![](https://vab.dk/i/MOLIRIMEDIA/8caa3655-b775-4daa-bd32-08dd476e8eef?width=800)

Ældrebolig

2

53 m²

5015 kr.

11430 kr.

![](https://vab.dk/i/MOLIRIMEDIA/6d423a21-332b-453b-b69f-08dd476e8eef?width=800)






![](https://vab.dk/i/MOLIRIMEDIA/6d423a21-332b-453b-b69f-08dd476e8eef?width=800)

![](https://vab.dk/i/MOLIRIMEDIA/00aa9e8e-0b14-4d40-b6cc-08dd476e8eef?width=800)

![](https://vab.dk/i/MOLIRIMEDIA/6d423a21-332b-453b-b69f-08dd476e8eef?width=800)

![](https://vab.dk/i/MOLIRIMEDIA/00aa9e8e-0b14-4d40-b6cc-08dd476e8eef?width=800)

## Afdelingens afstande til

Indkøbsmuligheder

meter

Park & natur

meter

Træning

meter

Bus

meter

Skole/uddanelse

meter

Institution

meter

## Afdelingsdokumenter

Her finder du nyttig information om din afdeling, såsom husorden, vedligeholdelse af dit lejemål m.m.

###

                                                Behandling og Vedligeholdelse

[Afd. 106 - Brugervejledning Brunata Online.pdf](https://vab.dk/p/Files/boligdata/BeboerMapper/106/Behandling_Vedligeholdelse/Afd.-106---Brugervejledning-Brunata-Online.pdf)

###

                                                Budget

[afd. 106 - 2015.pdf](https://vab.dk/p/Files/boligdata/BeboerMapper/106/Budget/afd.-106---2015.pdf)
                                            [Afd. 106 - 2016.pdf](https://vab.dk/p/Files/boligdata/BeboerMapper/106/Budget/Afd.-106---2016.pdf)
                                            [afd. 106 - 2017.pdf](https://vab.dk/p/Files/boligdata/BeboerMapper/106/Budget/afd.-106---2017.pdf)
                                            [afd. 106 - 2018.pdf](https://vab.dk/p/Files/boligdata/BeboerMapper/106/Budget/afd.-106---2018.pdf)
                                            [Afd. 106 - 2020.pdf](https://vab.dk/p/Files/boligdata/BeboerMapper/106/Budget/Afd.-106---2020.pdf)
                                            [afd. 106 - 2022.pdf](https://vab.dk/p/Files/boligdata/BeboerMapper/106/Budget/afd.-106---2022.pdf)
                                            [afd. 106 - 2023.pdf](https://vab.dk/p/Files/boligdata/BeboerMapper/106/Budget/afd.-106---2023.pdf)
                                            [afd. 106 - 2024.pdf](https://vab.dk/p/Files/boligdata/BeboerMapper/106/Budget/afd.-106---2024.pdf)
                                            [afd. 106 - 2025.pdf](https://vab.dk/p/Files/boligdata/BeboerMapper/106/Budget/afd.-106---2025.pdf)
                                            [afd. 106 - 2026.pdf](https://vab.dk/p/Files/boligdata/BeboerMapper/106/Budget/afd.-106---2026.pdf)

###

                                                Husorden

[Afd. 106 - Tillæg til husorden.pdf](https://vab.dk/p/Files/boligdata/BeboerMapper/106/Husorden/Afd.-106---Till&#xE6;g-til-husorden.pdf)
                                            [Afd. 106.pdf](https://vab.dk/p/Files/boligdata/BeboerMapper/106/Husorden/Afd.-106.pdf)

###

                                                Markvandringsrapport

[afd. 106.pdf](https://vab.dk/p/Files/boligdata/BeboerMapper/106/Markvandringsrapport/afd.-106.pdf)

###

                                                Råderet

[Afd. 106 Råderetskatalog - Bakkegården 29-47 & 30-52.pdf](https://vab.dk/p/Files/boligdata/BeboerMapper/106/R&#xE5;deret/Afd.-106-R&#xE5;deretskatalog---Bakkeg&#xE5;rden-29-47---30-52.pdf)
                                            [Afd. 106 Råderetskatalog - Bakkegården nr. 49 - 83.pdf](https://vab.dk/p/Files/boligdata/BeboerMapper/106/R&#xE5;deret/Afd.-106-R&#xE5;deretskatalog---Bakkeg&#xE5;rden-nr.-49---83.pdf)

###

                                                Drift- og vedligeholdelsesplaner

[afd. 106 - 2023.pdf](https://vab.dk/p/Files/boligdata/BeboerMapper/106/Drift-%20og%20vedligeholdelsesplaner/afd.-106---2023.pdf)
                                            [afd. 106 - 2025.pdf](https://vab.dk/p/Files/boligdata/BeboerMapper/106/Drift-%20og%20vedligeholdelsesplaner/afd.-106---2025.pdf)
                                            [Afd. 106 - 2026.pdf](https://vab.dk/p/Files/boligdata/BeboerMapper/106/Drift-%20og%20vedligeholdelsesplaner/Afd.-106---2026.pdf)

###

                                                Diverse

[afd. 106 - ABA info.pdf](https://vab.dk/p/Files/boligdata/BeboerMapper/106/Diverse/afd.-106---ABA-info.pdf)
                                            [Afd. 106 - Info.pdf](https://vab.dk/p/Files/boligdata/BeboerMapper/106/Diverse/Afd.-106---Info.pdf)

###

                                                Vejledning til budget og regnskab

[Folder Læs og forstå budget og regnskab.pdf](https://vab.dk/p/Files/boligdata/BeboerMapper/F&#xE6;lles/Vejledning%20til%20budget%20og%20regnskab/Folder-L&#xE6;s-og-forst&#xE5;-budget-og-regnskab.pdf)

###

                                                Behandling og Vedligeholdelse (Fælles)

[Behandling og vedligeholdelsesvejledning.pdf](https://vab.dk/p/Files/boligdata/BeboerMapper/F&#xE6;lles/Behandling_Vedligeholdelse/Behandling-og-vedligeholdelsesvejledning.pdf)
                                            [Det kan betale sig at spare på ressourcerne.pdf](https://vab.dk/p/Files/boligdata/BeboerMapper/F&#xE6;lles/Behandling_Vedligeholdelse/Det-kan-betale-sig-at-spare-p&#xE5;-ressourcerne.pdf)
                                            [Luft ud.pdf](https://vab.dk/p/Files/boligdata/BeboerMapper/F&#xE6;lles/Behandling_Vedligeholdelse/Luft-ud.pdf)
                                            [Standardvedligeholdelsesreglement.pdf](https://vab.dk/p/Files/boligdata/BeboerMapper/F&#xE6;lles/Behandling_Vedligeholdelse/Standardvedligeholdelsesreglement.pdf)
                                            [Termostatventiler.pdf](https://vab.dk/p/Files/boligdata/BeboerMapper/F&#xE6;lles/Behandling_Vedligeholdelse/Termostatventiler.pdf)
                                            [Vandmåler.pdf](https://vab.dk/p/Files/boligdata/BeboerMapper/F&#xE6;lles/Behandling_Vedligeholdelse/Vandm&#xE5;ler.pdf)
                                            [Vedligeholdelse af sanitet.pdf](https://vab.dk/p/Files/boligdata/BeboerMapper/F&#xE6;lles/Behandling_Vedligeholdelse/Vedligeholdelse-af-sanitet.pdf)
                                            [Vedligeholdelse flyttekøkkener.pdf](https://vab.dk/p/Files/boligdata/BeboerMapper/F&#xE6;lles/Behandling_Vedligeholdelse/Vedligeholdelse-flyttek&#xF8;kkener.pdf)
                                            [Vedligeholdelse laminatbordplader.pdf](https://vab.dk/p/Files/boligdata/BeboerMapper/F&#xE6;lles/Behandling_Vedligeholdelse/Vedligeholdelse-laminatbordplader.pdf)

###

                                                Husorden (Fælles)

[Liste over forbudte hunderacer.pdf](https://vab.dk/p/Files/boligdata/BeboerMapper/F&#xE6;lles/Husorden/Liste-over-forbudte-hunderacer.pdf)
                                            [Standard husorden - Arabisk.pdf](https://vab.dk/p/Files/boligdata/BeboerMapper/F&#xE6;lles/Husorden/Standard-husorden---Arabisk.pdf)
                                            [Standard husorden.pdf](https://vab.dk/p/Files/boligdata/BeboerMapper/F&#xE6;lles/Husorden/Standard-husorden.pdf)

###

                                                Råderet (Fælles)

[Råderetsreglerne.pdf](https://vab.dk/p/Files/boligdata/BeboerMapper/F&#xE6;lles/R&#xE5;deret/R&#xE5;deretsreglerne.pdf)

## Kontaktpersoner i afdelingen

### Dorthe Kildegaard Goldbæk

Teknisk sagsbehandler

nord@vab.dk

### Erik Jespersen

Inspektør

nord@vab.dk

### Jørgen Rud

Inspektør

nord@vab.dk

### Lene Christensen

Udlejningssagsbehandler

udlejning@vab.dk

### Maria Adamsen

Økonomisk sagsbehandler

okonomi@vab.dk

### Stephan Madsen Mortensen

Driftschef

nord@vab.dk

### Tina Dyreholt

Teknisk Sagsbehandler

nord@vab.dk
