---
title: "Afdeling 109 - Kirkevej , Kirkestien"
description: "Afdeling 109 - Kirkevej , Kirkestien"
date: "2026-05-15"
created: "2025-02-10"
---

-
-
-
-
-
-

https://maps.google.dk/?q=55.7359082,11.5454239

# Kirkevej , Kirkestien

Afdeling 109

## Velkommen til Kirkevej 12A-C + E-F + Kirkestien 1-17 (U)

Denne afdeling er lidt utraditionelt delt op mellem 2 byer: Gislinge og Kundby.

Kirkestien i Kundby: 9 rækkehuse med lille have til. Boligerne er opført i gule mursten og som familieboliger.

Kirkevej i Gislinge: 3 familieboliger samt 2 ældreboliger som er opført i røde mursten som rækkehuse med lille have til.

Boligerne er opført i 1990 og 2001.

## Faciliteter

Husdyr

Ja

Det er tilladt at holde et husdyr pr. lejemål.

TV og internet

Ja

Lejer skal selv vælge sin TV og internetudbyder og betale direkte til udbyderen.

Varme

Se mere

Naturgas

Hårde hvidevarer

Ja

Køleskab, dropinette, indb. ovn og emhætte.

## Boligtyper i afdelingen

Familiebolig

2 værelses

Familiebolig

Ældrebolig

2 værelses

Ældrebolig

Familiebolig

3 værelses

Familiebolig

##

Angivet husleje er ex. forbrug

Boligtype

Værelser

Størrelse

Husleje

Indskud/dp

Plantegning

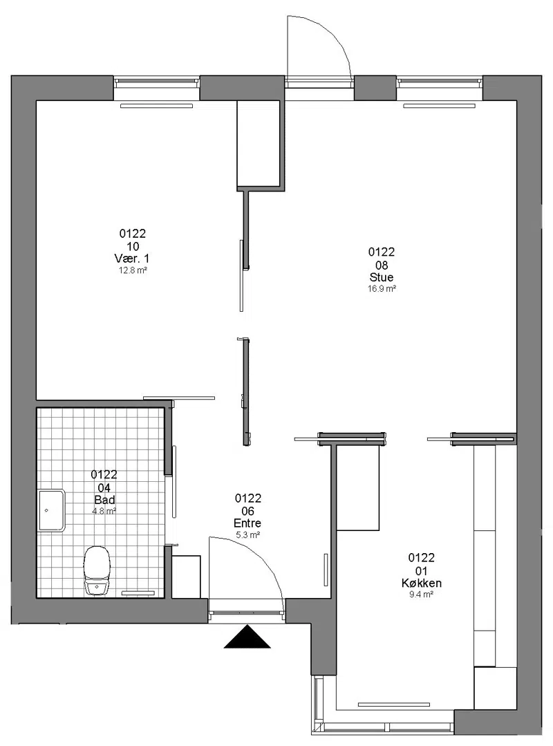
Familiebolig

2

60 m²

5010 kr.

11750 kr.

![](https://vab.dk/i/MOLIRIMEDIA/2f2dbe4e-9eaa-41da-c11a-08dd476e8eef?width=800)






![](https://vab.dk/i/MOLIRIMEDIA/2f2dbe4e-9eaa-41da-c11a-08dd476e8eef?width=800)

![](https://vab.dk/i/MOLIRIMEDIA/bd67cd19-e137-4932-bb14-08dd476e8eef?width=800)

![](https://vab.dk/i/MOLIRIMEDIA/2f2dbe4e-9eaa-41da-c11a-08dd476e8eef?width=800)

![](https://vab.dk/i/MOLIRIMEDIA/bd67cd19-e137-4932-bb14-08dd476e8eef?width=800)

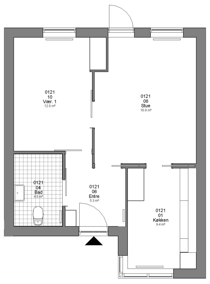
Familiebolig

2

60 m²

5010 kr.

11750 kr.

![](https://vab.dk/i/MOLIRIMEDIA/3164779c-5969-4de2-bcc1-08dd476e8eef?width=800)






![](https://vab.dk/i/MOLIRIMEDIA/3164779c-5969-4de2-bcc1-08dd476e8eef?width=800)

![](https://vab.dk/i/MOLIRIMEDIA/c241b8a1-3387-4412-bb32-08dd476e8eef?width=800)

![](https://vab.dk/i/MOLIRIMEDIA/3164779c-5969-4de2-bcc1-08dd476e8eef?width=800)

![](https://vab.dk/i/MOLIRIMEDIA/c241b8a1-3387-4412-bb32-08dd476e8eef?width=800)

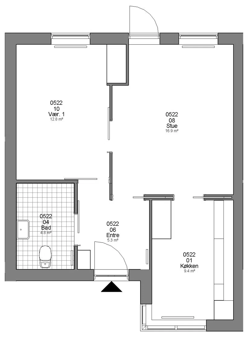
Familiebolig

2

60 m²

5026 kr.

11750 kr.

![](https://vab.dk/i/MOLIRIMEDIA/9e5abf9f-ed9c-41ea-bdf3-08dd476e8eef?width=800)






![](https://vab.dk/i/MOLIRIMEDIA/9e5abf9f-ed9c-41ea-bdf3-08dd476e8eef?width=800)

![](https://vab.dk/i/MOLIRIMEDIA/f42a97cd-31fa-4f91-bb44-08dd476e8eef?width=800)

![](https://vab.dk/i/MOLIRIMEDIA/9e5abf9f-ed9c-41ea-bdf3-08dd476e8eef?width=800)

![](https://vab.dk/i/MOLIRIMEDIA/f42a97cd-31fa-4f91-bb44-08dd476e8eef?width=800)

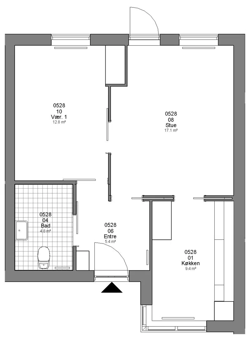
Familiebolig

2

62 m²

5034 kr.

11750 kr.

![](https://vab.dk/i/MOLIRIMEDIA/335d9299-53fe-4daa-bd4c-08dd476e8eef?width=800)






![](https://vab.dk/i/MOLIRIMEDIA/335d9299-53fe-4daa-bd4c-08dd476e8eef?width=800)

![](https://vab.dk/i/MOLIRIMEDIA/638becae-f3bb-47cf-b7e0-08dd476e8eef?width=800)

![](https://vab.dk/i/MOLIRIMEDIA/335d9299-53fe-4daa-bd4c-08dd476e8eef?width=800)

![](https://vab.dk/i/MOLIRIMEDIA/638becae-f3bb-47cf-b7e0-08dd476e8eef?width=800)

Familiebolig

3

73 m²

5614 kr.

13650 kr.

![](https://vab.dk/i/MOLIRIMEDIA/d842184d-f6b7-495c-bd7c-08dd476e8eef?width=800)






![](https://vab.dk/i/MOLIRIMEDIA/d842184d-f6b7-495c-bd7c-08dd476e8eef?width=800)

![](https://vab.dk/i/MOLIRIMEDIA/fc96121a-de0b-4c96-c1c8-08dd476e8eef?width=800)

![](https://vab.dk/i/MOLIRIMEDIA/d842184d-f6b7-495c-bd7c-08dd476e8eef?width=800)

![](https://vab.dk/i/MOLIRIMEDIA/fc96121a-de0b-4c96-c1c8-08dd476e8eef?width=800)

Familiebolig

3

73 m²

5614 kr.

13650 kr.

![](https://vab.dk/i/MOLIRIMEDIA/b43a9610-7dfc-4db6-c52a-08dd476e8eef?width=800)






![](https://vab.dk/i/MOLIRIMEDIA/b43a9610-7dfc-4db6-c52a-08dd476e8eef?width=800)

![](https://vab.dk/i/MOLIRIMEDIA/605e6e40-b9f9-4cad-bf6c-08dd476e8eef?width=800)

![](https://vab.dk/i/MOLIRIMEDIA/b43a9610-7dfc-4db6-c52a-08dd476e8eef?width=800)

![](https://vab.dk/i/MOLIRIMEDIA/605e6e40-b9f9-4cad-bf6c-08dd476e8eef?width=800)

## Afdelingens afstande til

Indkøbsmuligheder

meter

Park & natur

meter

Træning

meter

Bus

meter

Skole/uddanelse

meter

Institution

meter

## Afdelingsdokumenter

Her finder du nyttig information om din afdeling, såsom husorden, vedligeholdelse af dit lejemål m.m.

###

                                                Budget

[afd. 109 - 2015.pdf](https://vab.dk/p/Files/boligdata/BeboerMapper/109/Budget/afd.-109---2015.pdf)
                                            [Afd. 109 - 2016.pdf](https://vab.dk/p/Files/boligdata/BeboerMapper/109/Budget/Afd.-109---2016.pdf)
                                            [afd. 109 - 2017.pdf](https://vab.dk/p/Files/boligdata/BeboerMapper/109/Budget/afd.-109---2017.pdf)
                                            [afd. 109 - 2018.pdf](https://vab.dk/p/Files/boligdata/BeboerMapper/109/Budget/afd.-109---2018.pdf)
                                            [Afd. 109 - 2020.pdf](https://vab.dk/p/Files/boligdata/BeboerMapper/109/Budget/Afd.-109---2020.pdf)
                                            [afd. 109 - 2022.pdf](https://vab.dk/p/Files/boligdata/BeboerMapper/109/Budget/afd.-109---2022.pdf)
                                            [afd. 109 - 2023.pdf](https://vab.dk/p/Files/boligdata/BeboerMapper/109/Budget/afd.-109---2023.pdf)
                                            [afd. 109 - 2024.pdf](https://vab.dk/p/Files/boligdata/BeboerMapper/109/Budget/afd.-109---2024.pdf)
                                            [afd. 109 - 2025.pdf](https://vab.dk/p/Files/boligdata/BeboerMapper/109/Budget/afd.-109---2025.pdf)
                                            [afd. 109 - 2026.pdf](https://vab.dk/p/Files/boligdata/BeboerMapper/109/Budget/afd.-109---2026.pdf)

###

                                                Markvandringsrapport

[afd. 109 - 2019.pdf](https://vab.dk/p/Files/boligdata/BeboerMapper/109/Markvandringsrapport/afd.-109---2019.pdf)

###

                                                Råderet

[afd. 109 Råderetskatalog - standard.pdf](https://vab.dk/p/Files/boligdata/BeboerMapper/109/R&#xE5;deret/afd.-109-R&#xE5;deretskatalog---standard.pdf)

###

                                                Drift- og vedligeholdelsesplaner

[afd. 109 - 2023.pdf](https://vab.dk/p/Files/boligdata/BeboerMapper/109/Drift-%20og%20vedligeholdelsesplaner/afd.-109---2023.pdf)
                                            [afd. 109 - 2025.pdf](https://vab.dk/p/Files/boligdata/BeboerMapper/109/Drift-%20og%20vedligeholdelsesplaner/afd.-109---2025.pdf)
                                            [Afd. 109 - 2026.pdf](https://vab.dk/p/Files/boligdata/BeboerMapper/109/Drift-%20og%20vedligeholdelsesplaner/Afd.-109---2026.pdf)

###

                                                Vejledning til budget og regnskab

[Folder Læs og forstå budget og regnskab.pdf](https://vab.dk/p/Files/boligdata/BeboerMapper/F&#xE6;lles/Vejledning%20til%20budget%20og%20regnskab/Folder-L&#xE6;s-og-forst&#xE5;-budget-og-regnskab.pdf)

###

                                                Behandling og Vedligeholdelse (Fælles)

[Behandling og vedligeholdelsesvejledning.pdf](https://vab.dk/p/Files/boligdata/BeboerMapper/F&#xE6;lles/Behandling_Vedligeholdelse/Behandling-og-vedligeholdelsesvejledning.pdf)
                                            [Det kan betale sig at spare på ressourcerne.pdf](https://vab.dk/p/Files/boligdata/BeboerMapper/F&#xE6;lles/Behandling_Vedligeholdelse/Det-kan-betale-sig-at-spare-p&#xE5;-ressourcerne.pdf)
                                            [Luft ud.pdf](https://vab.dk/p/Files/boligdata/BeboerMapper/F&#xE6;lles/Behandling_Vedligeholdelse/Luft-ud.pdf)
                                            [Standardvedligeholdelsesreglement.pdf](https://vab.dk/p/Files/boligdata/BeboerMapper/F&#xE6;lles/Behandling_Vedligeholdelse/Standardvedligeholdelsesreglement.pdf)
                                            [Termostatventiler.pdf](https://vab.dk/p/Files/boligdata/BeboerMapper/F&#xE6;lles/Behandling_Vedligeholdelse/Termostatventiler.pdf)
                                            [Vandmåler.pdf](https://vab.dk/p/Files/boligdata/BeboerMapper/F&#xE6;lles/Behandling_Vedligeholdelse/Vandm&#xE5;ler.pdf)
                                            [Vedligeholdelse af sanitet.pdf](https://vab.dk/p/Files/boligdata/BeboerMapper/F&#xE6;lles/Behandling_Vedligeholdelse/Vedligeholdelse-af-sanitet.pdf)
                                            [Vedligeholdelse flyttekøkkener.pdf](https://vab.dk/p/Files/boligdata/BeboerMapper/F&#xE6;lles/Behandling_Vedligeholdelse/Vedligeholdelse-flyttek&#xF8;kkener.pdf)
                                            [Vedligeholdelse laminatbordplader.pdf](https://vab.dk/p/Files/boligdata/BeboerMapper/F&#xE6;lles/Behandling_Vedligeholdelse/Vedligeholdelse-laminatbordplader.pdf)

###

                                                Husorden (Fælles)

[Liste over forbudte hunderacer.pdf](https://vab.dk/p/Files/boligdata/BeboerMapper/F&#xE6;lles/Husorden/Liste-over-forbudte-hunderacer.pdf)
                                            [Standard husorden - Arabisk.pdf](https://vab.dk/p/Files/boligdata/BeboerMapper/F&#xE6;lles/Husorden/Standard-husorden---Arabisk.pdf)
                                            [Standard husorden.pdf](https://vab.dk/p/Files/boligdata/BeboerMapper/F&#xE6;lles/Husorden/Standard-husorden.pdf)

###

                                                Råderet (Fælles)

[Råderetsreglerne.pdf](https://vab.dk/p/Files/boligdata/BeboerMapper/F&#xE6;lles/R&#xE5;deret/R&#xE5;deretsreglerne.pdf)

## Kontaktpersoner i afdelingen

### Anne Suhr

Udlejningssagsbehandler

udlejning@vab.dk

### Channie Schleicher

Teknisk sagsbehandler

midt@vab.dk

### Evy Marie Nielsen

Driftschef

midt@vab.dk

### Maria Nørregaard Nielsen

Inspektør

midt@vab.dk

### Rikke Støving Andersen

Økonomisk Sagsbehandler

### Sofie Anna Kristensen

Elev

okonomi@vab.dk

### Vinni Barsøe

Teknisk sagsbehandler

midt@vab.dk
