---
title: "Afdeling 116 -  Anemonevej, Erantisvej"
description: "Afdeling 116 -  Anemonevej, Erantisvej"
date: "2026-05-15"
created: "2025-02-10"
---

-
-
-
-
-
-
-

https://maps.google.dk/?q=55.6727544,11.6198963

#  Anemonevej, Erantisvej

Afdeling 116

## Velkommen til Anemonevej 2-48 (L)

Rækkehuse opført i røde sten i 1 plan, 2, 3 og 4 rums. Byggeår 1990 & 1995.
32 almene boliger og 6 ungdomsboliger.

## Faciliteter

Husdyr

Ja

Det er tilladt at holde et husdyr pr. lejemål.

TV og internet

Ja

Lejer skal selv vælge sin TV og internetudbyder og betale direkte til udbyderen. Der er fibernet.

Varme

Se mere

Naturgas

Hårde hvidevarer

Ja

Der er komfur og køleskab. I ungdomsboligerne er der trinette m. køleskab

## Boligtyper i afdelingen

Ungdomsbolig

1 værelses

Ungdomsbolig

Familiebolig

2 værelses

Familiebolig

Familiebolig

3 værelses

Familiebolig

Familiebolig

4 værelses

Familiebolig

##

Angivet husleje er ex. forbrug

Boligtype

Værelser

Størrelse

Husleje

Indskud/dp

Plantegning

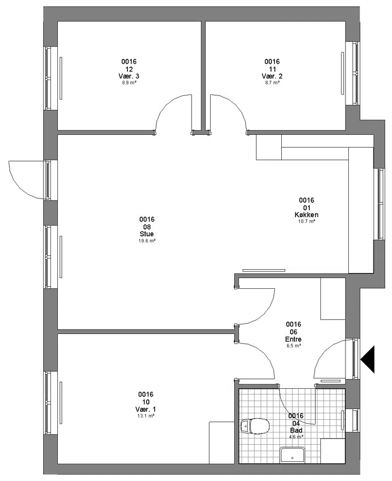
Familiebolig

2

66 m²

4963 kr.

12000 kr.

![](https://vab.dk/i/MOLIRIMEDIA/c2bfd843-8c09-4ae8-c05f-08dd476e8eef?width=800)






![](https://vab.dk/i/MOLIRIMEDIA/c2bfd843-8c09-4ae8-c05f-08dd476e8eef?width=800)

![](https://vab.dk/i/MOLIRIMEDIA/209c2ecf-46f5-4b64-c414-08dd476e8eef?width=800)

![](https://vab.dk/i/MOLIRIMEDIA/c2bfd843-8c09-4ae8-c05f-08dd476e8eef?width=800)

![](https://vab.dk/i/MOLIRIMEDIA/209c2ecf-46f5-4b64-c414-08dd476e8eef?width=800)

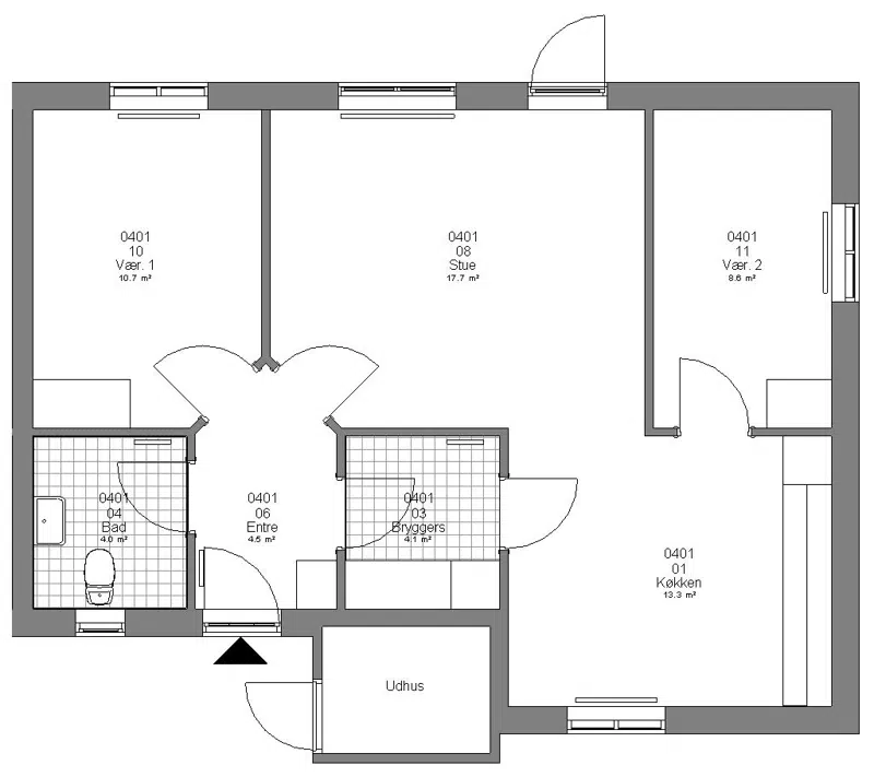
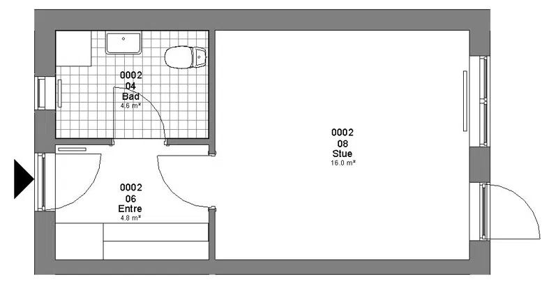
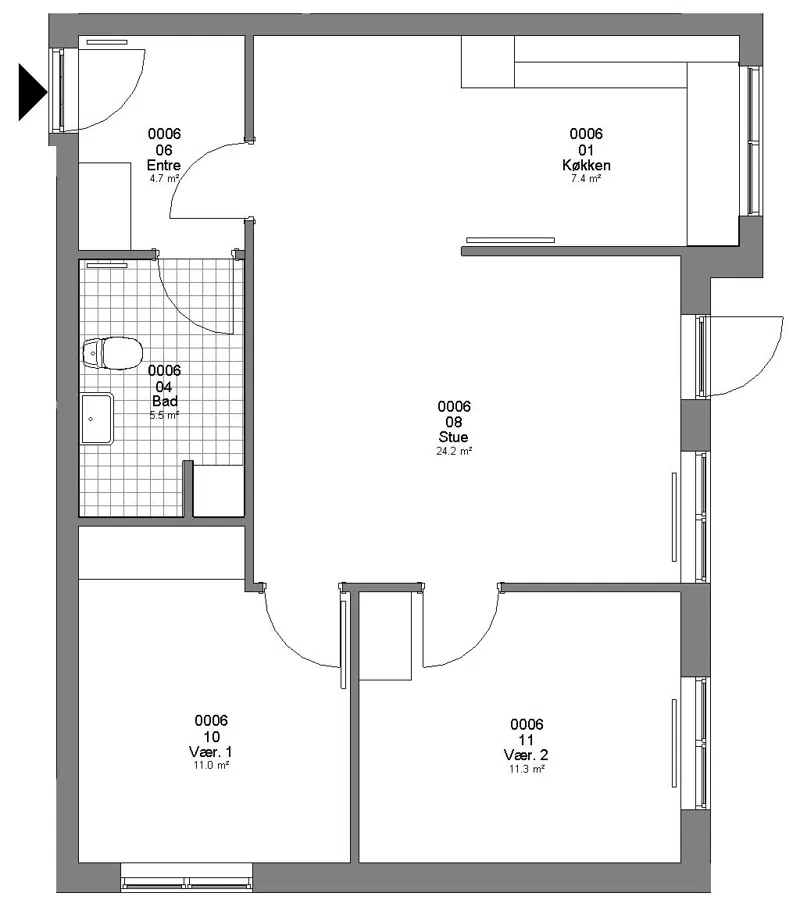
Familiebolig

2

63 m²

4826 kr.

11360 kr.

![](https://vab.dk/i/MOLIRIMEDIA/8f21f26f-934c-4138-bdbd-08dd476e8eef?width=800)






![](https://vab.dk/i/MOLIRIMEDIA/8f21f26f-934c-4138-bdbd-08dd476e8eef?width=800)

![](https://vab.dk/i/MOLIRIMEDIA/7eecb9b1-7927-444c-c7db-08dd476e8eef?width=800)

![](https://vab.dk/i/MOLIRIMEDIA/8f21f26f-934c-4138-bdbd-08dd476e8eef?width=800)

![](https://vab.dk/i/MOLIRIMEDIA/7eecb9b1-7927-444c-c7db-08dd476e8eef?width=800)

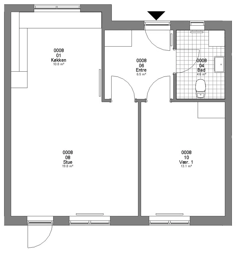
Familiebolig

3

75 m²

5485 kr.

13315 kr.

![](https://vab.dk/i/MOLIRIMEDIA/38b84657-be4a-4aef-c19f-08dd476e8eef?width=800)






![](https://vab.dk/i/MOLIRIMEDIA/38b84657-be4a-4aef-c19f-08dd476e8eef?width=800)

![](https://vab.dk/i/MOLIRIMEDIA/4d31b648-df23-45ec-c1fd-08dd476e8eef?width=800)

![](https://vab.dk/i/MOLIRIMEDIA/38b84657-be4a-4aef-c19f-08dd476e8eef?width=800)

![](https://vab.dk/i/MOLIRIMEDIA/4d31b648-df23-45ec-c1fd-08dd476e8eef?width=800)

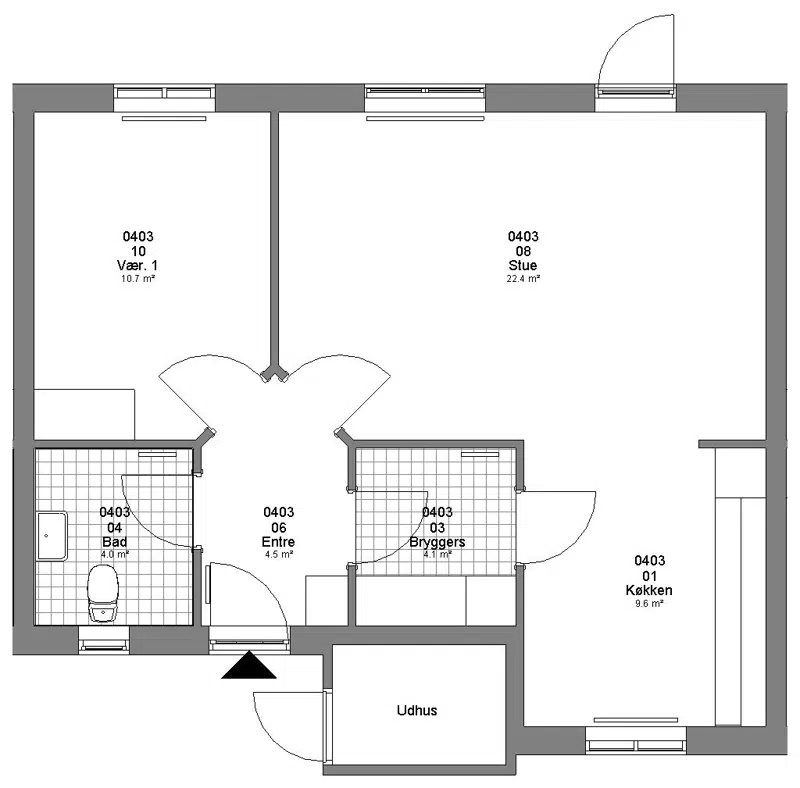
Familiebolig

3

75 m²

5485 kr.

13315 kr.

![](https://vab.dk/i/MOLIRIMEDIA/376a1749-f110-4154-c6f9-08dd476e8eef?width=800)






![](https://vab.dk/i/MOLIRIMEDIA/376a1749-f110-4154-c6f9-08dd476e8eef?width=800)

![](https://vab.dk/i/MOLIRIMEDIA/d752e251-d139-4676-bf87-08dd476e8eef?width=800)

![](https://vab.dk/i/MOLIRIMEDIA/376a1749-f110-4154-c6f9-08dd476e8eef?width=800)

![](https://vab.dk/i/MOLIRIMEDIA/d752e251-d139-4676-bf87-08dd476e8eef?width=800)

Familiebolig

4

85 m²

5639 kr.

15180 kr.

![](https://vab.dk/i/MOLIRIMEDIA/513c5491-a8f5-47e6-b7e7-08dd476e8eef?width=800)






![](https://vab.dk/i/MOLIRIMEDIA/513c5491-a8f5-47e6-b7e7-08dd476e8eef?width=800)

![](https://vab.dk/i/MOLIRIMEDIA/45fafb4d-9a50-458a-b7fb-08dd476e8eef?width=800)

![](https://vab.dk/i/MOLIRIMEDIA/513c5491-a8f5-47e6-b7e7-08dd476e8eef?width=800)

![](https://vab.dk/i/MOLIRIMEDIA/45fafb4d-9a50-458a-b7fb-08dd476e8eef?width=800)

Ungdomsbolig

1

32 m²

1762 kr.

5286 kr.

![](https://vab.dk/i/MOLIRIMEDIA/3beebc5b-7b45-41ed-c799-08dd476e8eef?width=800)






![](https://vab.dk/i/MOLIRIMEDIA/3beebc5b-7b45-41ed-c799-08dd476e8eef?width=800)

![](https://vab.dk/i/MOLIRIMEDIA/4d1d4454-d943-4171-c652-08dd476e8eef?width=800)

![](https://vab.dk/i/MOLIRIMEDIA/3beebc5b-7b45-41ed-c799-08dd476e8eef?width=800)

![](https://vab.dk/i/MOLIRIMEDIA/4d1d4454-d943-4171-c652-08dd476e8eef?width=800)

## Afdelingens afstande til

Indkøbsmuligheder

meter

Park & natur

meter

Træning

meter

Bus

meter

Skole/uddanelse

meter

Institution

meter

## Afdelingsdokumenter

Her finder du nyttig information om din afdeling, såsom husorden, vedligeholdelse af dit lejemål m.m.

###

                                                Behandling og Vedligeholdelse

[afd. 116 - Ungdomsboliger (Istandsættelse ved fraflytning).pdf](https://vab.dk/p/Files/boligdata/BeboerMapper/116/Behandling_Vedligeholdelse/afd.-116---Ungdomsboliger--Istands&#xE6;ttelse-ved-fraflytning-.pdf)

###

                                                Budget

[afd. 116 - 2015.pdf](https://vab.dk/p/Files/boligdata/BeboerMapper/116/Budget/afd.-116---2015.pdf)
                                            [Afd. 116 - 2016.pdf](https://vab.dk/p/Files/boligdata/BeboerMapper/116/Budget/Afd.-116---2016.pdf)
                                            [afd. 116 - 2017.pdf](https://vab.dk/p/Files/boligdata/BeboerMapper/116/Budget/afd.-116---2017.pdf)
                                            [afd. 116 - 2018.pdf](https://vab.dk/p/Files/boligdata/BeboerMapper/116/Budget/afd.-116---2018.pdf)
                                            [Afd. 116 - 2020.pdf](https://vab.dk/p/Files/boligdata/BeboerMapper/116/Budget/Afd.-116---2020.pdf)
                                            [afd. 116 - 2022.pdf](https://vab.dk/p/Files/boligdata/BeboerMapper/116/Budget/afd.-116---2022.pdf)
                                            [afd. 116 - 2023.pdf](https://vab.dk/p/Files/boligdata/BeboerMapper/116/Budget/afd.-116---2023.pdf)
                                            [afd. 116 - 2024.pdf](https://vab.dk/p/Files/boligdata/BeboerMapper/116/Budget/afd.-116---2024.pdf)
                                            [afd. 116 - 2025.pdf](https://vab.dk/p/Files/boligdata/BeboerMapper/116/Budget/afd.-116---2025.pdf)
                                            [afd. 116 - 2026.pdf](https://vab.dk/p/Files/boligdata/BeboerMapper/116/Budget/afd.-116---2026.pdf)

###

                                                Husorden

[Afd. 116 - haveorden.pdf](https://vab.dk/p/Files/boligdata/BeboerMapper/116/Husorden/Afd.-116---haveorden.pdf)
                                            [afd. 116 - Tillæg til husorden.pdf](https://vab.dk/p/Files/boligdata/BeboerMapper/116/Husorden/afd.-116---Till&#xE6;g-til-husorden.pdf)
                                            [afd. 116.pdf](https://vab.dk/p/Files/boligdata/BeboerMapper/116/Husorden/afd.-116.pdf)

###

                                                Råderet

[Afd. 116 Råderetskatalog.pdf](https://vab.dk/p/Files/boligdata/BeboerMapper/116/R&#xE5;deret/Afd.-116-R&#xE5;deretskatalog.pdf)

###

                                                Drift- og vedligeholdelsesplaner

[afd. 116 - 2025.pdf](https://vab.dk/p/Files/boligdata/BeboerMapper/116/Drift-%20og%20vedligeholdelsesplaner/afd.-116---2025.pdf)
                                            [Afd. 116 - 2026.pdf](https://vab.dk/p/Files/boligdata/BeboerMapper/116/Drift-%20og%20vedligeholdelsesplaner/Afd.-116---2026.pdf)

###

                                                Diverse

[Afd. 116 - Haveordens regler.pdf](https://vab.dk/p/Files/boligdata/BeboerMapper/116/Diverse/Afd.-116---Haveordens-regler.pdf)

###

                                                Vejledning til budget og regnskab

[Folder Læs og forstå budget og regnskab.pdf](https://vab.dk/p/Files/boligdata/BeboerMapper/F&#xE6;lles/Vejledning%20til%20budget%20og%20regnskab/Folder-L&#xE6;s-og-forst&#xE5;-budget-og-regnskab.pdf)

###

                                                Behandling og Vedligeholdelse (Fælles)

[Behandling og vedligeholdelsesvejledning.pdf](https://vab.dk/p/Files/boligdata/BeboerMapper/F&#xE6;lles/Behandling_Vedligeholdelse/Behandling-og-vedligeholdelsesvejledning.pdf)
                                            [Det kan betale sig at spare på ressourcerne.pdf](https://vab.dk/p/Files/boligdata/BeboerMapper/F&#xE6;lles/Behandling_Vedligeholdelse/Det-kan-betale-sig-at-spare-p&#xE5;-ressourcerne.pdf)
                                            [Luft ud.pdf](https://vab.dk/p/Files/boligdata/BeboerMapper/F&#xE6;lles/Behandling_Vedligeholdelse/Luft-ud.pdf)
                                            [Standardvedligeholdelsesreglement.pdf](https://vab.dk/p/Files/boligdata/BeboerMapper/F&#xE6;lles/Behandling_Vedligeholdelse/Standardvedligeholdelsesreglement.pdf)
                                            [Termostatventiler.pdf](https://vab.dk/p/Files/boligdata/BeboerMapper/F&#xE6;lles/Behandling_Vedligeholdelse/Termostatventiler.pdf)
                                            [Vandmåler.pdf](https://vab.dk/p/Files/boligdata/BeboerMapper/F&#xE6;lles/Behandling_Vedligeholdelse/Vandm&#xE5;ler.pdf)
                                            [Vedligeholdelse af sanitet.pdf](https://vab.dk/p/Files/boligdata/BeboerMapper/F&#xE6;lles/Behandling_Vedligeholdelse/Vedligeholdelse-af-sanitet.pdf)
                                            [Vedligeholdelse flyttekøkkener.pdf](https://vab.dk/p/Files/boligdata/BeboerMapper/F&#xE6;lles/Behandling_Vedligeholdelse/Vedligeholdelse-flyttek&#xF8;kkener.pdf)
                                            [Vedligeholdelse laminatbordplader.pdf](https://vab.dk/p/Files/boligdata/BeboerMapper/F&#xE6;lles/Behandling_Vedligeholdelse/Vedligeholdelse-laminatbordplader.pdf)

###

                                                Husorden (Fælles)

[Liste over forbudte hunderacer.pdf](https://vab.dk/p/Files/boligdata/BeboerMapper/F&#xE6;lles/Husorden/Liste-over-forbudte-hunderacer.pdf)
                                            [Standard husorden - Arabisk.pdf](https://vab.dk/p/Files/boligdata/BeboerMapper/F&#xE6;lles/Husorden/Standard-husorden---Arabisk.pdf)
                                            [Standard husorden.pdf](https://vab.dk/p/Files/boligdata/BeboerMapper/F&#xE6;lles/Husorden/Standard-husorden.pdf)

###

                                                Råderet (Fælles)

[Råderetsreglerne.pdf](https://vab.dk/p/Files/boligdata/BeboerMapper/F&#xE6;lles/R&#xE5;deret/R&#xE5;deretsreglerne.pdf)

## Kontaktpersoner i afdelingen

### Anne Suhr

Udlejningssagsbehandler

udlejning@vab.dk

### Channie Schleicher

Teknisk sagsbehandler

midt@vab.dk

### Christina Lebech Løve

Økonomisk sagsbehandler

okonomi@vab.dk

### Evy Marie Nielsen

Driftschef

midt@vab.dk

### Maria Nørregaard Nielsen

Inspektør

midt@vab.dk

### Vinni Barsøe

Teknisk sagsbehandler

midt@vab.dk
