---
title: "Afdeling 12 - Chr. Hansensvej"
description: "Afdeling 12 - Chr. Hansensvej"
date: "2026-05-15"
created: "2025-02-10"
---

-
-
-
-
-
-

https://maps.google.dk/?q=55.7196156,11.464015

# Chr. Hansensvej

Afdeling 12

## Velkommen til Chr. Hansensvej 18-36 (lige nr.)

Rækkehuse opført i gule sten i 1 plan, 10 boliger - 4 og 5 rums. Byggeår 1970.

## Faciliteter

Husdyr

Ja

Det er tilladt at holde et husdyr pr. lejemål.

TV og internet

Ja

Lejer skal selv vælge sin TV og internetudbyder og betale direkte til udbyderen.

Varme

Se mere

Der er fælles gasfyr med individuelt måler. Lejer betaler et a/c-beløb gennem huslejen. Der udarbejdes et varmeregnskab én gang årligt.

Vaskeri

Nej

Der findes ikke vaskeri i afdelingen

Hårde hvidevarer

Ja

Komfur.

## Boligtyper i afdelingen

Familiebolig

4 værelses

Familiebolig

Familiebolig

5 værelses

Familiebolig

##

Angivet husleje er ex. forbrug

Boligtype

Værelser

Størrelse

Husleje

Indskud/dp

Plantegning

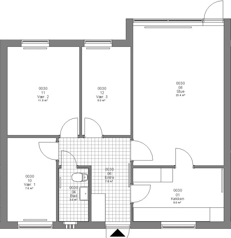
Familiebolig

4

82 m²

4988 kr.

14700 kr.

![](https://vab.dk/i/MOLIRIMEDIA/b1f28253-f336-46f6-c1eb-08dd476e8eef?width=800)






![](https://vab.dk/i/MOLIRIMEDIA/b1f28253-f336-46f6-c1eb-08dd476e8eef?width=800)

![](https://vab.dk/i/MOLIRIMEDIA/3413954a-3ae8-469c-c5a2-08dd476e8eef?width=800)

![](https://vab.dk/i/MOLIRIMEDIA/b1f28253-f336-46f6-c1eb-08dd476e8eef?width=800)

![](https://vab.dk/i/MOLIRIMEDIA/3413954a-3ae8-469c-c5a2-08dd476e8eef?width=800)

Familiebolig

5

99 m²

5582 kr.

17700 kr.

![](https://vab.dk/i/MOLIRIMEDIA/de1140a6-f1cb-48ae-b854-08dd476e8eef?width=800)






![](https://vab.dk/i/MOLIRIMEDIA/de1140a6-f1cb-48ae-b854-08dd476e8eef?width=800)

![](https://vab.dk/i/MOLIRIMEDIA/ab23630c-e181-451d-c2dd-08dd476e8eef?width=800)

![](https://vab.dk/i/MOLIRIMEDIA/de1140a6-f1cb-48ae-b854-08dd476e8eef?width=800)

![](https://vab.dk/i/MOLIRIMEDIA/ab23630c-e181-451d-c2dd-08dd476e8eef?width=800)

## Afdelingens afstande til

Indkøbsmuligheder

meter

Park & natur

meter

Træning

meter

Bus

meter

Skole/uddanelse

meter

Institution

meter

## Afdelingsdokumenter

Her finder du nyttig information om din afdeling, såsom husorden, vedligeholdelse af dit lejemål m.m.

###

                                                Budget

[afd. 12 - 2015.pdf](https://vab.dk/p/Files/boligdata/BeboerMapper/12/Budget/afd.-12---2015.pdf)
                                            [Afd. 12 - 2016.pdf](https://vab.dk/p/Files/boligdata/BeboerMapper/12/Budget/Afd.-12---2016.pdf)
                                            [afd. 12 - 2017.pdf](https://vab.dk/p/Files/boligdata/BeboerMapper/12/Budget/afd.-12---2017.pdf)
                                            [afd. 12 - 2018.pdf](https://vab.dk/p/Files/boligdata/BeboerMapper/12/Budget/afd.-12---2018.pdf)
                                            [afd. 12 - 2019.pdf](https://vab.dk/p/Files/boligdata/BeboerMapper/12/Budget/afd.-12---2019.pdf)
                                            [Afd. 12 - 2020.pdf](https://vab.dk/p/Files/boligdata/BeboerMapper/12/Budget/Afd.-12---2020.pdf)
                                            [afd. 12 - 2022.pdf](https://vab.dk/p/Files/boligdata/BeboerMapper/12/Budget/afd.-12---2022.pdf)
                                            [afd. 12 - 2023.pdf](https://vab.dk/p/Files/boligdata/BeboerMapper/12/Budget/afd.-12---2023.pdf)
                                            [afd. 12 - 2024.pdf](https://vab.dk/p/Files/boligdata/BeboerMapper/12/Budget/afd.-12---2024.pdf)
                                            [afd. 12 - 2025 .pdf](https://vab.dk/p/Files/boligdata/BeboerMapper/12/Budget/afd.-12---2025-.pdf)
                                            [afd. 12 - 2026.pdf](https://vab.dk/p/Files/boligdata/BeboerMapper/12/Budget/afd.-12---2026.pdf)

###

                                                Råderet

[Afd. 12.pdf](https://vab.dk/p/Files/boligdata/BeboerMapper/12/R&#xE5;deret/Afd.-12.pdf)

###

                                                Drift- og vedligeholdelsesplaner

[afd. 12 - 2022.pdf](https://vab.dk/p/Files/boligdata/BeboerMapper/12/Drift-%20og%20vedligeholdelsesplaner/afd.-12---2022.pdf)
                                            [afd. 12 - 2025.pdf](https://vab.dk/p/Files/boligdata/BeboerMapper/12/Drift-%20og%20vedligeholdelsesplaner/afd.-12---2025.pdf)
                                            [afd. 12 - 2026.pdf](https://vab.dk/p/Files/boligdata/BeboerMapper/12/Drift-%20og%20vedligeholdelsesplaner/afd.-12---2026.pdf)

###

                                                Vejledning til budget og regnskab

[Folder Læs og forstå budget og regnskab.pdf](https://vab.dk/p/Files/boligdata/BeboerMapper/F&#xE6;lles/Vejledning%20til%20budget%20og%20regnskab/Folder-L&#xE6;s-og-forst&#xE5;-budget-og-regnskab.pdf)

###

                                                Behandling og Vedligeholdelse (Fælles)

[Behandling og vedligeholdelsesvejledning.pdf](https://vab.dk/p/Files/boligdata/BeboerMapper/F&#xE6;lles/Behandling_Vedligeholdelse/Behandling-og-vedligeholdelsesvejledning.pdf)
                                            [Det kan betale sig at spare på ressourcerne.pdf](https://vab.dk/p/Files/boligdata/BeboerMapper/F&#xE6;lles/Behandling_Vedligeholdelse/Det-kan-betale-sig-at-spare-p&#xE5;-ressourcerne.pdf)
                                            [Luft ud.pdf](https://vab.dk/p/Files/boligdata/BeboerMapper/F&#xE6;lles/Behandling_Vedligeholdelse/Luft-ud.pdf)
                                            [Standardvedligeholdelsesreglement.pdf](https://vab.dk/p/Files/boligdata/BeboerMapper/F&#xE6;lles/Behandling_Vedligeholdelse/Standardvedligeholdelsesreglement.pdf)
                                            [Termostatventiler.pdf](https://vab.dk/p/Files/boligdata/BeboerMapper/F&#xE6;lles/Behandling_Vedligeholdelse/Termostatventiler.pdf)
                                            [Vandmåler.pdf](https://vab.dk/p/Files/boligdata/BeboerMapper/F&#xE6;lles/Behandling_Vedligeholdelse/Vandm&#xE5;ler.pdf)
                                            [Vedligeholdelse af sanitet.pdf](https://vab.dk/p/Files/boligdata/BeboerMapper/F&#xE6;lles/Behandling_Vedligeholdelse/Vedligeholdelse-af-sanitet.pdf)
                                            [Vedligeholdelse flyttekøkkener.pdf](https://vab.dk/p/Files/boligdata/BeboerMapper/F&#xE6;lles/Behandling_Vedligeholdelse/Vedligeholdelse-flyttek&#xF8;kkener.pdf)
                                            [Vedligeholdelse laminatbordplader.pdf](https://vab.dk/p/Files/boligdata/BeboerMapper/F&#xE6;lles/Behandling_Vedligeholdelse/Vedligeholdelse-laminatbordplader.pdf)

###

                                                Husorden (Fælles)

[Liste over forbudte hunderacer.pdf](https://vab.dk/p/Files/boligdata/BeboerMapper/F&#xE6;lles/Husorden/Liste-over-forbudte-hunderacer.pdf)
                                            [Standard husorden - Arabisk.pdf](https://vab.dk/p/Files/boligdata/BeboerMapper/F&#xE6;lles/Husorden/Standard-husorden---Arabisk.pdf)
                                            [Standard husorden.pdf](https://vab.dk/p/Files/boligdata/BeboerMapper/F&#xE6;lles/Husorden/Standard-husorden.pdf)

###

                                                Råderet (Fælles)

[Råderetsreglerne.pdf](https://vab.dk/p/Files/boligdata/BeboerMapper/F&#xE6;lles/R&#xE5;deret/R&#xE5;deretsreglerne.pdf)

## Kontaktpersoner i afdelingen

### Anne Suhr

Udlejningssagsbehandler

udlejning@vab.dk

### Channie Schleicher

Teknisk sagsbehandler

midt@vab.dk

### Christina Lebech Løve

Økonomisk sagsbehandler

okonomi@vab.dk

### Evy Marie Nielsen

Driftschef

midt@vab.dk

### Maria Nørregaard Nielsen

Inspektør

midt@vab.dk

### Vinni Barsøe

Teknisk sagsbehandler

midt@vab.dk
