---
title: "Afdeling 132 - Havrevænget + Stadionvej + Bobjergvej"
description: "Afdeling 132 - Havrevænget + Stadionvej + Bobjergvej"
date: "2026-05-15"
created: "2025-02-10"
---

-
-
-

https://maps.google.dk/?q=55.8125021,11.50324

# Havrevænget + Stadionvej + Bobjergvej

Afdeling 132

## Velkommen til Havrevænget 2A-P (- O), Stadionvej 1 + 3 & Bobjergvej 19 A-N

Afd. 132 består af både ældre- og plejeboliger, hvor kommunen visiterer til disse boliger.

Bobjergvej 21-43 er opført i 1988/1989 og består af 12 boliger på 2 rum.

Havrevænget 2A-P er opført i 1994 og består af 15 boliger på 1 og 2 rum.

Bobjergvej 24A-N er opført 2008 og består af 12 boliger på 2 rum.

Stadionvej 3 er opført i 2012 og består af 36 boliger på 2 rum.

Bobjergvej 19A-N er opført i 2013 og består af 12 boliger på 2 rum.

Stadionvej 1 er opført i 2018 og består af 12 boliger på 2 rum.

Kontakt Kommunen for yderligere information om opskrivning.

## Faciliteter

Husdyr

Ja

Bobjergvej og Havrevænget:&lt;/strong&gt; Det er tilladt at holde 1 kat eller 1 hundStadionvej 1 og 3:&lt;/strong&gt; Det er ikke tilladt at holde husdyr.

TV og internet

Ja

Lejer skal selv vælge sin TV og internetudbyder og betale direkte til udbyderen. Stadionvej og Bobjergvej 19A-N har fibernet.

Varme

Se mere

Naturgas

ABA-anlæg

Ja

Der forefindes ABA-anlæg (aut. brandalarmeringsanlæg) i ældre- og plejeboligerne.

## Boligtyper i afdelingen

Ældrebolig

1 værelses

Ældrebolig

Ældrebolig

2 værelses

Ældrebolig

Plejebolig

2 værelses

Plejebolig

##

Angivet husleje er ex. forbrug

Boligtype

Værelser

Størrelse

Husleje

Indskud/dp

Plantegning

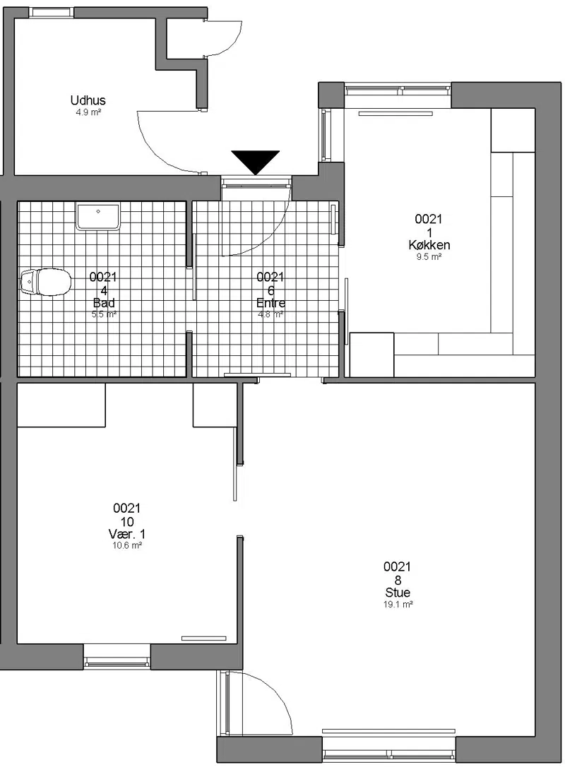
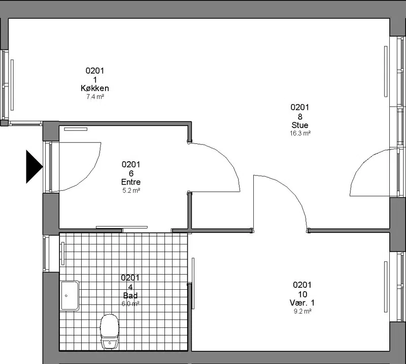
Ældrebolig

1

35 m²

3579 kr.

6800 kr.

![](https://vab.dk/i/MOLIRIMEDIA/90424deb-9c5d-4278-c157-08dd476e8eef?width=800)






![](https://vab.dk/i/MOLIRIMEDIA/90424deb-9c5d-4278-c157-08dd476e8eef?width=800)

![](https://vab.dk/i/MOLIRIMEDIA/f4399692-b94b-45e2-c3cb-08dd476e8eef?width=800)

![](https://vab.dk/i/MOLIRIMEDIA/90424deb-9c5d-4278-c157-08dd476e8eef?width=800)

![](https://vab.dk/i/MOLIRIMEDIA/f4399692-b94b-45e2-c3cb-08dd476e8eef?width=800)

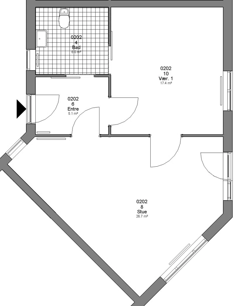
Ældrebolig

2

68 m²

7348 kr.

24100 kr.

![](https://vab.dk/i/MOLIRIMEDIA/c86f5ad3-5494-4ccd-b8b1-08dd476e8eef?width=800)






![](https://vab.dk/i/MOLIRIMEDIA/c86f5ad3-5494-4ccd-b8b1-08dd476e8eef?width=800)

![](https://vab.dk/i/MOLIRIMEDIA/d58c5d24-20df-4f8f-b99a-08dd476e8eef?width=800)

![](https://vab.dk/i/MOLIRIMEDIA/c86f5ad3-5494-4ccd-b8b1-08dd476e8eef?width=800)

![](https://vab.dk/i/MOLIRIMEDIA/d58c5d24-20df-4f8f-b99a-08dd476e8eef?width=800)

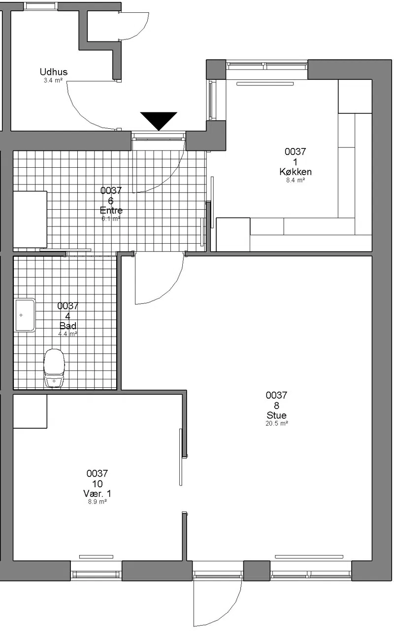
Ældrebolig

2

65 m²

5508 kr.

14000 kr.

![](https://vab.dk/i/MOLIRIMEDIA/db767b31-3142-4447-c55d-08dd476e8eef?width=800)






![](https://vab.dk/i/MOLIRIMEDIA/db767b31-3142-4447-c55d-08dd476e8eef?width=800)

![](https://vab.dk/i/MOLIRIMEDIA/a81a62ab-a9a8-45a3-c140-08dd476e8eef?width=800)

![](https://vab.dk/i/MOLIRIMEDIA/db767b31-3142-4447-c55d-08dd476e8eef?width=800)

![](https://vab.dk/i/MOLIRIMEDIA/a81a62ab-a9a8-45a3-c140-08dd476e8eef?width=800)

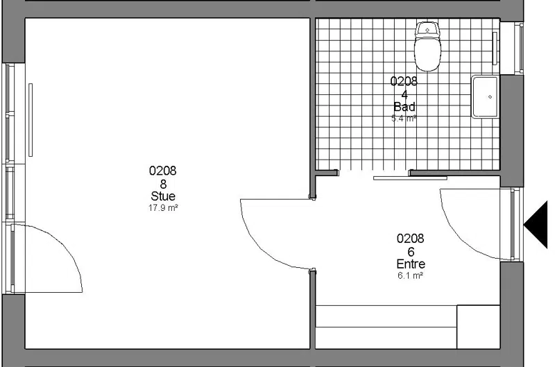
Ældrebolig

2

52 m²

4647 kr.

11200 kr.

![](https://vab.dk/i/MOLIRIMEDIA/71b26b9f-7cea-481c-c0e2-08dd476e8eef?width=800)






![](https://vab.dk/i/MOLIRIMEDIA/71b26b9f-7cea-481c-c0e2-08dd476e8eef?width=800)

![](https://vab.dk/i/MOLIRIMEDIA/f9b709da-9ed7-4c73-c10c-08dd476e8eef?width=800)

![](https://vab.dk/i/MOLIRIMEDIA/71b26b9f-7cea-481c-c0e2-08dd476e8eef?width=800)

![](https://vab.dk/i/MOLIRIMEDIA/f9b709da-9ed7-4c73-c10c-08dd476e8eef?width=800)

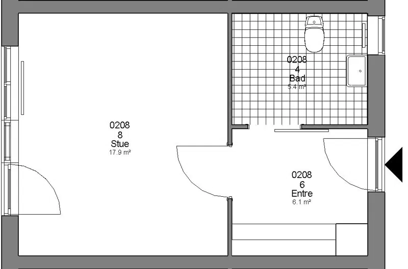
Ældrebolig

2

54.5 m²

5114 kr.

11070 kr.

![](https://vab.dk/i/MOLIRIMEDIA/c0071f6e-8544-4c96-bc5e-08dd476e8eef?width=800)






![](https://vab.dk/i/MOLIRIMEDIA/c0071f6e-8544-4c96-bc5e-08dd476e8eef?width=800)

![](https://vab.dk/i/MOLIRIMEDIA/e38a529c-afb3-4272-c610-08dd476e8eef?width=800)

![](https://vab.dk/i/MOLIRIMEDIA/c0071f6e-8544-4c96-bc5e-08dd476e8eef?width=800)

![](https://vab.dk/i/MOLIRIMEDIA/e38a529c-afb3-4272-c610-08dd476e8eef?width=800)

Ældrebolig

2

60 m²

5509 kr.

12200 kr.

![](https://vab.dk/i/MOLIRIMEDIA/1e0b920b-1eec-4f84-c206-08dd476e8eef?width=800)






![](https://vab.dk/i/MOLIRIMEDIA/1e0b920b-1eec-4f84-c206-08dd476e8eef?width=800)

![](https://vab.dk/i/MOLIRIMEDIA/8deb1566-ce30-4aef-b618-08dd476e8eef?width=800)

![](https://vab.dk/i/MOLIRIMEDIA/1e0b920b-1eec-4f84-c206-08dd476e8eef?width=800)

![](https://vab.dk/i/MOLIRIMEDIA/8deb1566-ce30-4aef-b618-08dd476e8eef?width=800)

## Afdelingens afstande til

Indkøbsmuligheder

meter

Park & natur

meter

Træning

meter

Bus

meter

Skole/uddanelse

meter

Institution

meter

## Afdelingsdokumenter

Her finder du nyttig information om din afdeling, såsom husorden, vedligeholdelse af dit lejemål m.m.

###

                                                Behandling og Vedligeholdelse

[Afd. 132 - Brugervejledning Brunata Online.pdf](https://vab.dk/p/Files/boligdata/BeboerMapper/132/Behandling_Vedligeholdelse/Afd.-132---Brugervejledning-Brunata-Online.pdf)

###

                                                Budget

[afd. 132 - 2015.pdf](https://vab.dk/p/Files/boligdata/BeboerMapper/132/Budget/afd.-132---2015.pdf)
                                            [Afd. 132 - 2016.pdf](https://vab.dk/p/Files/boligdata/BeboerMapper/132/Budget/Afd.-132---2016.pdf)
                                            [afd. 132 - 2017.pdf](https://vab.dk/p/Files/boligdata/BeboerMapper/132/Budget/afd.-132---2017.pdf)
                                            [afd. 132 - 2018.pdf](https://vab.dk/p/Files/boligdata/BeboerMapper/132/Budget/afd.-132---2018.pdf)
                                            [Afd. 132 - 2020.pdf](https://vab.dk/p/Files/boligdata/BeboerMapper/132/Budget/Afd.-132---2020.pdf)
                                            [afd. 132 - 2022.pdf](https://vab.dk/p/Files/boligdata/BeboerMapper/132/Budget/afd.-132---2022.pdf)
                                            [afd. 132 - 2023.pdf](https://vab.dk/p/Files/boligdata/BeboerMapper/132/Budget/afd.-132---2023.pdf)
                                            [afd. 132 - 2024.pdf](https://vab.dk/p/Files/boligdata/BeboerMapper/132/Budget/afd.-132---2024.pdf)
                                            [afd. 132 - 2025.pdf](https://vab.dk/p/Files/boligdata/BeboerMapper/132/Budget/afd.-132---2025.pdf)
                                            [afd. 132 - 2026.pdf](https://vab.dk/p/Files/boligdata/BeboerMapper/132/Budget/afd.-132---2026.pdf)

###

                                                Husorden

[Afd. 132 - Tillæg til husorden.pdf](https://vab.dk/p/Files/boligdata/BeboerMapper/132/Husorden/Afd.-132---Till&#xE6;g-til-husorden.pdf)
                                            [Afd. 132.pdf](https://vab.dk/p/Files/boligdata/BeboerMapper/132/Husorden/Afd.-132.pdf)

###

                                                Råderet

[Afd. 132 Råderetskatalog - Bobjergvej 21-43.pdf](https://vab.dk/p/Files/boligdata/BeboerMapper/132/R&#xE5;deret/Afd.-132-R&#xE5;deretskatalog---Bobjergvej-21-43.pdf)
                                            [Afd. 132 Råderetskatalog - Bobjergvej 24A-N.pdf](https://vab.dk/p/Files/boligdata/BeboerMapper/132/R&#xE5;deret/Afd.-132-R&#xE5;deretskatalog---Bobjergvej-24A-N.pdf)
                                            [Afd. 132 Råderetskatalog - Havrevænget.pdf](https://vab.dk/p/Files/boligdata/BeboerMapper/132/R&#xE5;deret/Afd.-132-R&#xE5;deretskatalog---Havrev&#xE6;nget.pdf)
                                            [Afd. 132 Råderetskatalog - Stadionvej.pdf](https://vab.dk/p/Files/boligdata/BeboerMapper/132/R&#xE5;deret/Afd.-132-R&#xE5;deretskatalog---Stadionvej.pdf)
                                            [Afd. 132 Råderetskatalog- Bobjergvej 19A-N.pdf](https://vab.dk/p/Files/boligdata/BeboerMapper/132/R&#xE5;deret/Afd.-132-R&#xE5;deretskatalog--Bobjergvej-19A-N.pdf)

###

                                                Drift- og vedligeholdelsesplaner

[afd. 132 - 2025.pdf](https://vab.dk/p/Files/boligdata/BeboerMapper/132/Drift-%20og%20vedligeholdelsesplaner/afd.-132---2025.pdf)
                                            [Afd. 132 - 2026.pdf](https://vab.dk/p/Files/boligdata/BeboerMapper/132/Drift-%20og%20vedligeholdelsesplaner/Afd.-132---2026.pdf)

###

                                                Diverse

[afd. 132 - ABA info.pdf](https://vab.dk/p/Files/boligdata/BeboerMapper/132/Diverse/afd.-132---ABA-info.pdf)

###

                                                Vejledning til budget og regnskab

[Folder Læs og forstå budget og regnskab.pdf](https://vab.dk/p/Files/boligdata/BeboerMapper/F&#xE6;lles/Vejledning%20til%20budget%20og%20regnskab/Folder-L&#xE6;s-og-forst&#xE5;-budget-og-regnskab.pdf)

###

                                                Behandling og Vedligeholdelse (Fælles)

[Behandling og vedligeholdelsesvejledning.pdf](https://vab.dk/p/Files/boligdata/BeboerMapper/F&#xE6;lles/Behandling_Vedligeholdelse/Behandling-og-vedligeholdelsesvejledning.pdf)
                                            [Det kan betale sig at spare på ressourcerne.pdf](https://vab.dk/p/Files/boligdata/BeboerMapper/F&#xE6;lles/Behandling_Vedligeholdelse/Det-kan-betale-sig-at-spare-p&#xE5;-ressourcerne.pdf)
                                            [Luft ud.pdf](https://vab.dk/p/Files/boligdata/BeboerMapper/F&#xE6;lles/Behandling_Vedligeholdelse/Luft-ud.pdf)
                                            [Standardvedligeholdelsesreglement.pdf](https://vab.dk/p/Files/boligdata/BeboerMapper/F&#xE6;lles/Behandling_Vedligeholdelse/Standardvedligeholdelsesreglement.pdf)
                                            [Termostatventiler.pdf](https://vab.dk/p/Files/boligdata/BeboerMapper/F&#xE6;lles/Behandling_Vedligeholdelse/Termostatventiler.pdf)
                                            [Vandmåler.pdf](https://vab.dk/p/Files/boligdata/BeboerMapper/F&#xE6;lles/Behandling_Vedligeholdelse/Vandm&#xE5;ler.pdf)
                                            [Vedligeholdelse af sanitet.pdf](https://vab.dk/p/Files/boligdata/BeboerMapper/F&#xE6;lles/Behandling_Vedligeholdelse/Vedligeholdelse-af-sanitet.pdf)
                                            [Vedligeholdelse flyttekøkkener.pdf](https://vab.dk/p/Files/boligdata/BeboerMapper/F&#xE6;lles/Behandling_Vedligeholdelse/Vedligeholdelse-flyttek&#xF8;kkener.pdf)
                                            [Vedligeholdelse laminatbordplader.pdf](https://vab.dk/p/Files/boligdata/BeboerMapper/F&#xE6;lles/Behandling_Vedligeholdelse/Vedligeholdelse-laminatbordplader.pdf)

###

                                                Husorden (Fælles)

[Liste over forbudte hunderacer.pdf](https://vab.dk/p/Files/boligdata/BeboerMapper/F&#xE6;lles/Husorden/Liste-over-forbudte-hunderacer.pdf)
                                            [Standard husorden - Arabisk.pdf](https://vab.dk/p/Files/boligdata/BeboerMapper/F&#xE6;lles/Husorden/Standard-husorden---Arabisk.pdf)
                                            [Standard husorden.pdf](https://vab.dk/p/Files/boligdata/BeboerMapper/F&#xE6;lles/Husorden/Standard-husorden.pdf)

###

                                                Råderet (Fælles)

[Råderetsreglerne.pdf](https://vab.dk/p/Files/boligdata/BeboerMapper/F&#xE6;lles/R&#xE5;deret/R&#xE5;deretsreglerne.pdf)

## Kontaktpersoner i afdelingen

### Dorthe Kildegaard Goldbæk

Teknisk sagsbehandler

nord@vab.dk

### Erik Jespersen

Inspektør

nord@vab.dk

### Jørgen Rud

Inspektør

nord@vab.dk

### Lene Christensen

Udlejningssagsbehandler

udlejning@vab.dk

### Maria Adamsen

Økonomisk sagsbehandler

okonomi@vab.dk

### Stephan Madsen Mortensen

Driftschef

nord@vab.dk

### Tina Dyreholt

Teknisk Sagsbehandler

nord@vab.dk
