---
title: "Afdeling 137 - Tømmervænget"
description: "Afdeling 137 - Tømmervænget"
date: "2026-05-15"
created: "2025-02-10"
---

-
-
-
-
-

https://maps.google.dk/?q=55.7225095,11.460279

# Tømmervænget

Afdeling 137

## Velkommen til Tømmervænget 1-21 (U) & 2-6 (L)

Rækkehuse opført i rosé sten i 1 & 1½ plan, 14 boliger - 2 og 3 rums. Byggeår 1996.

Afdelingen skal gennemgå en renovering, hvor boligerne får ny varmekilde, nye vinduer og ovenlysvinduer samt efterisolering af loftet. Opstart for renoveringen er endnu ikke kendt.

## Faciliteter

Husdyr

Ja

Det er tilladt at holde et husdyr pr. lejemål.

TV og internet

Ja

Lejer skal selv vælge sin TV og internetudbyder og betale direkte til udbyderen. Der er fibernet.

Varme

Se mere

Eget gasfyr.

Hårde hvidevarer

Ja

Komfur, køleskab og emhætte.

## Boligtyper i afdelingen

Familiebolig

2 værelses

Familiebolig

Familiebolig

3 værelses

Familiebolig

##

Angivet husleje er ex. forbrug

Boligtype

Værelser

Størrelse

Husleje

Indskud/dp

Plantegning

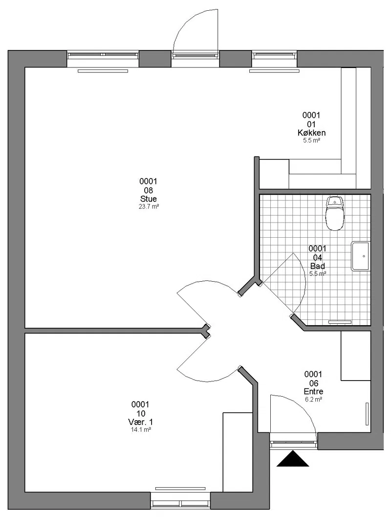
Familiebolig

2

66 m²

4942 kr.

12300 kr.

![](https://vab.dk/i/MOLIRIMEDIA/d08aba2e-f387-4098-bba0-08dd476e8eef?width=800)






![](https://vab.dk/i/MOLIRIMEDIA/d08aba2e-f387-4098-bba0-08dd476e8eef?width=800)

![](https://vab.dk/i/MOLIRIMEDIA/327b15cf-bef4-4250-c4ea-08dd476e8eef?width=800)

![](https://vab.dk/i/MOLIRIMEDIA/d08aba2e-f387-4098-bba0-08dd476e8eef?width=800)

![](https://vab.dk/i/MOLIRIMEDIA/327b15cf-bef4-4250-c4ea-08dd476e8eef?width=800)

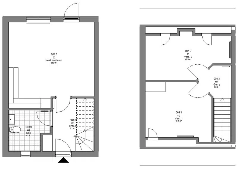
Familiebolig

3

77 m²

5756 kr.

14300 kr.

![](https://vab.dk/i/MOLIRIMEDIA/01526520-f6be-4599-c719-08dd476e8eef?width=800)






![](https://vab.dk/i/MOLIRIMEDIA/01526520-f6be-4599-c719-08dd476e8eef?width=800)

![](https://vab.dk/i/MOLIRIMEDIA/1e1e0e56-a9f0-459d-bd7b-08dd476e8eef?width=800)

![](https://vab.dk/i/MOLIRIMEDIA/01526520-f6be-4599-c719-08dd476e8eef?width=800)

![](https://vab.dk/i/MOLIRIMEDIA/1e1e0e56-a9f0-459d-bd7b-08dd476e8eef?width=800)

## Afdelingens afstande til

Indkøbsmuligheder

meter

Park & natur

meter

Træning

meter

Bus

meter

Skole/uddanelse

meter

Institution

meter

## Afdelingsdokumenter

Her finder du nyttig information om din afdeling, såsom husorden, vedligeholdelse af dit lejemål m.m.

###

                                                Budget

[afd. 137 - 2015.pdf](https://vab.dk/p/Files/boligdata/BeboerMapper/137/Budget/afd.-137---2015.pdf)
                                            [Afd. 137 - 2016.pdf](https://vab.dk/p/Files/boligdata/BeboerMapper/137/Budget/Afd.-137---2016.pdf)
                                            [afd. 137 - 2017.pdf](https://vab.dk/p/Files/boligdata/BeboerMapper/137/Budget/afd.-137---2017.pdf)
                                            [afd. 137 - 2018.pdf](https://vab.dk/p/Files/boligdata/BeboerMapper/137/Budget/afd.-137---2018.pdf)
                                            [Afd. 137 - 2020.pdf](https://vab.dk/p/Files/boligdata/BeboerMapper/137/Budget/Afd.-137---2020.pdf)
                                            [afd. 137 - 2022.pdf](https://vab.dk/p/Files/boligdata/BeboerMapper/137/Budget/afd.-137---2022.pdf)
                                            [afd. 137 - 2023.pdf](https://vab.dk/p/Files/boligdata/BeboerMapper/137/Budget/afd.-137---2023.pdf)
                                            [afd. 137 - 2024.pdf](https://vab.dk/p/Files/boligdata/BeboerMapper/137/Budget/afd.-137---2024.pdf)
                                            [afd. 137 - 2025.pdf](https://vab.dk/p/Files/boligdata/BeboerMapper/137/Budget/afd.-137---2025.pdf)
                                            [afd. 137 - 2026.pdf](https://vab.dk/p/Files/boligdata/BeboerMapper/137/Budget/afd.-137---2026.pdf)

###

                                                Råderet

[Afd. 137 Råderetskatalog.pdf](https://vab.dk/p/Files/boligdata/BeboerMapper/137/R&#xE5;deret/Afd.-137-R&#xE5;deretskatalog.pdf)

###

                                                Drift- og vedligeholdelsesplaner

[afd. 137 - 2025.pdf](https://vab.dk/p/Files/boligdata/BeboerMapper/137/Drift-%20og%20vedligeholdelsesplaner/afd.-137---2025.pdf)
                                            [afd. 137 - 2026.pdf](https://vab.dk/p/Files/boligdata/BeboerMapper/137/Drift-%20og%20vedligeholdelsesplaner/afd.-137---2026.pdf)

###

                                                Vejledning til budget og regnskab

[Folder Læs og forstå budget og regnskab.pdf](https://vab.dk/p/Files/boligdata/BeboerMapper/F&#xE6;lles/Vejledning%20til%20budget%20og%20regnskab/Folder-L&#xE6;s-og-forst&#xE5;-budget-og-regnskab.pdf)

###

                                                Behandling og Vedligeholdelse (Fælles)

[Behandling og vedligeholdelsesvejledning.pdf](https://vab.dk/p/Files/boligdata/BeboerMapper/F&#xE6;lles/Behandling_Vedligeholdelse/Behandling-og-vedligeholdelsesvejledning.pdf)
                                            [Det kan betale sig at spare på ressourcerne.pdf](https://vab.dk/p/Files/boligdata/BeboerMapper/F&#xE6;lles/Behandling_Vedligeholdelse/Det-kan-betale-sig-at-spare-p&#xE5;-ressourcerne.pdf)
                                            [Luft ud.pdf](https://vab.dk/p/Files/boligdata/BeboerMapper/F&#xE6;lles/Behandling_Vedligeholdelse/Luft-ud.pdf)
                                            [Standardvedligeholdelsesreglement.pdf](https://vab.dk/p/Files/boligdata/BeboerMapper/F&#xE6;lles/Behandling_Vedligeholdelse/Standardvedligeholdelsesreglement.pdf)
                                            [Termostatventiler.pdf](https://vab.dk/p/Files/boligdata/BeboerMapper/F&#xE6;lles/Behandling_Vedligeholdelse/Termostatventiler.pdf)
                                            [Vandmåler.pdf](https://vab.dk/p/Files/boligdata/BeboerMapper/F&#xE6;lles/Behandling_Vedligeholdelse/Vandm&#xE5;ler.pdf)
                                            [Vedligeholdelse af sanitet.pdf](https://vab.dk/p/Files/boligdata/BeboerMapper/F&#xE6;lles/Behandling_Vedligeholdelse/Vedligeholdelse-af-sanitet.pdf)
                                            [Vedligeholdelse flyttekøkkener.pdf](https://vab.dk/p/Files/boligdata/BeboerMapper/F&#xE6;lles/Behandling_Vedligeholdelse/Vedligeholdelse-flyttek&#xF8;kkener.pdf)
                                            [Vedligeholdelse laminatbordplader.pdf](https://vab.dk/p/Files/boligdata/BeboerMapper/F&#xE6;lles/Behandling_Vedligeholdelse/Vedligeholdelse-laminatbordplader.pdf)

###

                                                Husorden (Fælles)

[Liste over forbudte hunderacer.pdf](https://vab.dk/p/Files/boligdata/BeboerMapper/F&#xE6;lles/Husorden/Liste-over-forbudte-hunderacer.pdf)
                                            [Standard husorden - Arabisk.pdf](https://vab.dk/p/Files/boligdata/BeboerMapper/F&#xE6;lles/Husorden/Standard-husorden---Arabisk.pdf)
                                            [Standard husorden.pdf](https://vab.dk/p/Files/boligdata/BeboerMapper/F&#xE6;lles/Husorden/Standard-husorden.pdf)

###

                                                Råderet (Fælles)

[Råderetsreglerne.pdf](https://vab.dk/p/Files/boligdata/BeboerMapper/F&#xE6;lles/R&#xE5;deret/R&#xE5;deretsreglerne.pdf)

## Kontaktpersoner i afdelingen

### Anne Suhr

Udlejningssagsbehandler

udlejning@vab.dk

### Channie Schleicher

Teknisk sagsbehandler

midt@vab.dk

### Christina Lebech Løve

Økonomisk sagsbehandler

okonomi@vab.dk

### Evy Marie Nielsen

Driftschef

midt@vab.dk

### Maria Nørregaard Nielsen

Inspektør

midt@vab.dk

### Vinni Barsøe

Teknisk sagsbehandler

midt@vab.dk
