---
title: "Afdeling 144 - Havevangen"
description: "Afdeling 144 - Havevangen"
date: "2026-05-15"
created: "2025-07-30"
---

-
-

https://maps.google.dk/?q=55.8047965,11.4419684

# Havevangen

Afdeling 144

## Velkommen til Havevangen 2-47

Afdelingen er opført i 1998 og består af 12 ældreboliger, som alle er 2-rums boliger. I 2021 er yderligere 8 2-rums familieboliger blevet renoveret.

Kontakt Kommunen for yderligere information om opskrivning.

## Faciliteter

Husdyr

Nej

Husdyr ikke tilladt

TV og internet

Ja

Lejer skal selv vælge sin TV og internetudbyder og betale direkte til udbyderen. Der er fibernet.

Varme

Se mere

Fælles gasfyr.

Hårde hvidevarer

Ja

Dropinette, emhætte og køle/fryseskab.

ABA-anlæg

Ja

Der forefindes ABA-anlæg (aut. brandalarmeringsanlæg) i ældreboligerne.

Elevator

Ja

## Boligtyper i afdelingen

Familiebolig

2 værelses

Familiebolig

Ældrebolig

2 værelses

Ældrebolig

##

Angivet husleje er ex. forbrug

Boligtype

Værelser

Størrelse

Husleje

Indskud/dp

Plantegning

Familiebolig

2

74 m²

5067 kr.

13005 kr.

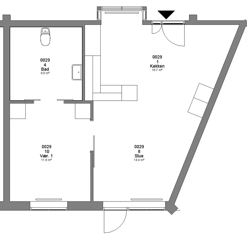
Ældrebolig

2

71 m²

6819 kr.

17400 kr.

![](https://vab.dk/i/MOLIRIMEDIA/e9b3bf85-3241-443a-bea3-08dd476e8eef?width=800)

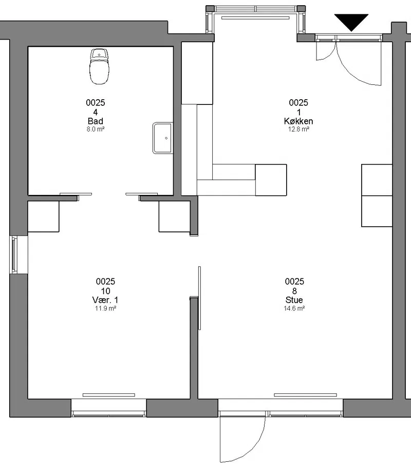
Ældrebolig

2

65 m²

6241 kr.

15900 kr.

![](https://vab.dk/i/MOLIRIMEDIA/ad135c14-53ab-43e9-bacf-08dd476e8eef?width=800)

## Afdelingens afstande til

Indkøbsmuligheder

meter

Park & natur

meter

Træning

meter

Bus

meter

Skole/uddanelse

meter

Institution

meter

## Afdelingsdokumenter

Her finder du nyttig information om din afdeling, såsom husorden, vedligeholdelse af dit lejemål m.m.

###

                                                Budget

[afd. 144 - 2015.pdf](https://vab.dk/p/Files/boligdata/BeboerMapper/144/Budget/afd.-144---2015.pdf)
                                            [Afd. 144 - 2016.pdf](https://vab.dk/p/Files/boligdata/BeboerMapper/144/Budget/Afd.-144---2016.pdf)
                                            [afd. 144 - 2017.pdf](https://vab.dk/p/Files/boligdata/BeboerMapper/144/Budget/afd.-144---2017.pdf)
                                            [afd. 144 - 2018.pdf](https://vab.dk/p/Files/boligdata/BeboerMapper/144/Budget/afd.-144---2018.pdf)
                                            [Afd. 144 - 2020.pdf](https://vab.dk/p/Files/boligdata/BeboerMapper/144/Budget/Afd.-144---2020.pdf)
                                            [afd. 144 - 2022.pdf](https://vab.dk/p/Files/boligdata/BeboerMapper/144/Budget/afd.-144---2022.pdf)
                                            [afd. 144 - 2023.pdf](https://vab.dk/p/Files/boligdata/BeboerMapper/144/Budget/afd.-144---2023.pdf)
                                            [afd. 144 - 2024.pdf](https://vab.dk/p/Files/boligdata/BeboerMapper/144/Budget/afd.-144---2024.pdf)
                                            [afd. 144 - 2025.pdf](https://vab.dk/p/Files/boligdata/BeboerMapper/144/Budget/afd.-144---2025.pdf)
                                            [afd. 144 - 2026.pdf](https://vab.dk/p/Files/boligdata/BeboerMapper/144/Budget/afd.-144---2026.pdf)

###

                                                Markvandringsrapport

[afd. 144.pdf](https://vab.dk/p/Files/boligdata/BeboerMapper/144/Markvandringsrapport/afd.-144.pdf)

###

                                                Råderet

[afd. 144 Råderetskatalog - standard.pdf](https://vab.dk/p/Files/boligdata/BeboerMapper/144/R&#xE5;deret/afd.-144-R&#xE5;deretskatalog---standard.pdf)

###

                                                Drift- og vedligeholdelsesplaner

[Afd. 144 - 2025.pdf](https://vab.dk/p/Files/boligdata/BeboerMapper/144/Drift-%20og%20vedligeholdelsesplaner/Afd.-144---2025.pdf)
                                            [afd. 144 - 2026.pdf](https://vab.dk/p/Files/boligdata/BeboerMapper/144/Drift-%20og%20vedligeholdelsesplaner/afd.-144---2026.pdf)

###

                                                Diverse

[afd. 144 - ABA info.pdf](https://vab.dk/p/Files/boligdata/BeboerMapper/144/Diverse/afd.-144---ABA-info.pdf)
                                            [afd. 144 - billeder af Havevangen 2 - 16.pdf](https://vab.dk/p/Files/boligdata/BeboerMapper/144/Diverse/afd.-144---billeder-af-Havevangen-2---16.pdf)

###

                                                Vejledning til budget og regnskab

[Folder Læs og forstå budget og regnskab.pdf](https://vab.dk/p/Files/boligdata/BeboerMapper/F&#xE6;lles/Vejledning%20til%20budget%20og%20regnskab/Folder-L&#xE6;s-og-forst&#xE5;-budget-og-regnskab.pdf)

###

                                                Behandling og Vedligeholdelse (Fælles)

[Behandling og vedligeholdelsesvejledning.pdf](https://vab.dk/p/Files/boligdata/BeboerMapper/F&#xE6;lles/Behandling_Vedligeholdelse/Behandling-og-vedligeholdelsesvejledning.pdf)
                                            [Det kan betale sig at spare på ressourcerne.pdf](https://vab.dk/p/Files/boligdata/BeboerMapper/F&#xE6;lles/Behandling_Vedligeholdelse/Det-kan-betale-sig-at-spare-p&#xE5;-ressourcerne.pdf)
                                            [Luft ud.pdf](https://vab.dk/p/Files/boligdata/BeboerMapper/F&#xE6;lles/Behandling_Vedligeholdelse/Luft-ud.pdf)
                                            [Standardvedligeholdelsesreglement.pdf](https://vab.dk/p/Files/boligdata/BeboerMapper/F&#xE6;lles/Behandling_Vedligeholdelse/Standardvedligeholdelsesreglement.pdf)
                                            [Termostatventiler.pdf](https://vab.dk/p/Files/boligdata/BeboerMapper/F&#xE6;lles/Behandling_Vedligeholdelse/Termostatventiler.pdf)
                                            [Vandmåler.pdf](https://vab.dk/p/Files/boligdata/BeboerMapper/F&#xE6;lles/Behandling_Vedligeholdelse/Vandm&#xE5;ler.pdf)
                                            [Vedligeholdelse af sanitet.pdf](https://vab.dk/p/Files/boligdata/BeboerMapper/F&#xE6;lles/Behandling_Vedligeholdelse/Vedligeholdelse-af-sanitet.pdf)
                                            [Vedligeholdelse flyttekøkkener.pdf](https://vab.dk/p/Files/boligdata/BeboerMapper/F&#xE6;lles/Behandling_Vedligeholdelse/Vedligeholdelse-flyttek&#xF8;kkener.pdf)
                                            [Vedligeholdelse laminatbordplader.pdf](https://vab.dk/p/Files/boligdata/BeboerMapper/F&#xE6;lles/Behandling_Vedligeholdelse/Vedligeholdelse-laminatbordplader.pdf)

###

                                                Husorden (Fælles)

[Liste over forbudte hunderacer.pdf](https://vab.dk/p/Files/boligdata/BeboerMapper/F&#xE6;lles/Husorden/Liste-over-forbudte-hunderacer.pdf)
                                            [Standard husorden - Arabisk.pdf](https://vab.dk/p/Files/boligdata/BeboerMapper/F&#xE6;lles/Husorden/Standard-husorden---Arabisk.pdf)
                                            [Standard husorden.pdf](https://vab.dk/p/Files/boligdata/BeboerMapper/F&#xE6;lles/Husorden/Standard-husorden.pdf)

###

                                                Råderet (Fælles)

[Råderetsreglerne.pdf](https://vab.dk/p/Files/boligdata/BeboerMapper/F&#xE6;lles/R&#xE5;deret/R&#xE5;deretsreglerne.pdf)

## Kontaktpersoner i afdelingen

### Dorthe Kildegaard Goldbæk

Teknisk sagsbehandler

nord@vab.dk

### Erik Jespersen

Inspektør

nord@vab.dk

### Jørgen Rud

Inspektør

nord@vab.dk

### Lene Christensen

Udlejningssagsbehandler

udlejning@vab.dk

### Rikke Støving Andersen

Økonomisk Sagsbehandler

### Stephan Madsen Mortensen

Driftschef

nord@vab.dk

### Susan Vind

Økonomisk sagsbehandler

okonomi@vab.dk

### Tina Dyreholt

Teknisk Sagsbehandler

nord@vab.dk
