---
title: "Afdeling 195 - Ahlgade og Bagstræde"
description: "Afdeling 195 - Ahlgade og Bagstræde"
date: "2026-05-15"
created: "2025-02-10"
---

-
-
-
-

https://maps.google.dk/?q=55.7178471,11.7109171

# Ahlgade og Bagstræde

Afdeling 195

## Velkommen til Ahlgade 36 + Bagstræde 5

Afdelingen består af 18 familieboliger, fordelt i to huse, med facade mod henholdsvis Ahlgade og Bagstræde. Der er elevator.

## Faciliteter

Husdyr

Nej

Husdyr ikke tilladt

TV og internet

Ja

Lejer skal selv vælge sin TV og internetudbyder og betale direkte til udbyderen. Der er fibernet.

Varme

Se mere

Naturgas

Hårde hvidevarer

Ja

Køle/frysskab, emhætte, komfur og opvaskemaskine.

Dørtelefon

Ja

Elevator

Ja

## Boligtyper i afdelingen

Familiebolig

2 værelses

Familiebolig

Familiebolig

3 værelses

Familiebolig

##

Angivet husleje er ex. forbrug

Boligtype

Værelser

Størrelse

Husleje

Indskud/dp

Plantegning

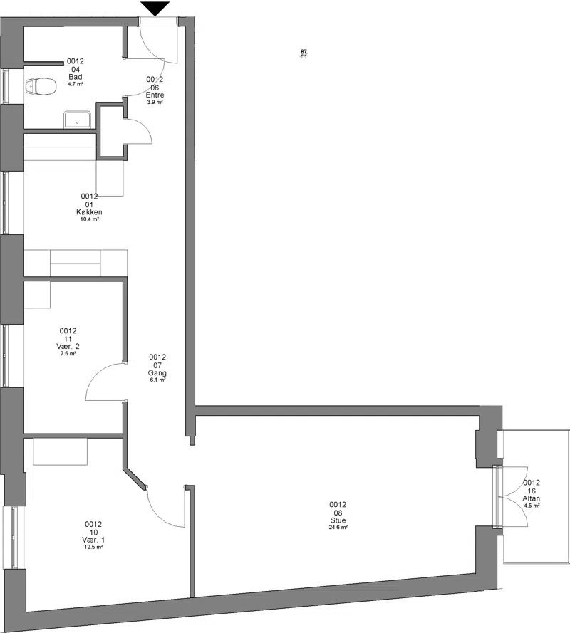
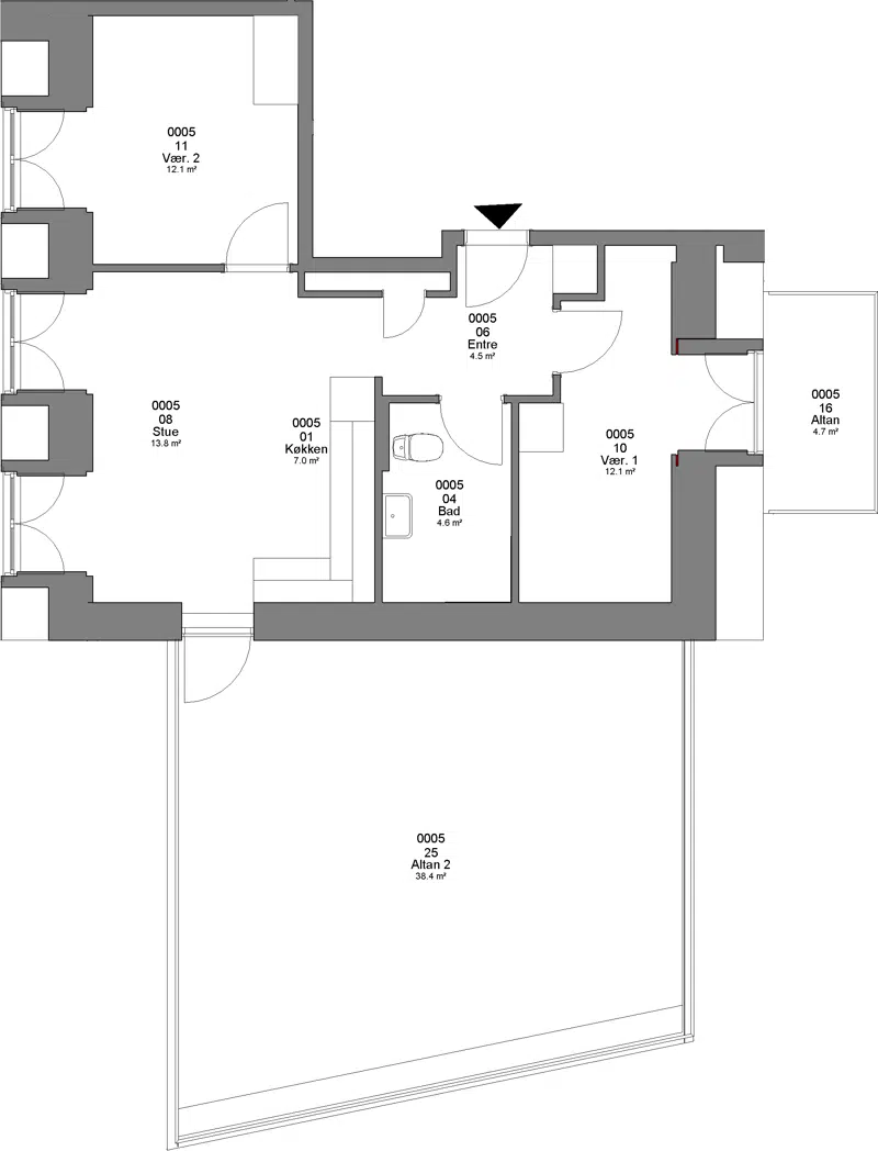
Familiebolig

2

97 m²

9005 kr.

38400 kr.

![](https://vab.dk/i/MOLIRIMEDIA/b3c3c399-a4e8-4227-b849-08dd476e8eef?width=800)

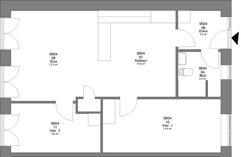
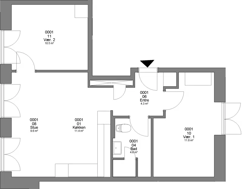
Familiebolig

2

69 m²

6405 kr.

27300 kr.

![](https://vab.dk/i/MOLIRIMEDIA/b5cf5551-1878-4826-bf1c-08dd476e8eef?width=800)

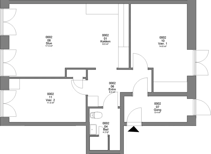
Familiebolig

2

70 m²

6498 kr.

27700 kr.

![](https://vab.dk/i/MOLIRIMEDIA/4bb7a080-f489-47e0-c4d9-08dd476e8eef?width=800)

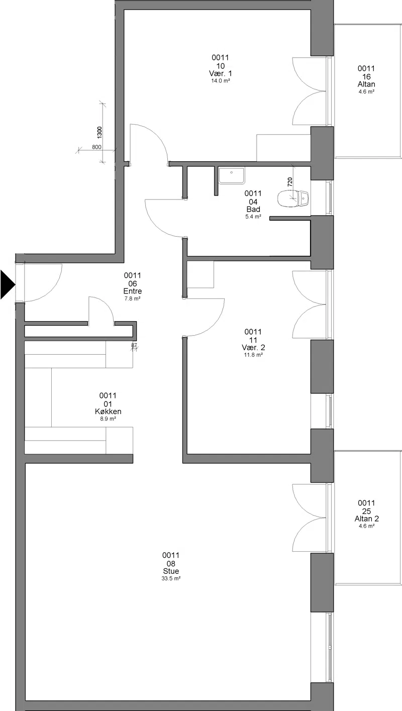
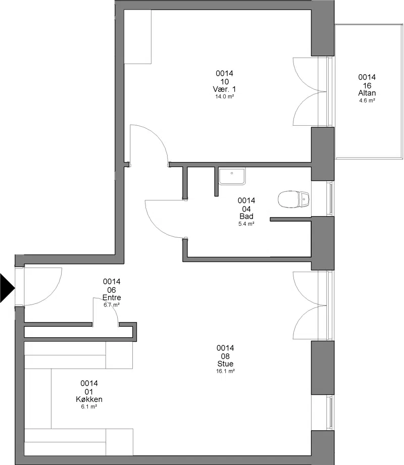
Familiebolig

3

100 m²

9283 kr.

39600 kr.

![](https://vab.dk/i/MOLIRIMEDIA/cfd77cb0-16cc-4bb9-b8f1-08dd476e8eef?width=800)

Familiebolig

3

98 m²

9098 kr.

38800 kr.

![](https://vab.dk/i/MOLIRIMEDIA/7fbdcbff-b7fd-4be0-bd90-08dd476e8eef?width=800)

Familiebolig

3

107 m²

9934 kr.

42400 kr.

![](https://vab.dk/i/MOLIRIMEDIA/38ffa3ea-52ee-4d30-b964-08dd476e8eef?width=800)

Familiebolig

3

103 m²

9564 kr.

40800 kr.

![](https://vab.dk/i/MOLIRIMEDIA/9f2f01f6-4e86-411e-c547-08dd476e8eef?width=800)

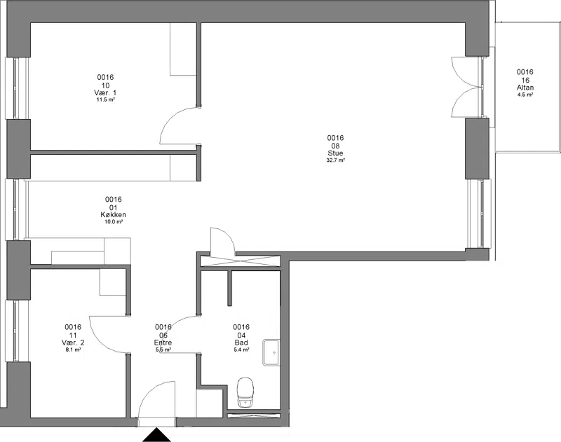
Familiebolig

3

108 m²

9950 kr.

42400 kr.

![](https://vab.dk/i/MOLIRIMEDIA/6d0a7c5f-34a3-4067-c7d5-08dd476e8eef?width=800)

Familiebolig

3

81 m²

7598 kr.

32500 kr.

![](https://vab.dk/i/MOLIRIMEDIA/a3229242-8f78-4428-b9c5-08dd476e8eef?width=800)

Familiebolig

3

75 m²

6964 kr.

29700 kr.

![](https://vab.dk/i/MOLIRIMEDIA/3e519a6c-6e3b-45b3-bd9c-08dd476e8eef?width=800)

Familiebolig

3

95 m²

8819 kr.

37600 kr.

![](https://vab.dk/i/MOLIRIMEDIA/f32515d4-42c3-42c9-ba83-08dd476e8eef?width=800)

Familiebolig

3

87 m²

8078 kr.

34500 kr.

![](https://vab.dk/i/MOLIRIMEDIA/fbaa0308-ad67-4058-b8e5-08dd476e8eef?width=800)

Familiebolig

3

76 m²

7054 kr.

30100 kr.

![](https://vab.dk/i/MOLIRIMEDIA/88a38828-08f9-4a80-c40e-08dd476e8eef?width=800)

## Afdelingens afstande til

Indkøbsmuligheder

meter

Park & natur

meter

Træning

meter

Bus

meter

Skole/uddanelse

meter

Institution

meter

## Afdelingsdokumenter

Her finder du nyttig information om din afdeling, såsom husorden, vedligeholdelse af dit lejemål m.m.

###

                                                Behandling og Vedligeholdelse

[Afd. 195 - Brugervejledning Brunata Online.pdf](https://vab.dk/p/Files/boligdata/BeboerMapper/195/Behandling_Vedligeholdelse/Afd.-195---Brugervejledning-Brunata-Online.pdf)
                                            [Afd. 195 - Trægulv.pdf](https://vab.dk/p/Files/boligdata/BeboerMapper/195/Behandling_Vedligeholdelse/Afd.-195---Tr&#xE6;gulv.pdf)

###

                                                Budget

[afd. 195 - 2017.pdf](https://vab.dk/p/Files/boligdata/BeboerMapper/195/Budget/afd.-195---2017.pdf)
                                            [afd. 195 - 2018.pdf](https://vab.dk/p/Files/boligdata/BeboerMapper/195/Budget/afd.-195---2018.pdf)
                                            [Afd. 195 - 2020.pdf](https://vab.dk/p/Files/boligdata/BeboerMapper/195/Budget/Afd.-195---2020.pdf)
                                            [afd. 195 - 2022.pdf](https://vab.dk/p/Files/boligdata/BeboerMapper/195/Budget/afd.-195---2022.pdf)
                                            [afd. 195 - 2023.pdf](https://vab.dk/p/Files/boligdata/BeboerMapper/195/Budget/afd.-195---2023.pdf)
                                            [afd. 195 - 2024.pdf](https://vab.dk/p/Files/boligdata/BeboerMapper/195/Budget/afd.-195---2024.pdf)
                                            [afd. 195 - 2025.pdf](https://vab.dk/p/Files/boligdata/BeboerMapper/195/Budget/afd.-195---2025.pdf)
                                            [afd. 195 - 2026.pdf](https://vab.dk/p/Files/boligdata/BeboerMapper/195/Budget/afd.-195---2026.pdf)

###

                                                Råderet

[afd. 195.pdf](https://vab.dk/p/Files/boligdata/BeboerMapper/195/R&#xE5;deret/afd.-195.pdf)

###

                                                Drift- og vedligeholdelsesplaner

[afd. 195 - 2025.pdf](https://vab.dk/p/Files/boligdata/BeboerMapper/195/Drift-%20og%20vedligeholdelsesplaner/afd.-195---2025.pdf)
                                            [afd. 195 - 2026.pdf](https://vab.dk/p/Files/boligdata/BeboerMapper/195/Drift-%20og%20vedligeholdelsesplaner/afd.-195---2026.pdf)

###

                                                Diverse

[afd. 195 - parkering.pdf](https://vab.dk/p/Files/boligdata/BeboerMapper/195/Diverse/afd.-195---parkering.pdf)

###

                                                Vejledning til budget og regnskab

[Folder Læs og forstå budget og regnskab.pdf](https://vab.dk/p/Files/boligdata/BeboerMapper/F&#xE6;lles/Vejledning%20til%20budget%20og%20regnskab/Folder-L&#xE6;s-og-forst&#xE5;-budget-og-regnskab.pdf)

###

                                                Behandling og Vedligeholdelse (Fælles)

[Behandling og vedligeholdelsesvejledning.pdf](https://vab.dk/p/Files/boligdata/BeboerMapper/F&#xE6;lles/Behandling_Vedligeholdelse/Behandling-og-vedligeholdelsesvejledning.pdf)
                                            [Det kan betale sig at spare på ressourcerne.pdf](https://vab.dk/p/Files/boligdata/BeboerMapper/F&#xE6;lles/Behandling_Vedligeholdelse/Det-kan-betale-sig-at-spare-p&#xE5;-ressourcerne.pdf)
                                            [Luft ud.pdf](https://vab.dk/p/Files/boligdata/BeboerMapper/F&#xE6;lles/Behandling_Vedligeholdelse/Luft-ud.pdf)
                                            [Standardvedligeholdelsesreglement.pdf](https://vab.dk/p/Files/boligdata/BeboerMapper/F&#xE6;lles/Behandling_Vedligeholdelse/Standardvedligeholdelsesreglement.pdf)
                                            [Termostatventiler.pdf](https://vab.dk/p/Files/boligdata/BeboerMapper/F&#xE6;lles/Behandling_Vedligeholdelse/Termostatventiler.pdf)
                                            [Vandmåler.pdf](https://vab.dk/p/Files/boligdata/BeboerMapper/F&#xE6;lles/Behandling_Vedligeholdelse/Vandm&#xE5;ler.pdf)
                                            [Vedligeholdelse af sanitet.pdf](https://vab.dk/p/Files/boligdata/BeboerMapper/F&#xE6;lles/Behandling_Vedligeholdelse/Vedligeholdelse-af-sanitet.pdf)
                                            [Vedligeholdelse flyttekøkkener.pdf](https://vab.dk/p/Files/boligdata/BeboerMapper/F&#xE6;lles/Behandling_Vedligeholdelse/Vedligeholdelse-flyttek&#xF8;kkener.pdf)
                                            [Vedligeholdelse laminatbordplader.pdf](https://vab.dk/p/Files/boligdata/BeboerMapper/F&#xE6;lles/Behandling_Vedligeholdelse/Vedligeholdelse-laminatbordplader.pdf)

###

                                                Husorden (Fælles)

[Liste over forbudte hunderacer.pdf](https://vab.dk/p/Files/boligdata/BeboerMapper/F&#xE6;lles/Husorden/Liste-over-forbudte-hunderacer.pdf)
                                            [Standard husorden - Arabisk.pdf](https://vab.dk/p/Files/boligdata/BeboerMapper/F&#xE6;lles/Husorden/Standard-husorden---Arabisk.pdf)
                                            [Standard husorden.pdf](https://vab.dk/p/Files/boligdata/BeboerMapper/F&#xE6;lles/Husorden/Standard-husorden.pdf)

###

                                                Råderet (Fælles)

[Råderetsreglerne.pdf](https://vab.dk/p/Files/boligdata/BeboerMapper/F&#xE6;lles/R&#xE5;deret/R&#xE5;deretsreglerne.pdf)

## Afdelingsbestyrelsesmedlemmer

Navn

Titel

Email

Telefon

Bitten Abben

Formand

Finn Abben

Medlem

Maria Dyreholt

Medlem

Adelheid Fischer

Suppleant

Ulla Nørmark Fink

Suppleant

## Kontaktpersoner i afdelingen

### Anne Suhr

Udlejningssagsbehandler

udlejning@vab.dk

### Channie Schleicher

Teknisk sagsbehandler

midt@vab.dk

### Christina Lebech Løve

Økonomisk sagsbehandler

okonomi@vab.dk

### Evy Marie Nielsen

Driftschef

midt@vab.dk

### Maria Nørregaard Nielsen

Inspektør

midt@vab.dk

### Vicevært

81775291

vice@vab.dk

### Vinni Barsøe

Teknisk sagsbehandler

midt@vab.dk
