---
title: "Afdeling 21 - Præstevænget"
description: "Afdeling 21 - Præstevænget"
date: "2026-05-15"
created: "2025-02-10"
---

-
-
-
-

https://maps.google.dk/?q=55.5892474,11.6575509

# Præstevænget

Afdeling 21

## Velkommen til Præstevænget 1-23

Rækkehuse opført i gule sten i 1 plan, 23 boliger - 2, 4 og 5 rums. Byggeår 1971.

## Faciliteter

Husdyr

Ja

Det er tilladt at holde en hund og en kat pr. lejemål.

TV og internet

Ja

Lejer skal selv vælge sin TV og internetudbyder og betale direkte til udbyderen. Der er fibernet.

Varme

Se mere

Der er fælles gasfyr med individuelt måler. Lejer betaler et a/c-beløb gennem huslejen. Der udarbejdes et varmeregnskab én gang årligt.

Vaskeri

Nej

Der findes ikke vaskeri i afdelingen

Hårde hvidevarer

Ja

Komfur.

## Boligtyper i afdelingen

Familiebolig

2 værelses

Familiebolig

Familiebolig

4 værelses

Familiebolig

Familiebolig

5 værelses

Familiebolig

##

Angivet husleje er ex. forbrug

Boligtype

Værelser

Størrelse

Husleje

Indskud/dp

Plantegning

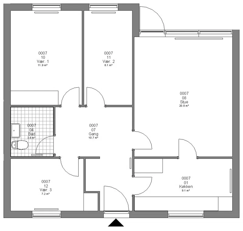
Familiebolig

2

61 m²

5120 kr.

10900 kr.

![](https://vab.dk/i/MOLIRIMEDIA/259bc339-ae5b-4aba-bed6-08dd476e8eef?width=800)






![](https://vab.dk/i/MOLIRIMEDIA/259bc339-ae5b-4aba-bed6-08dd476e8eef?width=800)

![](https://vab.dk/i/MOLIRIMEDIA/b2e6848a-354e-4485-c5b1-08dd476e8eef?width=800)

![](https://vab.dk/i/MOLIRIMEDIA/259bc339-ae5b-4aba-bed6-08dd476e8eef?width=800)

![](https://vab.dk/i/MOLIRIMEDIA/b2e6848a-354e-4485-c5b1-08dd476e8eef?width=800)

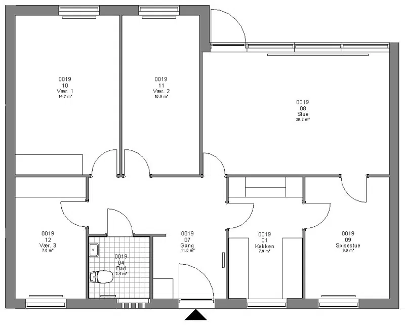
Familiebolig

4

83 m²

6007 kr.

14900 kr.

![](https://vab.dk/i/MOLIRIMEDIA/318647a4-95c2-4736-c304-08dd476e8eef?width=800)






![](https://vab.dk/i/MOLIRIMEDIA/318647a4-95c2-4736-c304-08dd476e8eef?width=800)

![](https://vab.dk/i/MOLIRIMEDIA/2cc5be3a-238a-44a0-b7f2-08dd476e8eef?width=800)

![](https://vab.dk/i/MOLIRIMEDIA/318647a4-95c2-4736-c304-08dd476e8eef?width=800)

![](https://vab.dk/i/MOLIRIMEDIA/2cc5be3a-238a-44a0-b7f2-08dd476e8eef?width=800)

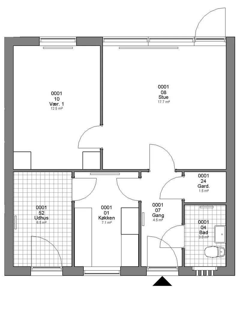
Familiebolig

5

100 m²

6709 kr.

18100 kr.

![](https://vab.dk/i/MOLIRIMEDIA/bf6684af-ea11-4975-c2a2-08dd476e8eef?width=800)






![](https://vab.dk/i/MOLIRIMEDIA/bf6684af-ea11-4975-c2a2-08dd476e8eef?width=800)

![](https://vab.dk/i/MOLIRIMEDIA/6cd66b58-676f-484b-c7c1-08dd476e8eef?width=800)

![](https://vab.dk/i/MOLIRIMEDIA/bf6684af-ea11-4975-c2a2-08dd476e8eef?width=800)

![](https://vab.dk/i/MOLIRIMEDIA/6cd66b58-676f-484b-c7c1-08dd476e8eef?width=800)

## Afdelingens afstande til

Indkøbsmuligheder

meter

Park & natur

meter

Træning

meter

Bus

meter

Skole/uddanelse

meter

Institution

meter

## Afdelingsdokumenter

Her finder du nyttig information om din afdeling, såsom husorden, vedligeholdelse af dit lejemål m.m.

###

                                                Budget

[afd. 21 - 2015.pdf](https://vab.dk/p/Files/boligdata/BeboerMapper/21/Budget/afd.-21---2015.pdf)
                                            [Afd. 21 - 2016.pdf](https://vab.dk/p/Files/boligdata/BeboerMapper/21/Budget/Afd.-21---2016.pdf)
                                            [afd. 21 - 2017.pdf](https://vab.dk/p/Files/boligdata/BeboerMapper/21/Budget/afd.-21---2017.pdf)
                                            [afd. 21 - 2018.pdf](https://vab.dk/p/Files/boligdata/BeboerMapper/21/Budget/afd.-21---2018.pdf)
                                            [afd. 21 - 2019.pdf](https://vab.dk/p/Files/boligdata/BeboerMapper/21/Budget/afd.-21---2019.pdf)
                                            [Afd. 21 - 2020.pdf](https://vab.dk/p/Files/boligdata/BeboerMapper/21/Budget/Afd.-21---2020.pdf)
                                            [afd. 21 - 2022.pdf](https://vab.dk/p/Files/boligdata/BeboerMapper/21/Budget/afd.-21---2022.pdf)
                                            [afd. 21 - 2023.pdf](https://vab.dk/p/Files/boligdata/BeboerMapper/21/Budget/afd.-21---2023.pdf)
                                            [afd. 21 - 2024.pdf](https://vab.dk/p/Files/boligdata/BeboerMapper/21/Budget/afd.-21---2024.pdf)
                                            [afd. 21 - 2025.pdf](https://vab.dk/p/Files/boligdata/BeboerMapper/21/Budget/afd.-21---2025.pdf)
                                            [afd. 21 - 2026.pdf](https://vab.dk/p/Files/boligdata/BeboerMapper/21/Budget/afd.-21---2026.pdf)

###

                                                Husorden

[Afd. 21 - Tillæg til husorden.pdf](https://vab.dk/p/Files/boligdata/BeboerMapper/21/Husorden/Afd.-21---Till&#xE6;g-til-husorden.pdf)

###

                                                Markvandringsrapport

[afd. 21.pdf](https://vab.dk/p/Files/boligdata/BeboerMapper/21/Markvandringsrapport/afd.-21.pdf)

###

                                                Råderet

[Afd. 21.pdf](https://vab.dk/p/Files/boligdata/BeboerMapper/21/R&#xE5;deret/Afd.-21.pdf)

###

                                                Drift- og vedligeholdelsesplaner

[afd. 21 - 2022.pdf](https://vab.dk/p/Files/boligdata/BeboerMapper/21/Drift-%20og%20vedligeholdelsesplaner/afd.-21---2022.pdf)
                                            [afd. 21 - 2025.pdf](https://vab.dk/p/Files/boligdata/BeboerMapper/21/Drift-%20og%20vedligeholdelsesplaner/afd.-21---2025.pdf)
                                            [afd. 21 - 2026.pdf](https://vab.dk/p/Files/boligdata/BeboerMapper/21/Drift-%20og%20vedligeholdelsesplaner/afd.-21---2026.pdf)

###

                                                Vejledning til budget og regnskab

[Folder Læs og forstå budget og regnskab.pdf](https://vab.dk/p/Files/boligdata/BeboerMapper/F&#xE6;lles/Vejledning%20til%20budget%20og%20regnskab/Folder-L&#xE6;s-og-forst&#xE5;-budget-og-regnskab.pdf)

###

                                                Behandling og Vedligeholdelse (Fælles)

[Behandling og vedligeholdelsesvejledning.pdf](https://vab.dk/p/Files/boligdata/BeboerMapper/F&#xE6;lles/Behandling_Vedligeholdelse/Behandling-og-vedligeholdelsesvejledning.pdf)
                                            [Det kan betale sig at spare på ressourcerne.pdf](https://vab.dk/p/Files/boligdata/BeboerMapper/F&#xE6;lles/Behandling_Vedligeholdelse/Det-kan-betale-sig-at-spare-p&#xE5;-ressourcerne.pdf)
                                            [Luft ud.pdf](https://vab.dk/p/Files/boligdata/BeboerMapper/F&#xE6;lles/Behandling_Vedligeholdelse/Luft-ud.pdf)
                                            [Standardvedligeholdelsesreglement.pdf](https://vab.dk/p/Files/boligdata/BeboerMapper/F&#xE6;lles/Behandling_Vedligeholdelse/Standardvedligeholdelsesreglement.pdf)
                                            [Termostatventiler.pdf](https://vab.dk/p/Files/boligdata/BeboerMapper/F&#xE6;lles/Behandling_Vedligeholdelse/Termostatventiler.pdf)
                                            [Vandmåler.pdf](https://vab.dk/p/Files/boligdata/BeboerMapper/F&#xE6;lles/Behandling_Vedligeholdelse/Vandm&#xE5;ler.pdf)
                                            [Vedligeholdelse af sanitet.pdf](https://vab.dk/p/Files/boligdata/BeboerMapper/F&#xE6;lles/Behandling_Vedligeholdelse/Vedligeholdelse-af-sanitet.pdf)
                                            [Vedligeholdelse flyttekøkkener.pdf](https://vab.dk/p/Files/boligdata/BeboerMapper/F&#xE6;lles/Behandling_Vedligeholdelse/Vedligeholdelse-flyttek&#xF8;kkener.pdf)
                                            [Vedligeholdelse laminatbordplader.pdf](https://vab.dk/p/Files/boligdata/BeboerMapper/F&#xE6;lles/Behandling_Vedligeholdelse/Vedligeholdelse-laminatbordplader.pdf)

###

                                                Husorden (Fælles)

[Liste over forbudte hunderacer.pdf](https://vab.dk/p/Files/boligdata/BeboerMapper/F&#xE6;lles/Husorden/Liste-over-forbudte-hunderacer.pdf)
                                            [Standard husorden - Arabisk.pdf](https://vab.dk/p/Files/boligdata/BeboerMapper/F&#xE6;lles/Husorden/Standard-husorden---Arabisk.pdf)
                                            [Standard husorden.pdf](https://vab.dk/p/Files/boligdata/BeboerMapper/F&#xE6;lles/Husorden/Standard-husorden.pdf)

###

                                                Råderet (Fælles)

[Råderetsreglerne.pdf](https://vab.dk/p/Files/boligdata/BeboerMapper/F&#xE6;lles/R&#xE5;deret/R&#xE5;deretsreglerne.pdf)

## Afdelingsbestyrelsesmedlemmer

Navn

Titel

Email

Telefon

Leif Aagaard

Formand

leif@leifnet.dk

30 37 29 15

Monica Merete Andersen

Medlem

Christa Kjær Friberg

Medlem

Mathias Dræby Kristiansen

Suppleant

Pia Zenia Grensgaard

Suppleant

## Kontaktpersoner i afdelingen

### Anne Suhr

Udlejningssagsbehandler

udlejning@vab.dk

### Channie Schleicher

Teknisk sagsbehandler

midt@vab.dk

### Evy Marie Nielsen

Driftschef

midt@vab.dk

### Helle Trier Hansen

Økonomisk sagsbehandler

okonomi@vab.dk

### Maria Nørregaard Nielsen

Inspektør

midt@vab.dk

### Vinni Barsøe

Teknisk sagsbehandler

midt@vab.dk
