---
title: "Afdeling 225 - Torshaven"
description: "Afdeling 225 - Torshaven"
date: "2026-05-15"
created: "2025-07-01"
---

-
-
-
-
-
-
-

https://maps.google.dk/?q=55.9256803,11.6555863

# Torshaven

Afdeling 225

## Velkommen til Torshaven 2-18, 20-28, 1-73, 75-133

Boligerne i Torshaven er en blanding af rækkehuse og etageejendomme (1. sal) og består af i alt 155 boliger fordelt på 146 familieboliger, 6 ungdomsboliger og 3 klubværelser.

Boligerne er opført i flere etaper i henholdsvis 1974, 1977, 1984 og 1988. Torshaven 2-28 (etageejendommene) er opført i beton med en murstensskal udenpå.

Rækkehusene har en lille have til, og etageejendommene har i stueplan en lille terrasse, mens boligerne på 1. sal har en altan.

I ungdomsboligerne hører der ikke have til, men der er en lille terrasse.
Til klubværelserne og ungdomsboligerne er der tilknyttet et fælleskøkken.

## Faciliteter

Husdyr

Ja

Det er tilladt at holde 1 husdyr pr. lejemål. Der må ikke holdes husdyr i ungdomsboligerne eller klubværelserne.

TV og internet

Ja

Lejer skal selv vælge sin TV og internetudbyder og betale direkte til udbyderen.

Varme

Se mere

Fjernvarme

Vaskeri

Ja

Der er fælles vaskeri

Hårde hvidevarer

Ja

Komfur og køleskab i familieboligerne. Der er tilknyttet et fælleskøkken til ungdomsboligerne og værelserne, hvor hver ungdomsbolig/værelse har hver deres køleskab og opbevaringsskab i fælleskøkkenet.

## Boligtyper i afdelingen

Familiebolig

1 værelses

Familiebolig

Ungdomsbolig

1 værelses

Ungdomsbolig

Værelse

1 værelses

Værelse

Familiebolig

2 værelses

Familiebolig

Familiebolig

3 værelses

Familiebolig

##

Angivet husleje er ex. forbrug

Boligtype

Værelser

Størrelse

Husleje

Indskud/dp

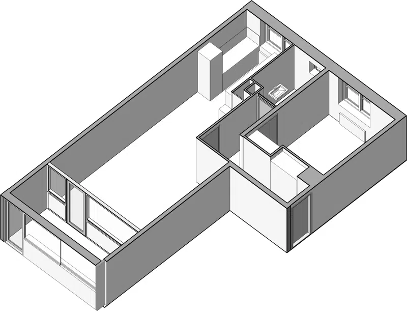
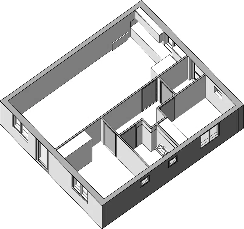
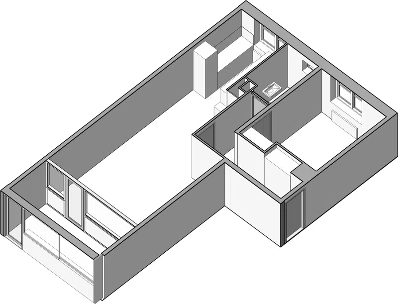
Plantegning

Familiebolig

1

38.97 m²

3080 kr.

6100 kr.

![](https://vab.dk/i/MOLIRIMEDIA/0feab5a2-ab74-4ee4-cec2-08dd476e8eef?width=800)






![](https://vab.dk/i/MOLIRIMEDIA/0feab5a2-ab74-4ee4-cec2-08dd476e8eef?width=800)

![](https://vab.dk/i/MOLIRIMEDIA/dffb930c-3673-4350-cf88-08dd476e8eef?width=800)

![](https://vab.dk/i/MOLIRIMEDIA/0feab5a2-ab74-4ee4-cec2-08dd476e8eef?width=800)

![](https://vab.dk/i/MOLIRIMEDIA/dffb930c-3673-4350-cf88-08dd476e8eef?width=800)

Familiebolig

1

31.54 m²

2543 kr.

5450 kr.

![](https://vab.dk/i/MOLIRIMEDIA/db4a0fc0-6876-44f0-cb32-08dd476e8eef?width=800)






![](https://vab.dk/i/MOLIRIMEDIA/db4a0fc0-6876-44f0-cb32-08dd476e8eef?width=800)

![](https://vab.dk/i/MOLIRIMEDIA/2338f3c0-df89-417c-cfc3-08dd476e8eef?width=800)

![](https://vab.dk/i/MOLIRIMEDIA/db4a0fc0-6876-44f0-cb32-08dd476e8eef?width=800)

![](https://vab.dk/i/MOLIRIMEDIA/2338f3c0-df89-417c-cfc3-08dd476e8eef?width=800)

Familiebolig

1

41 m²

2682 kr.

6640 kr.

![](https://vab.dk/i/MOLIRIMEDIA/376e3eeb-3fa9-4471-c82a-08dd476e8eef?width=800)






![](https://vab.dk/i/MOLIRIMEDIA/376e3eeb-3fa9-4471-c82a-08dd476e8eef?width=800)

![](https://vab.dk/i/MOLIRIMEDIA/75bebbcd-f4c8-4db9-d25c-08dd476e8eef?width=800)

![](https://vab.dk/i/MOLIRIMEDIA/67d3a8a2-b489-4257-d0ad-08dd476e8eef?width=800)

![](https://vab.dk/i/MOLIRIMEDIA/376e3eeb-3fa9-4471-c82a-08dd476e8eef?width=800)

![](https://vab.dk/i/MOLIRIMEDIA/75bebbcd-f4c8-4db9-d25c-08dd476e8eef?width=800)

![](https://vab.dk/i/MOLIRIMEDIA/67d3a8a2-b489-4257-d0ad-08dd476e8eef?width=800)

Familiebolig

2

56 m²

3814 kr.

9540 kr.

![](https://vab.dk/i/MOLIRIMEDIA/fcece753-2136-4db6-cf79-08dd476e8eef?width=800)






![](https://vab.dk/i/MOLIRIMEDIA/fcece753-2136-4db6-cf79-08dd476e8eef?width=800)

![](https://vab.dk/i/MOLIRIMEDIA/5c83bbd0-7acd-41bd-d1f0-08dd476e8eef?width=800)

![](https://vab.dk/i/MOLIRIMEDIA/fcece753-2136-4db6-cf79-08dd476e8eef?width=800)

![](https://vab.dk/i/MOLIRIMEDIA/5c83bbd0-7acd-41bd-d1f0-08dd476e8eef?width=800)

Familiebolig

2

64 m²

4282 kr.

10970 kr.

![](https://vab.dk/i/MOLIRIMEDIA/3287a975-0c16-4a2f-c9ec-08dd476e8eef?width=800)






![](https://vab.dk/i/MOLIRIMEDIA/3287a975-0c16-4a2f-c9ec-08dd476e8eef?width=800)

![](https://vab.dk/i/MOLIRIMEDIA/072854ed-f09f-4c00-d2a8-08dd476e8eef?width=800)

![](https://vab.dk/i/MOLIRIMEDIA/3287a975-0c16-4a2f-c9ec-08dd476e8eef?width=800)

![](https://vab.dk/i/MOLIRIMEDIA/072854ed-f09f-4c00-d2a8-08dd476e8eef?width=800)

Familiebolig

2

65.5 m²

4377 kr.

10890 kr.

![](https://vab.dk/i/MOLIRIMEDIA/f42645eb-12f7-4866-d15c-08dd476e8eef?width=800)






![](https://vab.dk/i/MOLIRIMEDIA/f42645eb-12f7-4866-d15c-08dd476e8eef?width=800)

![](https://vab.dk/i/MOLIRIMEDIA/19518887-351e-44c3-ce7f-08dd476e8eef?width=800)

![](https://vab.dk/i/MOLIRIMEDIA/0f42f37b-5fc9-4c8e-cdf4-08dd476e8eef?width=800)

![](https://vab.dk/i/MOLIRIMEDIA/f42645eb-12f7-4866-d15c-08dd476e8eef?width=800)

![](https://vab.dk/i/MOLIRIMEDIA/19518887-351e-44c3-ce7f-08dd476e8eef?width=800)

![](https://vab.dk/i/MOLIRIMEDIA/0f42f37b-5fc9-4c8e-cdf4-08dd476e8eef?width=800)

Familiebolig

2

65.08 m²

5322 kr.

11200 kr.

![](https://vab.dk/i/MOLIRIMEDIA/8a0b4b28-bae8-4580-cf82-08dd476e8eef?width=800)






![](https://vab.dk/i/MOLIRIMEDIA/8a0b4b28-bae8-4580-cf82-08dd476e8eef?width=800)

![](https://vab.dk/i/MOLIRIMEDIA/ddaa3a2f-7834-4821-cbe7-08dd476e8eef?width=800)

![](https://vab.dk/i/MOLIRIMEDIA/8a0b4b28-bae8-4580-cf82-08dd476e8eef?width=800)

![](https://vab.dk/i/MOLIRIMEDIA/ddaa3a2f-7834-4821-cbe7-08dd476e8eef?width=800)

Familiebolig

2

56.4 m²

4456 kr.

8800 kr.

![](https://vab.dk/i/MOLIRIMEDIA/c4168307-7869-41f7-cf04-08dd476e8eef?width=800)






![](https://vab.dk/i/MOLIRIMEDIA/c4168307-7869-41f7-cf04-08dd476e8eef?width=800)

![](https://vab.dk/i/MOLIRIMEDIA/2627f10a-c66b-4c69-ca96-08dd476e8eef?width=800)

![](https://vab.dk/i/MOLIRIMEDIA/c4168307-7869-41f7-cf04-08dd476e8eef?width=800)

![](https://vab.dk/i/MOLIRIMEDIA/2627f10a-c66b-4c69-ca96-08dd476e8eef?width=800)

Familiebolig

3

68.9 m²

5438 kr.

10700 kr.

![](https://vab.dk/i/MOLIRIMEDIA/c19e65af-6dcd-47b0-d083-08dd476e8eef?width=800)






![](https://vab.dk/i/MOLIRIMEDIA/c19e65af-6dcd-47b0-d083-08dd476e8eef?width=800)

![](https://vab.dk/i/MOLIRIMEDIA/7bb3d3f7-1fe3-4451-c8c2-08dd476e8eef?width=800)

![](https://vab.dk/i/MOLIRIMEDIA/c19e65af-6dcd-47b0-d083-08dd476e8eef?width=800)

![](https://vab.dk/i/MOLIRIMEDIA/7bb3d3f7-1fe3-4451-c8c2-08dd476e8eef?width=800)

Familiebolig

3

80.5 m²

5411 kr.

13475 kr.

![](https://vab.dk/i/MOLIRIMEDIA/29dfa4b3-1252-448a-d078-08dd476e8eef?width=800)






![](https://vab.dk/i/MOLIRIMEDIA/29dfa4b3-1252-448a-d078-08dd476e8eef?width=800)

![](https://vab.dk/i/MOLIRIMEDIA/45c5172b-6f28-48aa-cada-08dd476e8eef?width=800)

![](https://vab.dk/i/MOLIRIMEDIA/51cf0590-da63-4d46-c9ce-08dd476e8eef?width=800)

![](https://vab.dk/i/MOLIRIMEDIA/29dfa4b3-1252-448a-d078-08dd476e8eef?width=800)

![](https://vab.dk/i/MOLIRIMEDIA/45c5172b-6f28-48aa-cada-08dd476e8eef?width=800)

![](https://vab.dk/i/MOLIRIMEDIA/51cf0590-da63-4d46-c9ce-08dd476e8eef?width=800)

Familiebolig

3

78.68 m²

6435 kr.

13500 kr.

![](https://vab.dk/i/MOLIRIMEDIA/cc4114ee-8453-4d67-c9d5-08dd476e8eef?width=800)






![](https://vab.dk/i/MOLIRIMEDIA/cc4114ee-8453-4d67-c9d5-08dd476e8eef?width=800)

![](https://vab.dk/i/MOLIRIMEDIA/a1d2346b-9432-45f1-cb1a-08dd476e8eef?width=800)

![](https://vab.dk/i/MOLIRIMEDIA/cc4114ee-8453-4d67-c9d5-08dd476e8eef?width=800)

![](https://vab.dk/i/MOLIRIMEDIA/a1d2346b-9432-45f1-cb1a-08dd476e8eef?width=800)

Værelse

1

35.61 m²

2819 kr.

5600 kr.

![](https://vab.dk/i/MOLIRIMEDIA/458816e5-7ede-4b74-cb12-08dd476e8eef?width=800)






![](https://vab.dk/i/MOLIRIMEDIA/458816e5-7ede-4b74-cb12-08dd476e8eef?width=800)

![](https://vab.dk/i/MOLIRIMEDIA/e467e7a3-3803-4843-cd5a-08dd476e8eef?width=800)

![](https://vab.dk/i/MOLIRIMEDIA/458816e5-7ede-4b74-cb12-08dd476e8eef?width=800)

![](https://vab.dk/i/MOLIRIMEDIA/e467e7a3-3803-4843-cd5a-08dd476e8eef?width=800)

## Afdelingens afstande til

Indkøbsmuligheder

meter

Park & natur

meter

Træning

meter

Bus

meter

Skole/uddanelse

meter

Institution

meter

## Afdelingsdokumenter

Her finder du nyttig information om din afdeling, såsom husorden, vedligeholdelse af dit lejemål m.m.

###

                                                Budget

[afd. 225 - 2022.pdf](https://vab.dk/p/Files/boligdata/BeboerMapper/225/Budget/afd.-225---2022.pdf)
                                            [afd. 225 - 2023.pdf](https://vab.dk/p/Files/boligdata/BeboerMapper/225/Budget/afd.-225---2023.pdf)
                                            [afd. 225 - 2024.pdf](https://vab.dk/p/Files/boligdata/BeboerMapper/225/Budget/afd.-225---2024.pdf)
                                            [afd. 225 - 2025.pdf](https://vab.dk/p/Files/boligdata/BeboerMapper/225/Budget/afd.-225---2025.pdf)
                                            [afd. 225 - 2026.pdf](https://vab.dk/p/Files/boligdata/BeboerMapper/225/Budget/afd.-225---2026.pdf)

###

                                                Husorden

[Afd. 225 - Husorden - klubværelser.pdf](https://vab.dk/p/Files/boligdata/BeboerMapper/225/Husorden/Afd.-225---Husorden---klubv&#xE6;relser.pdf)
                                            [Afd. 225 - Husreglement - ungdomsboliger.pdf](https://vab.dk/p/Files/boligdata/BeboerMapper/225/Husorden/Afd.-225---Husreglement---ungdomsboliger.pdf)
                                            [Afd. 225 - Tillæg til husorden.pdf](https://vab.dk/p/Files/boligdata/BeboerMapper/225/Husorden/Afd.-225---Till&#xE6;g-til-husorden.pdf)

###

                                                Råderet

[Afd. 225 Torshaven 1-73 Råderetskatalog.pdf](https://vab.dk/p/Files/boligdata/BeboerMapper/225/R&#xE5;deret/Afd.-225-Torshaven-1-73-R&#xE5;deretskatalog.pdf)
                                            [Afd. 225 Torshaven 2-28 Råderetskatalog.pdf](https://vab.dk/p/Files/boligdata/BeboerMapper/225/R&#xE5;deret/Afd.-225-Torshaven-2-28-R&#xE5;deretskatalog.pdf)
                                            [Afd. 225 Torshaven 75-133 Råderetskatalog.pdf](https://vab.dk/p/Files/boligdata/BeboerMapper/225/R&#xE5;deret/Afd.-225-Torshaven-75-133-R&#xE5;deretskatalog.pdf)

###

                                                Drift- og vedligeholdelsesplaner

[afd. 225 - 2025.pdf](https://vab.dk/p/Files/boligdata/BeboerMapper/225/Drift-%20og%20vedligeholdelsesplaner/afd.-225---2025.pdf)
                                            [Afd. 225 - 2026.pdf](https://vab.dk/p/Files/boligdata/BeboerMapper/225/Drift-%20og%20vedligeholdelsesplaner/Afd.-225---2026.pdf)

###

                                                Diverse

[afd. 225 - Afdelingsbestyrelsens velkomstfolder.pdf](https://vab.dk/p/Files/boligdata/BeboerMapper/225/Diverse/afd.-225---Afdelingsbestyrelsens-velkomstfolder.pdf)

###

                                                Vejledning til budget og regnskab

[Folder Læs og forstå budget og regnskab.pdf](https://vab.dk/p/Files/boligdata/BeboerMapper/F&#xE6;lles/Vejledning%20til%20budget%20og%20regnskab/Folder-L&#xE6;s-og-forst&#xE5;-budget-og-regnskab.pdf)

###

                                                Behandling og Vedligeholdelse (Fælles)

[Behandling og vedligeholdelsesvejledning.pdf](https://vab.dk/p/Files/boligdata/BeboerMapper/F&#xE6;lles/Behandling_Vedligeholdelse/Behandling-og-vedligeholdelsesvejledning.pdf)
                                            [Det kan betale sig at spare på ressourcerne.pdf](https://vab.dk/p/Files/boligdata/BeboerMapper/F&#xE6;lles/Behandling_Vedligeholdelse/Det-kan-betale-sig-at-spare-p&#xE5;-ressourcerne.pdf)
                                            [Luft ud.pdf](https://vab.dk/p/Files/boligdata/BeboerMapper/F&#xE6;lles/Behandling_Vedligeholdelse/Luft-ud.pdf)
                                            [Standardvedligeholdelsesreglement.pdf](https://vab.dk/p/Files/boligdata/BeboerMapper/F&#xE6;lles/Behandling_Vedligeholdelse/Standardvedligeholdelsesreglement.pdf)
                                            [Termostatventiler.pdf](https://vab.dk/p/Files/boligdata/BeboerMapper/F&#xE6;lles/Behandling_Vedligeholdelse/Termostatventiler.pdf)
                                            [Vandmåler.pdf](https://vab.dk/p/Files/boligdata/BeboerMapper/F&#xE6;lles/Behandling_Vedligeholdelse/Vandm&#xE5;ler.pdf)
                                            [Vedligeholdelse af sanitet.pdf](https://vab.dk/p/Files/boligdata/BeboerMapper/F&#xE6;lles/Behandling_Vedligeholdelse/Vedligeholdelse-af-sanitet.pdf)
                                            [Vedligeholdelse flyttekøkkener.pdf](https://vab.dk/p/Files/boligdata/BeboerMapper/F&#xE6;lles/Behandling_Vedligeholdelse/Vedligeholdelse-flyttek&#xF8;kkener.pdf)
                                            [Vedligeholdelse laminatbordplader.pdf](https://vab.dk/p/Files/boligdata/BeboerMapper/F&#xE6;lles/Behandling_Vedligeholdelse/Vedligeholdelse-laminatbordplader.pdf)

###

                                                Husorden (Fælles)

[Liste over forbudte hunderacer.pdf](https://vab.dk/p/Files/boligdata/BeboerMapper/F&#xE6;lles/Husorden/Liste-over-forbudte-hunderacer.pdf)
                                            [Standard husorden - Arabisk.pdf](https://vab.dk/p/Files/boligdata/BeboerMapper/F&#xE6;lles/Husorden/Standard-husorden---Arabisk.pdf)
                                            [Standard husorden.pdf](https://vab.dk/p/Files/boligdata/BeboerMapper/F&#xE6;lles/Husorden/Standard-husorden.pdf)

###

                                                Råderet (Fælles)

[Råderetsreglerne.pdf](https://vab.dk/p/Files/boligdata/BeboerMapper/F&#xE6;lles/R&#xE5;deret/R&#xE5;deretsreglerne.pdf)

## Afdelingsbestyrelsesmedlemmer

Navn

Titel

Email

Telefon

Søren Olsen

Formand

Leif Rahbek

Medlem

Bert Heisel

Medlem

Lillian Ruth Larsen

Medlem

Hanne Bak

Medlem

Vagn Kristensen

Suppleant

Stine Høier

Suppleant

## Kontaktpersoner i afdelingen

### Dan Brøndlund Hansen

Vicevært

92999434

dbh@vab.dk

### Dorthe Kildegaard Goldbæk

Teknisk sagsbehandler

nord@vab.dk

### Erik Jespersen

Inspektør

nord@vab.dk

### Jørgen Rud

Inspektør

nord@vab.dk

### Lene Christensen

Udlejningssagsbehandler

udlejning@vab.dk

### Maria Isabel Gyrmov

Økonomisk sagsbehandler

okonomi@vab.dk

### Stephan Madsen Mortensen

Driftschef

nord@vab.dk

### Tina Dyreholt

Teknisk Sagsbehandler

nord@vab.dk

### Torben Nielsen

Vicevært

20401207

tni@vab.dk
