---
title: "Afdeling 34 - Solholmsvej"
description: "Afdeling 34 - Solholmsvej"
date: "2026-05-15"
created: "2025-02-10"
---

-
-
-
-
-

https://maps.google.dk/?q=55.723904,11.4591908

# Solholmsvej

Afdeling 34

## Velkommen til Solholmsvej 2-14 (lige nr.) og 16A

Dobbelthuse opført i røde sten med tegltage og kælder i 1½ plan, 8 boliger - 4 rums. Byggeår 1948.

## Faciliteter

Husdyr

Ja

Tilladt at holde 1 husdyr pr. lejemål.

TV og internet

Ja

Lejer skal selv vælge sin TV og internetudbyder og betale direkte til udbyderen. Der er fibernet.

Varme

Se mere

Der er eget gasfyr i lejemålet. Lejer tilmelder sig selv og afregner direkte til forsyningsselskabet.

Vaskeri

Nej

Der findes ikke vaskeri i afdelingen

Hårde hvidevarer

Ja

Komfur, emhætte og køl/frys.

## Boligtyper i afdelingen

Familiebolig

4 værelses

Familiebolig

##

Angivet husleje er ex. forbrug

Boligtype

Værelser

Størrelse

Husleje

Indskud/dp

Plantegning

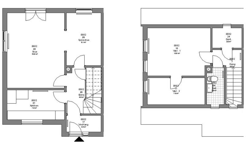
Familiebolig

4

92 m²

6336 kr.

15300 kr.

![](https://vab.dk/i/MOLIRIMEDIA/c08bc314-3d50-4242-b7dd-08dd476e8eef?width=800)






![](https://vab.dk/i/MOLIRIMEDIA/c08bc314-3d50-4242-b7dd-08dd476e8eef?width=800)

![](https://vab.dk/i/MOLIRIMEDIA/98b5e235-edcb-4571-c17e-08dd476e8eef?width=800)

![](https://vab.dk/i/MOLIRIMEDIA/c08bc314-3d50-4242-b7dd-08dd476e8eef?width=800)

![](https://vab.dk/i/MOLIRIMEDIA/98b5e235-edcb-4571-c17e-08dd476e8eef?width=800)

## Afdelingens afstande til

Indkøbsmuligheder

meter

Park & natur

meter

Træning

meter

Bus

meter

Skole/uddanelse

meter

Institution

meter

## Afdelingsdokumenter

Her finder du nyttig information om din afdeling, såsom husorden, vedligeholdelse af dit lejemål m.m.

###

                                                Behandling og Vedligeholdelse

[afd. 34 - brugervejledning til ventilationsanlæg.pdf](https://vab.dk/p/Files/boligdata/BeboerMapper/34/Behandling_Vedligeholdelse/afd.-34---brugervejledning-til-ventilationsanl&#xE6;g.pdf)

###

                                                Budget

[afd. 34 - 2015.pdf](https://vab.dk/p/Files/boligdata/BeboerMapper/34/Budget/afd.-34---2015.pdf)
                                            [Afd. 34 - 2016.pdf](https://vab.dk/p/Files/boligdata/BeboerMapper/34/Budget/Afd.-34---2016.pdf)
                                            [afd. 34 - 2017.pdf](https://vab.dk/p/Files/boligdata/BeboerMapper/34/Budget/afd.-34---2017.pdf)
                                            [afd. 34 - 2018.pdf](https://vab.dk/p/Files/boligdata/BeboerMapper/34/Budget/afd.-34---2018.pdf)
                                            [afd. 34 - 2019.pdf](https://vab.dk/p/Files/boligdata/BeboerMapper/34/Budget/afd.-34---2019.pdf)
                                            [Afd. 34 - 2020.pdf](https://vab.dk/p/Files/boligdata/BeboerMapper/34/Budget/Afd.-34---2020.pdf)
                                            [afd. 34 - 2022.pdf](https://vab.dk/p/Files/boligdata/BeboerMapper/34/Budget/afd.-34---2022.pdf)
                                            [afd. 34 - 2023.pdf](https://vab.dk/p/Files/boligdata/BeboerMapper/34/Budget/afd.-34---2023.pdf)
                                            [afd. 34 - 2024.pdf](https://vab.dk/p/Files/boligdata/BeboerMapper/34/Budget/afd.-34---2024.pdf)
                                            [afd. 34 - 2025.pdf](https://vab.dk/p/Files/boligdata/BeboerMapper/34/Budget/afd.-34---2025.pdf)
                                            [afd. 34 - 2026.pdf](https://vab.dk/p/Files/boligdata/BeboerMapper/34/Budget/afd.-34---2026.pdf)

###

                                                Husorden

[Afd. 34 - Tillæg til husorden.pdf](https://vab.dk/p/Files/boligdata/BeboerMapper/34/Husorden/Afd.-34---Till&#xE6;g-til-husorden.pdf)
                                            [Afd. 34.pdf](https://vab.dk/p/Files/boligdata/BeboerMapper/34/Husorden/Afd.-34.pdf)

###

                                                Råderet

[Afd. 34 Råderetskatalog.pdf](https://vab.dk/p/Files/boligdata/BeboerMapper/34/R&#xE5;deret/Afd.-34-R&#xE5;deretskatalog.pdf)

###

                                                Drift- og vedligeholdelsesplaner

[afd. 34 - 2022.pdf](https://vab.dk/p/Files/boligdata/BeboerMapper/34/Drift-%20og%20vedligeholdelsesplaner/afd.-34---2022.pdf)
                                            [afd. 34 - 2023.pdf](https://vab.dk/p/Files/boligdata/BeboerMapper/34/Drift-%20og%20vedligeholdelsesplaner/afd.-34---2023.pdf)
                                            [afd. 34 - 2025.pdf](https://vab.dk/p/Files/boligdata/BeboerMapper/34/Drift-%20og%20vedligeholdelsesplaner/afd.-34---2025.pdf)
                                            [afd. 34 - 2026.pdf](https://vab.dk/p/Files/boligdata/BeboerMapper/34/Drift-%20og%20vedligeholdelsesplaner/afd.-34---2026.pdf)

###

                                                Vejledning til budget og regnskab

[Folder Læs og forstå budget og regnskab.pdf](https://vab.dk/p/Files/boligdata/BeboerMapper/F&#xE6;lles/Vejledning%20til%20budget%20og%20regnskab/Folder-L&#xE6;s-og-forst&#xE5;-budget-og-regnskab.pdf)

###

                                                Behandling og Vedligeholdelse (Fælles)

[Behandling og vedligeholdelsesvejledning.pdf](https://vab.dk/p/Files/boligdata/BeboerMapper/F&#xE6;lles/Behandling_Vedligeholdelse/Behandling-og-vedligeholdelsesvejledning.pdf)
                                            [Det kan betale sig at spare på ressourcerne.pdf](https://vab.dk/p/Files/boligdata/BeboerMapper/F&#xE6;lles/Behandling_Vedligeholdelse/Det-kan-betale-sig-at-spare-p&#xE5;-ressourcerne.pdf)
                                            [Luft ud.pdf](https://vab.dk/p/Files/boligdata/BeboerMapper/F&#xE6;lles/Behandling_Vedligeholdelse/Luft-ud.pdf)
                                            [Standardvedligeholdelsesreglement.pdf](https://vab.dk/p/Files/boligdata/BeboerMapper/F&#xE6;lles/Behandling_Vedligeholdelse/Standardvedligeholdelsesreglement.pdf)
                                            [Termostatventiler.pdf](https://vab.dk/p/Files/boligdata/BeboerMapper/F&#xE6;lles/Behandling_Vedligeholdelse/Termostatventiler.pdf)
                                            [Vandmåler.pdf](https://vab.dk/p/Files/boligdata/BeboerMapper/F&#xE6;lles/Behandling_Vedligeholdelse/Vandm&#xE5;ler.pdf)
                                            [Vedligeholdelse af sanitet.pdf](https://vab.dk/p/Files/boligdata/BeboerMapper/F&#xE6;lles/Behandling_Vedligeholdelse/Vedligeholdelse-af-sanitet.pdf)
                                            [Vedligeholdelse flyttekøkkener.pdf](https://vab.dk/p/Files/boligdata/BeboerMapper/F&#xE6;lles/Behandling_Vedligeholdelse/Vedligeholdelse-flyttek&#xF8;kkener.pdf)
                                            [Vedligeholdelse laminatbordplader.pdf](https://vab.dk/p/Files/boligdata/BeboerMapper/F&#xE6;lles/Behandling_Vedligeholdelse/Vedligeholdelse-laminatbordplader.pdf)

###

                                                Husorden (Fælles)

[Liste over forbudte hunderacer.pdf](https://vab.dk/p/Files/boligdata/BeboerMapper/F&#xE6;lles/Husorden/Liste-over-forbudte-hunderacer.pdf)
                                            [Standard husorden - Arabisk.pdf](https://vab.dk/p/Files/boligdata/BeboerMapper/F&#xE6;lles/Husorden/Standard-husorden---Arabisk.pdf)
                                            [Standard husorden.pdf](https://vab.dk/p/Files/boligdata/BeboerMapper/F&#xE6;lles/Husorden/Standard-husorden.pdf)

###

                                                Råderet (Fælles)

[Råderetsreglerne.pdf](https://vab.dk/p/Files/boligdata/BeboerMapper/F&#xE6;lles/R&#xE5;deret/R&#xE5;deretsreglerne.pdf)

## Afdelingsbestyrelsesmedlemmer

Navn

Titel

Email

Telefon

Anja Andersen

Formand

anjaampa@yahoo.dk

Jesper Andersen

Medlem

Jørgen Clausen

Medlem

Carina Jensen

Suppleant

## Kontaktpersoner i afdelingen

### Anne Suhr

Udlejningssagsbehandler

udlejning@vab.dk

### Channie Schleicher

Teknisk sagsbehandler

midt@vab.dk

### Christina Lebech Løve

Økonomisk sagsbehandler

okonomi@vab.dk

### Evy Marie Nielsen

Driftschef

midt@vab.dk

### Maria Nørregaard Nielsen

Inspektør

midt@vab.dk

### Vinni Barsøe

Teknisk sagsbehandler

midt@vab.dk
