---
title: "Afdeling 4 - Aldersrovej"
description: "Afdeling 4 - Aldersrovej"
date: "2026-05-15"
created: "2025-02-10"
---

-
-
-
-
-
-
-

https://maps.google.dk/?q=55.6661447,11.4121878

# Aldersrovej

Afdeling 4

## Velkommen til Aldersrovej 2A-6C

Etageejendom opført i røde sten i 2 plan. Rækkehus i 1 plan opført i røde sten. Byggeår 1949 og 1989.
44 boliger incl. 11 ældreboliger og 12 ungdomsboliger.

## Faciliteter

Husdyr

Ja

Det er tilladt at holde et husdyr pr. lejemål, dog ikke i ungdomsboliger.

TV og internet

Ja

Lejer skal selv vælge sin TV og internetudbyder og betale direkte til udbyderen.

Varme

Se mere

Afdelingen er tilsluttet Jyderup Fjernvarmeværk. Lejer tilmelder sig selv og afregner direkte til forsyningsselskabet.

Vaskeri

Ja

Fællesvaskeri i nr. 2B og 6C: Vaskemaskine med kortautomat. I nr. 2B forefindes også tørretumbler samt strygerulle.

Hårde hvidevarer

Ja

Komfur og køleskab. I ungdomsboligerne er der kun trinette.

## Boligtyper i afdelingen

Ungdomsbolig

1 værelses

Ungdomsbolig

Familiebolig

2 værelses

Familiebolig

Ungdomsbolig

2 værelses

Ungdomsbolig

Ældrebolig

2 værelses

Ældrebolig

Familiebolig

3 værelses

Familiebolig

##

Angivet husleje er ex. forbrug

Boligtype

Værelser

Størrelse

Husleje

Indskud/dp

Plantegning

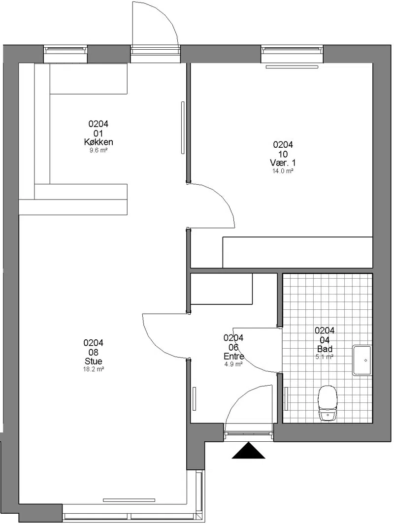
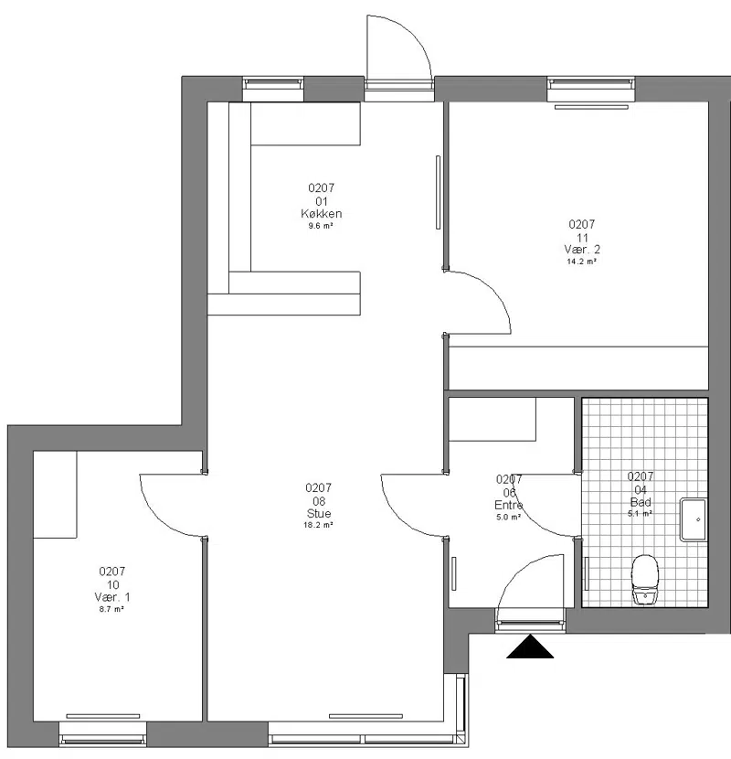
Familiebolig

2

69 m²

3494 kr.

10350 kr.

![](https://vab.dk/i/MOLIRIMEDIA/7ccd9765-bfbc-48d1-be0b-08dd476e8eef?width=800)






![](https://vab.dk/i/MOLIRIMEDIA/7ccd9765-bfbc-48d1-be0b-08dd476e8eef?width=800)

![](https://vab.dk/i/MOLIRIMEDIA/eb9aa505-c970-4530-c646-08dd476e8eef?width=800)

![](https://vab.dk/i/MOLIRIMEDIA/c01d61f8-555f-448a-cb1f-08dd476e8eef?width=800)

![](https://vab.dk/i/MOLIRIMEDIA/7ccd9765-bfbc-48d1-be0b-08dd476e8eef?width=800)

![](https://vab.dk/i/MOLIRIMEDIA/eb9aa505-c970-4530-c646-08dd476e8eef?width=800)

![](https://vab.dk/i/MOLIRIMEDIA/c01d61f8-555f-448a-cb1f-08dd476e8eef?width=800)

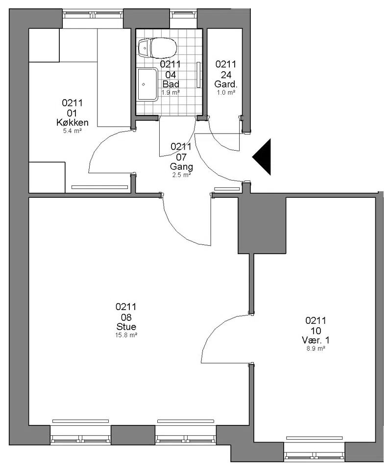
Familiebolig

2

63 m²

5179 kr.

11565 kr.

![](https://vab.dk/i/MOLIRIMEDIA/75b393f4-259d-4f8b-bd80-08dd476e8eef?width=800)






![](https://vab.dk/i/MOLIRIMEDIA/75b393f4-259d-4f8b-bd80-08dd476e8eef?width=800)

![](https://vab.dk/i/MOLIRIMEDIA/7c9bf9e3-43fc-43f9-c440-08dd476e8eef?width=800)

![](https://vab.dk/i/MOLIRIMEDIA/cd9dbee3-80cf-47eb-d0c7-08dd476e8eef?width=800)

![](https://vab.dk/i/MOLIRIMEDIA/75b393f4-259d-4f8b-bd80-08dd476e8eef?width=800)

![](https://vab.dk/i/MOLIRIMEDIA/7c9bf9e3-43fc-43f9-c440-08dd476e8eef?width=800)

![](https://vab.dk/i/MOLIRIMEDIA/cd9dbee3-80cf-47eb-d0c7-08dd476e8eef?width=800)

Familiebolig

2

61 m²

5114 kr.

11375 kr.

![](https://vab.dk/i/MOLIRIMEDIA/7178f185-5d25-4fa0-b92d-08dd476e8eef?width=800)






![](https://vab.dk/i/MOLIRIMEDIA/7178f185-5d25-4fa0-b92d-08dd476e8eef?width=800)

![](https://vab.dk/i/MOLIRIMEDIA/8113425b-4d76-4d17-c258-08dd476e8eef?width=800)

![](https://vab.dk/i/MOLIRIMEDIA/eab214f1-ac31-49d2-d228-08dd476e8eef?width=800)

![](https://vab.dk/i/MOLIRIMEDIA/7178f185-5d25-4fa0-b92d-08dd476e8eef?width=800)

![](https://vab.dk/i/MOLIRIMEDIA/8113425b-4d76-4d17-c258-08dd476e8eef?width=800)

![](https://vab.dk/i/MOLIRIMEDIA/eab214f1-ac31-49d2-d228-08dd476e8eef?width=800)

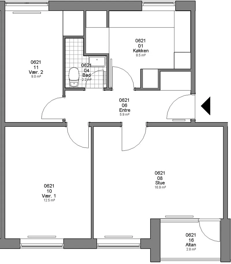
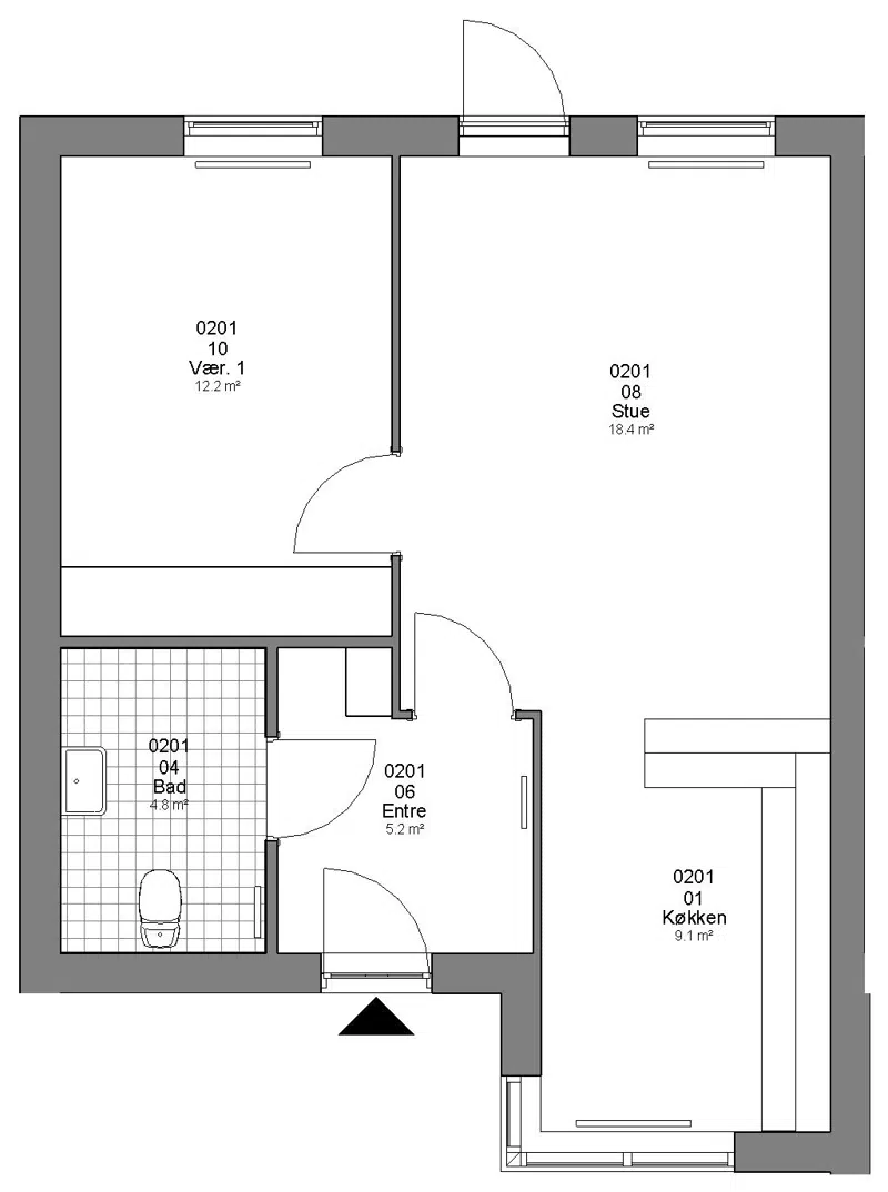
Familiebolig

3

69 m²

3494 kr.

10350 kr.

![](https://vab.dk/i/MOLIRIMEDIA/9c93fe47-881b-4bd3-bf9c-08dd476e8eef?width=800)






![](https://vab.dk/i/MOLIRIMEDIA/9c93fe47-881b-4bd3-bf9c-08dd476e8eef?width=800)

![](https://vab.dk/i/MOLIRIMEDIA/fd21abf3-1045-4d6f-b960-08dd476e8eef?width=800)

![](https://vab.dk/i/MOLIRIMEDIA/9d3d6513-e4ca-451f-c958-08dd476e8eef?width=800)

![](https://vab.dk/i/MOLIRIMEDIA/9c93fe47-881b-4bd3-bf9c-08dd476e8eef?width=800)

![](https://vab.dk/i/MOLIRIMEDIA/fd21abf3-1045-4d6f-b960-08dd476e8eef?width=800)

![](https://vab.dk/i/MOLIRIMEDIA/9d3d6513-e4ca-451f-c958-08dd476e8eef?width=800)

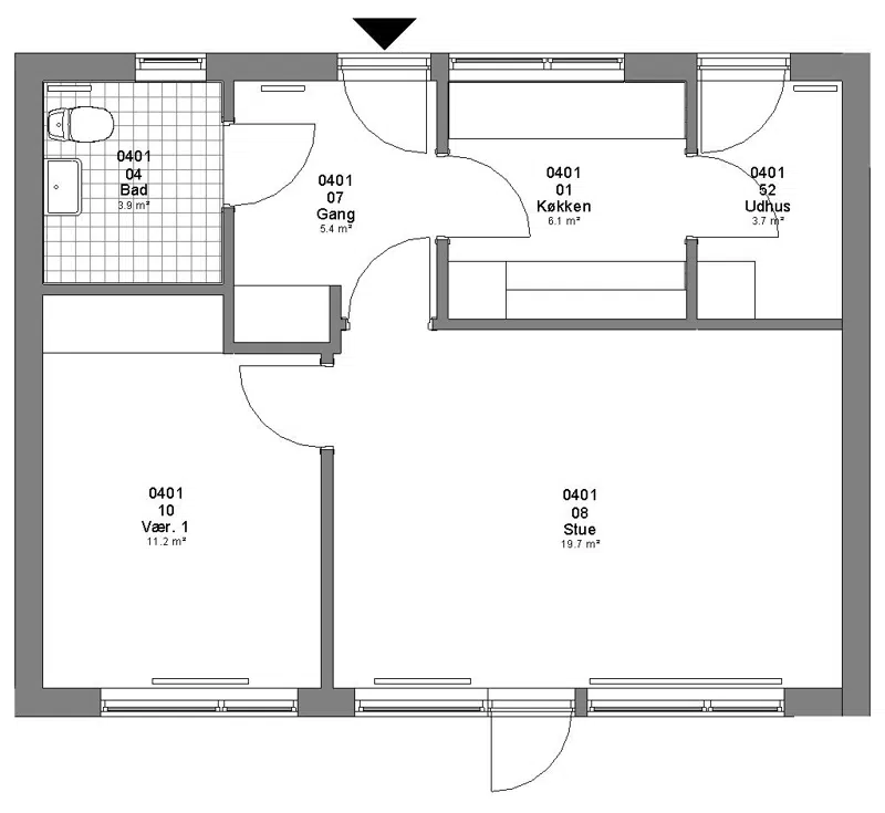
Familiebolig

3

77 m²

3702 kr.

11550 kr.

![](https://vab.dk/i/MOLIRIMEDIA/cde9eb36-3f37-4d98-b737-08dd476e8eef?width=800)






![](https://vab.dk/i/MOLIRIMEDIA/cde9eb36-3f37-4d98-b737-08dd476e8eef?width=800)

![](https://vab.dk/i/MOLIRIMEDIA/ef509768-55ce-4ada-bf8c-08dd476e8eef?width=800)

![](https://vab.dk/i/MOLIRIMEDIA/821ba969-fc7d-47fc-cc26-08dd476e8eef?width=800)

![](https://vab.dk/i/MOLIRIMEDIA/cde9eb36-3f37-4d98-b737-08dd476e8eef?width=800)

![](https://vab.dk/i/MOLIRIMEDIA/ef509768-55ce-4ada-bf8c-08dd476e8eef?width=800)

![](https://vab.dk/i/MOLIRIMEDIA/821ba969-fc7d-47fc-cc26-08dd476e8eef?width=800)

Familiebolig

3

80 m²

3781 kr.

12000 kr.

![](https://vab.dk/i/MOLIRIMEDIA/563a317e-0ec9-41d1-bcf1-08dd476e8eef?width=800)






![](https://vab.dk/i/MOLIRIMEDIA/563a317e-0ec9-41d1-bcf1-08dd476e8eef?width=800)

![](https://vab.dk/i/MOLIRIMEDIA/70a5d511-14ff-4324-b944-08dd476e8eef?width=800)

![](https://vab.dk/i/MOLIRIMEDIA/9201a361-702b-4b53-d08a-08dd476e8eef?width=800)

![](https://vab.dk/i/MOLIRIMEDIA/563a317e-0ec9-41d1-bcf1-08dd476e8eef?width=800)

![](https://vab.dk/i/MOLIRIMEDIA/70a5d511-14ff-4324-b944-08dd476e8eef?width=800)

![](https://vab.dk/i/MOLIRIMEDIA/9201a361-702b-4b53-d08a-08dd476e8eef?width=800)

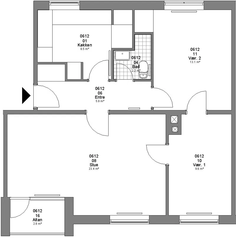
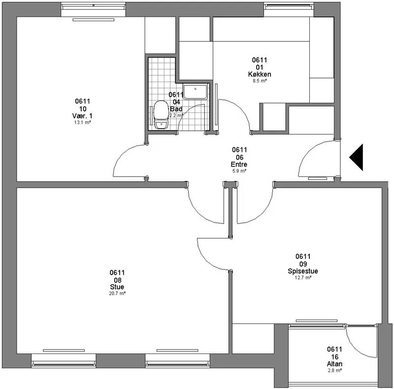
Familiebolig

3

72 m²

5736 kr.

13270 kr.

![](https://vab.dk/i/MOLIRIMEDIA/d914ef1f-e046-42d9-b83a-08dd476e8eef?width=800)






![](https://vab.dk/i/MOLIRIMEDIA/d914ef1f-e046-42d9-b83a-08dd476e8eef?width=800)

![](https://vab.dk/i/MOLIRIMEDIA/1f64b92b-174e-4fdf-b870-08dd476e8eef?width=800)

![](https://vab.dk/i/MOLIRIMEDIA/9d81d8dd-23d4-4ca7-cc57-08dd476e8eef?width=800)

![](https://vab.dk/i/MOLIRIMEDIA/d914ef1f-e046-42d9-b83a-08dd476e8eef?width=800)

![](https://vab.dk/i/MOLIRIMEDIA/1f64b92b-174e-4fdf-b870-08dd476e8eef?width=800)

![](https://vab.dk/i/MOLIRIMEDIA/9d81d8dd-23d4-4ca7-cc57-08dd476e8eef?width=800)

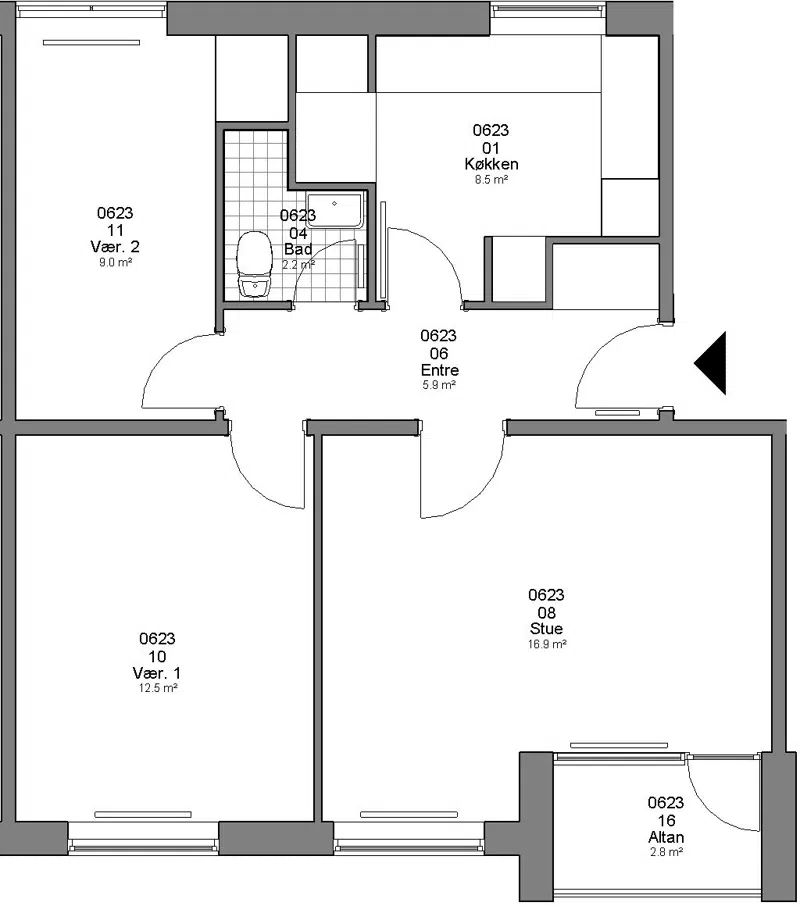
Familiebolig

3

72 m²

5830 kr.

13650 kr.

![](https://vab.dk/i/MOLIRIMEDIA/2675f3af-76fa-4d39-c348-08dd476e8eef?width=800)






![](https://vab.dk/i/MOLIRIMEDIA/2675f3af-76fa-4d39-c348-08dd476e8eef?width=800)

![](https://vab.dk/i/MOLIRIMEDIA/4a3ee405-026c-40af-c688-08dd476e8eef?width=800)

![](https://vab.dk/i/MOLIRIMEDIA/8be9b7bf-a930-472e-d2ad-08dd476e8eef?width=800)

![](https://vab.dk/i/MOLIRIMEDIA/2675f3af-76fa-4d39-c348-08dd476e8eef?width=800)

![](https://vab.dk/i/MOLIRIMEDIA/4a3ee405-026c-40af-c688-08dd476e8eef?width=800)

![](https://vab.dk/i/MOLIRIMEDIA/8be9b7bf-a930-472e-d2ad-08dd476e8eef?width=800)

Ungdomsbolig

1

36 m²

2375 kr.

7125 kr.

![](https://vab.dk/i/MOLIRIMEDIA/6464f857-14ad-4d4c-beee-08dd476e8eef?width=800)






![](https://vab.dk/i/MOLIRIMEDIA/6464f857-14ad-4d4c-beee-08dd476e8eef?width=800)

![](https://vab.dk/i/MOLIRIMEDIA/03af1e2c-5537-45c9-bf0d-08dd476e8eef?width=800)

![](https://vab.dk/i/MOLIRIMEDIA/aa832de6-4b83-4722-cbb0-08dd476e8eef?width=800)

![](https://vab.dk/i/MOLIRIMEDIA/6464f857-14ad-4d4c-beee-08dd476e8eef?width=800)

![](https://vab.dk/i/MOLIRIMEDIA/03af1e2c-5537-45c9-bf0d-08dd476e8eef?width=800)

![](https://vab.dk/i/MOLIRIMEDIA/aa832de6-4b83-4722-cbb0-08dd476e8eef?width=800)

Ungdomsbolig

1

36 m²

2375 kr.

7125 kr.

![](https://vab.dk/i/MOLIRIMEDIA/c524a5ee-882e-44e6-c240-08dd476e8eef?width=800)






![](https://vab.dk/i/MOLIRIMEDIA/c524a5ee-882e-44e6-c240-08dd476e8eef?width=800)

![](https://vab.dk/i/MOLIRIMEDIA/84c86bb2-c6d7-4bda-bd98-08dd476e8eef?width=800)

![](https://vab.dk/i/MOLIRIMEDIA/d373d6d8-4d7f-47e7-ca3a-08dd476e8eef?width=800)

![](https://vab.dk/i/MOLIRIMEDIA/c524a5ee-882e-44e6-c240-08dd476e8eef?width=800)

![](https://vab.dk/i/MOLIRIMEDIA/84c86bb2-c6d7-4bda-bd98-08dd476e8eef?width=800)

![](https://vab.dk/i/MOLIRIMEDIA/d373d6d8-4d7f-47e7-ca3a-08dd476e8eef?width=800)

Ungdomsbolig

2

49 m²

3142 kr.

9426 kr.

![](https://vab.dk/i/MOLIRIMEDIA/cc5c4551-a73a-49c4-bae2-08dd476e8eef?width=800)






![](https://vab.dk/i/MOLIRIMEDIA/cc5c4551-a73a-49c4-bae2-08dd476e8eef?width=800)

![](https://vab.dk/i/MOLIRIMEDIA/e9d26b1b-1000-4946-b8c6-08dd476e8eef?width=800)

![](https://vab.dk/i/MOLIRIMEDIA/ae6d8078-33ee-44a0-c87f-08dd476e8eef?width=800)

![](https://vab.dk/i/MOLIRIMEDIA/cc5c4551-a73a-49c4-bae2-08dd476e8eef?width=800)

![](https://vab.dk/i/MOLIRIMEDIA/e9d26b1b-1000-4946-b8c6-08dd476e8eef?width=800)

![](https://vab.dk/i/MOLIRIMEDIA/ae6d8078-33ee-44a0-c87f-08dd476e8eef?width=800)

Ungdomsbolig

2

49 m²

3142 kr.

9426 kr.

![](https://vab.dk/i/MOLIRIMEDIA/99813c04-bf5b-4c5d-c0cc-08dd476e8eef?width=800)






![](https://vab.dk/i/MOLIRIMEDIA/99813c04-bf5b-4c5d-c0cc-08dd476e8eef?width=800)

![](https://vab.dk/i/MOLIRIMEDIA/e6949ce3-4b19-47ef-c1e5-08dd476e8eef?width=800)

![](https://vab.dk/i/MOLIRIMEDIA/4fc1a781-b644-4ea4-d1e6-08dd476e8eef?width=800)

![](https://vab.dk/i/MOLIRIMEDIA/99813c04-bf5b-4c5d-c0cc-08dd476e8eef?width=800)

![](https://vab.dk/i/MOLIRIMEDIA/e6949ce3-4b19-47ef-c1e5-08dd476e8eef?width=800)

![](https://vab.dk/i/MOLIRIMEDIA/4fc1a781-b644-4ea4-d1e6-08dd476e8eef?width=800)

Ældrebolig

2

60 m²

4562 kr.

17440 kr.

![](https://vab.dk/i/MOLIRIMEDIA/d2e31375-2dd8-448f-c1a7-08dd476e8eef?width=800)






![](https://vab.dk/i/MOLIRIMEDIA/d2e31375-2dd8-448f-c1a7-08dd476e8eef?width=800)

![](https://vab.dk/i/MOLIRIMEDIA/65a146df-4965-4e71-c708-08dd476e8eef?width=800)

![](https://vab.dk/i/MOLIRIMEDIA/1dd419c1-3614-4978-cf97-08dd476e8eef?width=800)

![](https://vab.dk/i/MOLIRIMEDIA/d2e31375-2dd8-448f-c1a7-08dd476e8eef?width=800)

![](https://vab.dk/i/MOLIRIMEDIA/65a146df-4965-4e71-c708-08dd476e8eef?width=800)

![](https://vab.dk/i/MOLIRIMEDIA/1dd419c1-3614-4978-cf97-08dd476e8eef?width=800)

## Afdelingens afstande til

Indkøbsmuligheder

meter

Park & natur

meter

Træning

meter

Bus

meter

Skole/uddanelse

meter

Institution

meter

## Afdelingsdokumenter

Her finder du nyttig information om din afdeling, såsom husorden, vedligeholdelse af dit lejemål m.m.

###

                                                Behandling og Vedligeholdelse

[afd. 4 - Ungdomsboliger (Istandsættelse ved fraflytning).pdf](https://vab.dk/p/Files/boligdata/BeboerMapper/4/Behandling_Vedligeholdelse/afd.-4---Ungdomsboliger--Istands&#xE6;ttelse-ved-fraflytning-.pdf)

###

                                                Budget

[afd. 4 - 2015.pdf](https://vab.dk/p/Files/boligdata/BeboerMapper/4/Budget/afd.-4---2015.pdf)
                                            [Afd. 4 - 2016.pdf](https://vab.dk/p/Files/boligdata/BeboerMapper/4/Budget/Afd.-4---2016.pdf)
                                            [afd. 4 - 2017.pdf](https://vab.dk/p/Files/boligdata/BeboerMapper/4/Budget/afd.-4---2017.pdf)
                                            [afd. 4 - 2018.pdf](https://vab.dk/p/Files/boligdata/BeboerMapper/4/Budget/afd.-4---2018.pdf)
                                            [afd. 4 - 2019.pdf](https://vab.dk/p/Files/boligdata/BeboerMapper/4/Budget/afd.-4---2019.pdf)
                                            [Afd. 4 - 2020.pdf](https://vab.dk/p/Files/boligdata/BeboerMapper/4/Budget/Afd.-4---2020.pdf)
                                            [afd. 4 - 2021.pdf](https://vab.dk/p/Files/boligdata/BeboerMapper/4/Budget/afd.-4---2021.pdf)
                                            [afd. 4 - 2022.pdf](https://vab.dk/p/Files/boligdata/BeboerMapper/4/Budget/afd.-4---2022.pdf)
                                            [afd. 4 - 2023.pdf](https://vab.dk/p/Files/boligdata/BeboerMapper/4/Budget/afd.-4---2023.pdf)
                                            [afd. 4 - 2024.pdf](https://vab.dk/p/Files/boligdata/BeboerMapper/4/Budget/afd.-4---2024.pdf)
                                            [afd. 4 - 2025.pdf](https://vab.dk/p/Files/boligdata/BeboerMapper/4/Budget/afd.-4---2025.pdf)
                                            [afd. 4 - 2026.pdf](https://vab.dk/p/Files/boligdata/BeboerMapper/4/Budget/afd.-4---2026.pdf)

###

                                                Husorden

[Afd. 4 - Tillæg til husorden nr. 2A-C.pdf](https://vab.dk/p/Files/boligdata/BeboerMapper/4/Husorden/Afd.-4---Till&#xE6;g-til-husorden-nr.-2A-C.pdf)
                                            [Afd. 4 - Tillæg til husorden nr. 6A-C.pdf](https://vab.dk/p/Files/boligdata/BeboerMapper/4/Husorden/Afd.-4---Till&#xE6;g-til-husorden-nr.-6A-C.pdf)
                                            [Afd. 4 nr. 6A-C.pdf](https://vab.dk/p/Files/boligdata/BeboerMapper/4/Husorden/Afd.-4-nr.-6A-C.pdf)
                                            [Afd. 4.pdf](https://vab.dk/p/Files/boligdata/BeboerMapper/4/Husorden/Afd.-4.pdf)

###

                                                Markvandringsrapport

[afd. 4 - 2019.pdf](https://vab.dk/p/Files/boligdata/BeboerMapper/4/Markvandringsrapport/afd.-4---2019.pdf)
                                            [afd. 4.pdf](https://vab.dk/p/Files/boligdata/BeboerMapper/4/Markvandringsrapport/afd.-4.pdf)

###

                                                Råderet

[Afd. 4 Råderetskatalog.pdf](https://vab.dk/p/Files/boligdata/BeboerMapper/4/R&#xE5;deret/Afd.-4-R&#xE5;deretskatalog.pdf)

###

                                                Drift- og vedligeholdelsesplaner

[afd. 4 - 2022.pdf](https://vab.dk/p/Files/boligdata/BeboerMapper/4/Drift-%20og%20vedligeholdelsesplaner/afd.-4---2022.pdf)
                                            [afd. 4 - 2025.pdf](https://vab.dk/p/Files/boligdata/BeboerMapper/4/Drift-%20og%20vedligeholdelsesplaner/afd.-4---2025.pdf)
                                            [Afd. 4 - 2026.pdf](https://vab.dk/p/Files/boligdata/BeboerMapper/4/Drift-%20og%20vedligeholdelsesplaner/Afd.-4---2026.pdf)

###

                                                Vejledning til budget og regnskab

[Folder Læs og forstå budget og regnskab.pdf](https://vab.dk/p/Files/boligdata/BeboerMapper/F&#xE6;lles/Vejledning%20til%20budget%20og%20regnskab/Folder-L&#xE6;s-og-forst&#xE5;-budget-og-regnskab.pdf)

###

                                                Behandling og Vedligeholdelse (Fælles)

[Behandling og vedligeholdelsesvejledning.pdf](https://vab.dk/p/Files/boligdata/BeboerMapper/F&#xE6;lles/Behandling_Vedligeholdelse/Behandling-og-vedligeholdelsesvejledning.pdf)
                                            [Det kan betale sig at spare på ressourcerne.pdf](https://vab.dk/p/Files/boligdata/BeboerMapper/F&#xE6;lles/Behandling_Vedligeholdelse/Det-kan-betale-sig-at-spare-p&#xE5;-ressourcerne.pdf)
                                            [Luft ud.pdf](https://vab.dk/p/Files/boligdata/BeboerMapper/F&#xE6;lles/Behandling_Vedligeholdelse/Luft-ud.pdf)
                                            [Standardvedligeholdelsesreglement.pdf](https://vab.dk/p/Files/boligdata/BeboerMapper/F&#xE6;lles/Behandling_Vedligeholdelse/Standardvedligeholdelsesreglement.pdf)
                                            [Termostatventiler.pdf](https://vab.dk/p/Files/boligdata/BeboerMapper/F&#xE6;lles/Behandling_Vedligeholdelse/Termostatventiler.pdf)
                                            [Vandmåler.pdf](https://vab.dk/p/Files/boligdata/BeboerMapper/F&#xE6;lles/Behandling_Vedligeholdelse/Vandm&#xE5;ler.pdf)
                                            [Vedligeholdelse af sanitet.pdf](https://vab.dk/p/Files/boligdata/BeboerMapper/F&#xE6;lles/Behandling_Vedligeholdelse/Vedligeholdelse-af-sanitet.pdf)
                                            [Vedligeholdelse flyttekøkkener.pdf](https://vab.dk/p/Files/boligdata/BeboerMapper/F&#xE6;lles/Behandling_Vedligeholdelse/Vedligeholdelse-flyttek&#xF8;kkener.pdf)
                                            [Vedligeholdelse laminatbordplader.pdf](https://vab.dk/p/Files/boligdata/BeboerMapper/F&#xE6;lles/Behandling_Vedligeholdelse/Vedligeholdelse-laminatbordplader.pdf)

###

                                                Husorden (Fælles)

[Liste over forbudte hunderacer.pdf](https://vab.dk/p/Files/boligdata/BeboerMapper/F&#xE6;lles/Husorden/Liste-over-forbudte-hunderacer.pdf)
                                            [Standard husorden - Arabisk.pdf](https://vab.dk/p/Files/boligdata/BeboerMapper/F&#xE6;lles/Husorden/Standard-husorden---Arabisk.pdf)
                                            [Standard husorden.pdf](https://vab.dk/p/Files/boligdata/BeboerMapper/F&#xE6;lles/Husorden/Standard-husorden.pdf)

###

                                                Råderet (Fælles)

[Råderetsreglerne.pdf](https://vab.dk/p/Files/boligdata/BeboerMapper/F&#xE6;lles/R&#xE5;deret/R&#xE5;deretsreglerne.pdf)

## Afdelingsbestyrelsesmedlemmer

Navn

Titel

Email

Telefon

Ingemerete Andersen

Formand

ingemereteandersen@gmail.com

22 14 91 86

Manny Christensen

Medlem

Karsten Vilhelm Petersen

Medlem

Christian Petersen

Suppleant

## Kontaktpersoner i afdelingen

### Anne Suhr

Udlejningssagsbehandler

udlejning@vab.dk

### Channie Schleicher

Teknisk sagsbehandler

midt@vab.dk

### Evy Marie Nielsen

Driftschef

midt@vab.dk

### Helle Trier Hansen

Økonomisk sagsbehandler

okonomi@vab.dk

### Maria Nørregaard Nielsen

Inspektør

midt@vab.dk

### Vinni Barsøe

Teknisk sagsbehandler

midt@vab.dk
