---
title: "Afdeling 43 - Kæret"
description: "Afdeling 43 - Kæret"
date: "2026-05-15"
created: "2025-02-10"
---

-
-
-
-
-
-

https://maps.google.dk/?q=55.7353148,11.5465959

# Kæret

Afdeling 43

## Velkommen til Kæret 1-12

Afdelingen er opført i 1980 og består af 12 familieboliger. Alle boliger er 2-rums boliger.

Afdelingen råder over et lille grønt område med udsigt over en hyggelig lille sø.

## Faciliteter

Husdyr

Ja

Det er tilladt at holde én hund eller én kat.

TV og internet

Ja

Lejer skal selv vælge sin TV og internetudbyder og betale direkte til udbyderen.

Varme

Se mere

Der er fælles gasfyr med individuel måler. Lejer betaler et a/c-beløb gennem huslejen. Der udarbejdes et varmeregnskab én gang årligt.

Vaskeri

Nej

Der findes ikke vaskeri i afdelingen

Hårde hvidevarer

Ja

Komfur, emhætte og køleskab.

## Boligtyper i afdelingen

Familiebolig

2 værelses

Familiebolig

##

Angivet husleje er ex. forbrug

Boligtype

Værelser

Størrelse

Husleje

Indskud/dp

Plantegning

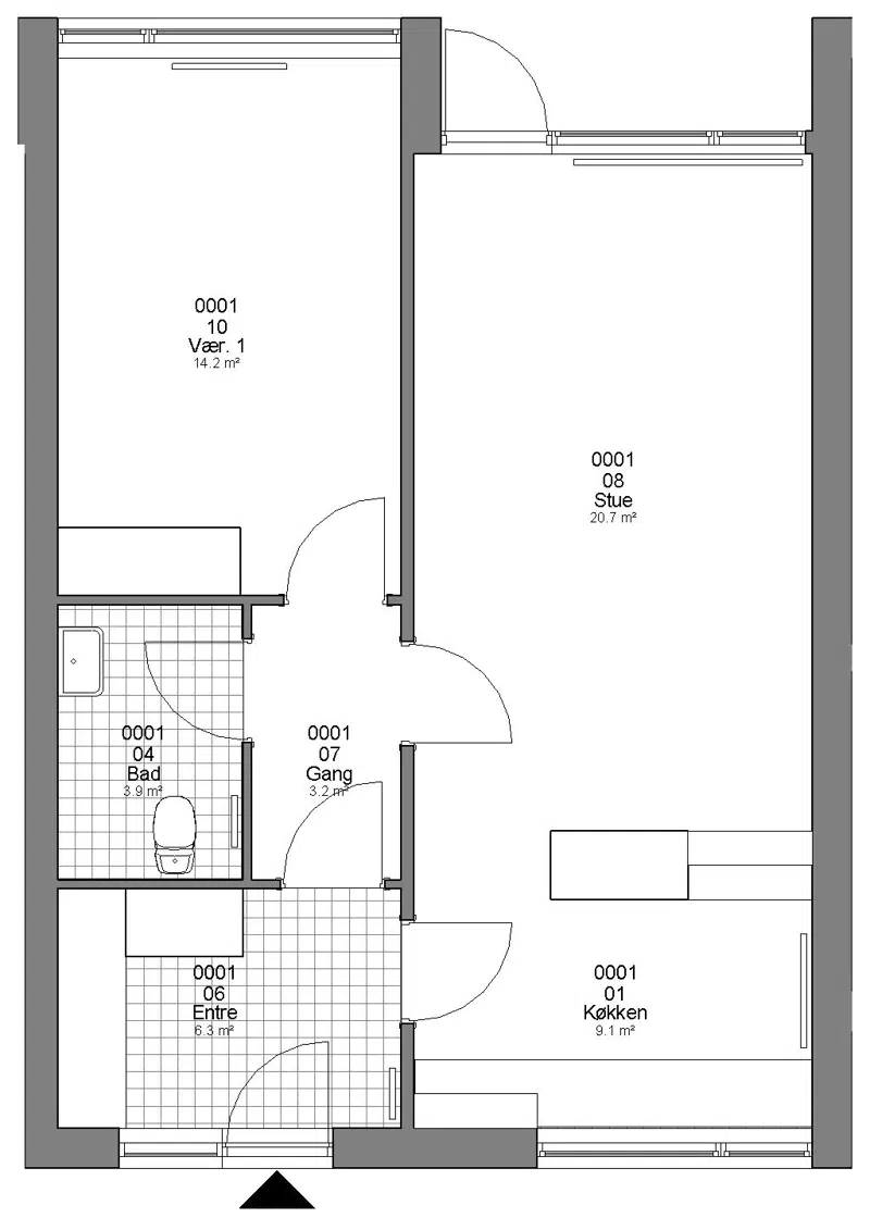
Familiebolig

2

63 m²

5100 kr.

11300 kr.

![](https://vab.dk/i/MOLIRIMEDIA/6d823aff-d999-4164-bb3f-08dd476e8eef?width=800)






![](https://vab.dk/i/MOLIRIMEDIA/6d823aff-d999-4164-bb3f-08dd476e8eef?width=800)

![](https://vab.dk/i/MOLIRIMEDIA/6a6ddd69-9596-4f9c-c27a-08dd476e8eef?width=800)

![](https://vab.dk/i/MOLIRIMEDIA/6d823aff-d999-4164-bb3f-08dd476e8eef?width=800)

![](https://vab.dk/i/MOLIRIMEDIA/6a6ddd69-9596-4f9c-c27a-08dd476e8eef?width=800)

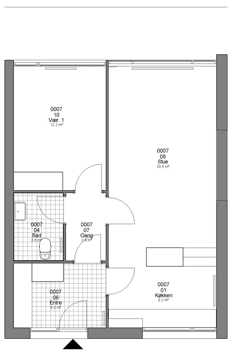
Familiebolig

2

67 m²

5325 kr.

12000 kr.

![](https://vab.dk/i/MOLIRIMEDIA/e82a17d7-be21-4a4c-b662-08dd476e8eef?width=800)






![](https://vab.dk/i/MOLIRIMEDIA/e82a17d7-be21-4a4c-b662-08dd476e8eef?width=800)

![](https://vab.dk/i/MOLIRIMEDIA/3f63936f-9068-4ab5-c6c6-08dd476e8eef?width=800)

![](https://vab.dk/i/MOLIRIMEDIA/e82a17d7-be21-4a4c-b662-08dd476e8eef?width=800)

![](https://vab.dk/i/MOLIRIMEDIA/3f63936f-9068-4ab5-c6c6-08dd476e8eef?width=800)

## Afdelingens afstande til

Indkøbsmuligheder

meter

Park & natur

meter

Træning

meter

Bus

meter

Skole/uddanelse

meter

Institution

meter

## Afdelingsdokumenter

Her finder du nyttig information om din afdeling, såsom husorden, vedligeholdelse af dit lejemål m.m.

###

                                                Budget

[afd. 43 - 2015.pdf](https://vab.dk/p/Files/boligdata/BeboerMapper/43/Budget/afd.-43---2015.pdf)
                                            [Afd. 43 - 2016.pdf](https://vab.dk/p/Files/boligdata/BeboerMapper/43/Budget/Afd.-43---2016.pdf)
                                            [afd. 43 - 2017.pdf](https://vab.dk/p/Files/boligdata/BeboerMapper/43/Budget/afd.-43---2017.pdf)
                                            [afd. 43 - 2018.pdf](https://vab.dk/p/Files/boligdata/BeboerMapper/43/Budget/afd.-43---2018.pdf)
                                            [afd. 43 - 2019.pdf](https://vab.dk/p/Files/boligdata/BeboerMapper/43/Budget/afd.-43---2019.pdf)
                                            [Afd. 43 - 2020.pdf](https://vab.dk/p/Files/boligdata/BeboerMapper/43/Budget/Afd.-43---2020.pdf)
                                            [afd. 43 - 2022.pdf](https://vab.dk/p/Files/boligdata/BeboerMapper/43/Budget/afd.-43---2022.pdf)
                                            [afd. 43 - 2023.pdf](https://vab.dk/p/Files/boligdata/BeboerMapper/43/Budget/afd.-43---2023.pdf)
                                            [afd. 43 - 2024.pdf](https://vab.dk/p/Files/boligdata/BeboerMapper/43/Budget/afd.-43---2024.pdf)
                                            [afd. 43 - 2025.pdf](https://vab.dk/p/Files/boligdata/BeboerMapper/43/Budget/afd.-43---2025.pdf)
                                            [afd. 43 - 2026.pdf](https://vab.dk/p/Files/boligdata/BeboerMapper/43/Budget/afd.-43---2026.pdf)

###

                                                Markvandringsrapport

[afd. 43.pdf](https://vab.dk/p/Files/boligdata/BeboerMapper/43/Markvandringsrapport/afd.-43.pdf)

###

                                                Råderet

[Afd. 43 Råderetskatalog.pdf](https://vab.dk/p/Files/boligdata/BeboerMapper/43/R&#xE5;deret/Afd.-43-R&#xE5;deretskatalog.pdf)

###

                                                Drift- og vedligeholdelsesplaner

[afd. 43 - 2022.pdf](https://vab.dk/p/Files/boligdata/BeboerMapper/43/Drift-%20og%20vedligeholdelsesplaner/afd.-43---2022.pdf)
                                            [afd. 43 - 2023.pdf](https://vab.dk/p/Files/boligdata/BeboerMapper/43/Drift-%20og%20vedligeholdelsesplaner/afd.-43---2023.pdf)
                                            [afd. 43 - 2025.pdf](https://vab.dk/p/Files/boligdata/BeboerMapper/43/Drift-%20og%20vedligeholdelsesplaner/afd.-43---2025.pdf)
                                            [Afd. 43 - 2026.pdf](https://vab.dk/p/Files/boligdata/BeboerMapper/43/Drift-%20og%20vedligeholdelsesplaner/Afd.-43---2026.pdf)

###

                                                Vejledning til budget og regnskab

[Folder Læs og forstå budget og regnskab.pdf](https://vab.dk/p/Files/boligdata/BeboerMapper/F&#xE6;lles/Vejledning%20til%20budget%20og%20regnskab/Folder-L&#xE6;s-og-forst&#xE5;-budget-og-regnskab.pdf)

###

                                                Behandling og Vedligeholdelse (Fælles)

[Behandling og vedligeholdelsesvejledning.pdf](https://vab.dk/p/Files/boligdata/BeboerMapper/F&#xE6;lles/Behandling_Vedligeholdelse/Behandling-og-vedligeholdelsesvejledning.pdf)
                                            [Det kan betale sig at spare på ressourcerne.pdf](https://vab.dk/p/Files/boligdata/BeboerMapper/F&#xE6;lles/Behandling_Vedligeholdelse/Det-kan-betale-sig-at-spare-p&#xE5;-ressourcerne.pdf)
                                            [Luft ud.pdf](https://vab.dk/p/Files/boligdata/BeboerMapper/F&#xE6;lles/Behandling_Vedligeholdelse/Luft-ud.pdf)
                                            [Standardvedligeholdelsesreglement.pdf](https://vab.dk/p/Files/boligdata/BeboerMapper/F&#xE6;lles/Behandling_Vedligeholdelse/Standardvedligeholdelsesreglement.pdf)
                                            [Termostatventiler.pdf](https://vab.dk/p/Files/boligdata/BeboerMapper/F&#xE6;lles/Behandling_Vedligeholdelse/Termostatventiler.pdf)
                                            [Vandmåler.pdf](https://vab.dk/p/Files/boligdata/BeboerMapper/F&#xE6;lles/Behandling_Vedligeholdelse/Vandm&#xE5;ler.pdf)
                                            [Vedligeholdelse af sanitet.pdf](https://vab.dk/p/Files/boligdata/BeboerMapper/F&#xE6;lles/Behandling_Vedligeholdelse/Vedligeholdelse-af-sanitet.pdf)
                                            [Vedligeholdelse flyttekøkkener.pdf](https://vab.dk/p/Files/boligdata/BeboerMapper/F&#xE6;lles/Behandling_Vedligeholdelse/Vedligeholdelse-flyttek&#xF8;kkener.pdf)
                                            [Vedligeholdelse laminatbordplader.pdf](https://vab.dk/p/Files/boligdata/BeboerMapper/F&#xE6;lles/Behandling_Vedligeholdelse/Vedligeholdelse-laminatbordplader.pdf)

###

                                                Husorden (Fælles)

[Liste over forbudte hunderacer.pdf](https://vab.dk/p/Files/boligdata/BeboerMapper/F&#xE6;lles/Husorden/Liste-over-forbudte-hunderacer.pdf)
                                            [Standard husorden - Arabisk.pdf](https://vab.dk/p/Files/boligdata/BeboerMapper/F&#xE6;lles/Husorden/Standard-husorden---Arabisk.pdf)
                                            [Standard husorden.pdf](https://vab.dk/p/Files/boligdata/BeboerMapper/F&#xE6;lles/Husorden/Standard-husorden.pdf)

###

                                                Råderet (Fælles)

[Råderetsreglerne.pdf](https://vab.dk/p/Files/boligdata/BeboerMapper/F&#xE6;lles/R&#xE5;deret/R&#xE5;deretsreglerne.pdf)

## Kontaktpersoner i afdelingen

### Anne Suhr

Udlejningssagsbehandler

udlejning@vab.dk

### Channie Schleicher

Teknisk sagsbehandler

midt@vab.dk

### Evy Marie Nielsen

Driftschef

midt@vab.dk

### Maria Nørregaard Nielsen

Inspektør

midt@vab.dk

### Rikke Støving Andersen

Økonomisk Sagsbehandler

### Sofie Anna Kristensen

Elev

okonomi@vab.dk

### Vinni Barsøe

Teknisk sagsbehandler

midt@vab.dk
