---
title: "Afdeling 66 - Vandværksbakken"
description: "Afdeling 66 - Vandværksbakken"
date: "2026-05-15"
created: "2025-07-01"
---

-
-
-
-

https://maps.google.dk/?q=55.6582809,11.4045757

# Vandværksbakken

Afdeling 66

## Velkommen til Vandværksbakken 48-74 (lige nr.)

Rækkehuse opført i røde sten i 1 plan, 14 boliger - 2 og 3 rums. Byggeår 1984.

## Faciliteter

Husdyr

Ja

Det er tilladt at holde et husdyr pr. lejemål.

TV og internet

Ja

Lejer skal selv vælge sin TV og internetudbyder og betale direkte til udbyderen.

Varme

Se mere

Afdelingen er tilsluttet fjernvarme hos Jyderup Fjernvarmeværk. Lejer tilmelder sig selv og afregner direkte til forsyningsselskabet.

Hårde hvidevarer

Ja

Komfur, emhætte og køleskab.

## Boligtyper i afdelingen

Familiebolig

2 værelses

Familiebolig

Familiebolig

3 værelses

Familiebolig

##

Angivet husleje er ex. forbrug

Boligtype

Værelser

Størrelse

Husleje

Indskud/dp

Plantegning

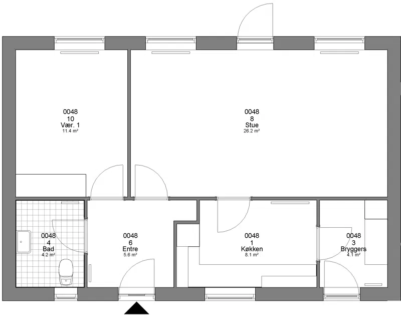
Familiebolig

2

50.8 m²

3677 kr.

6765 kr.

![](https://vab.dk/i/MOLIRIMEDIA/d4a67591-4dc0-4728-bb6f-08dd476e8eef?width=800)






![](https://vab.dk/i/MOLIRIMEDIA/d4a67591-4dc0-4728-bb6f-08dd476e8eef?width=800)

![](https://vab.dk/i/MOLIRIMEDIA/c94638f2-0087-4e3a-b9d2-08dd476e8eef?width=800)

![](https://vab.dk/i/MOLIRIMEDIA/d4a67591-4dc0-4728-bb6f-08dd476e8eef?width=800)

![](https://vab.dk/i/MOLIRIMEDIA/c94638f2-0087-4e3a-b9d2-08dd476e8eef?width=800)

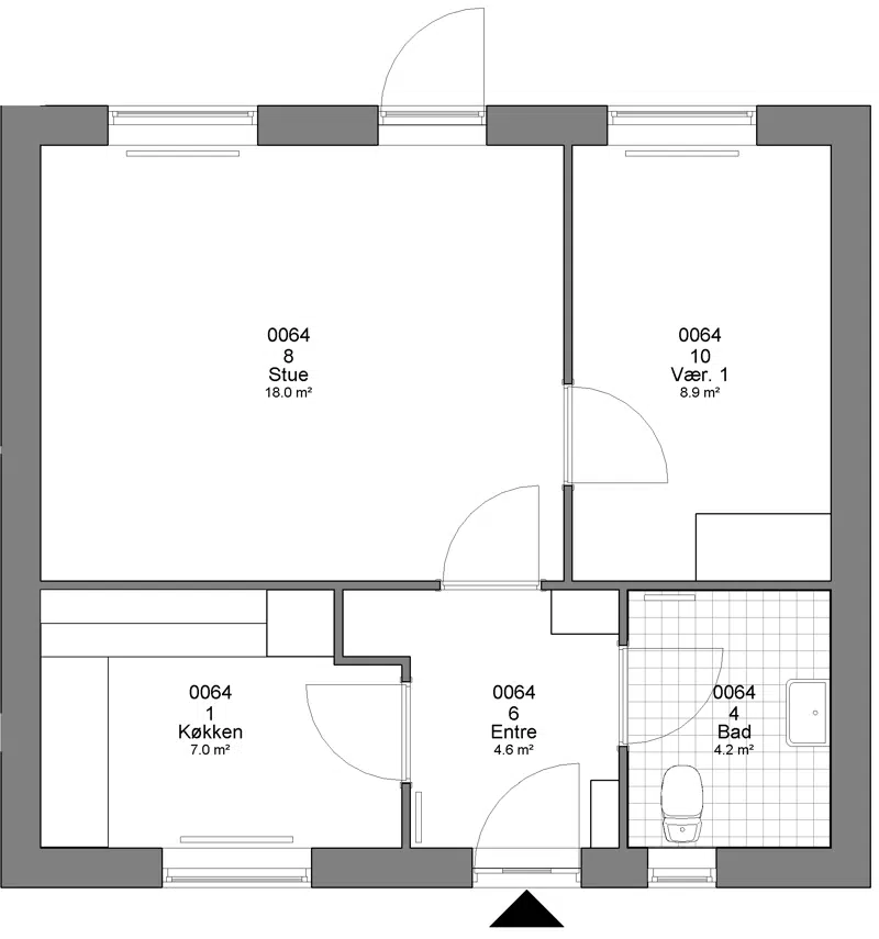
Familiebolig

2

63 m²

4261 kr.

8150 kr.

![](https://vab.dk/i/MOLIRIMEDIA/e5b4157f-ab54-4816-c14b-08dd476e8eef?width=800)






![](https://vab.dk/i/MOLIRIMEDIA/e5b4157f-ab54-4816-c14b-08dd476e8eef?width=800)

![](https://vab.dk/i/MOLIRIMEDIA/78ea9fbf-4f4f-4aaa-bb3c-08dd476e8eef?width=800)

![](https://vab.dk/i/MOLIRIMEDIA/e5b4157f-ab54-4816-c14b-08dd476e8eef?width=800)

![](https://vab.dk/i/MOLIRIMEDIA/78ea9fbf-4f4f-4aaa-bb3c-08dd476e8eef?width=800)

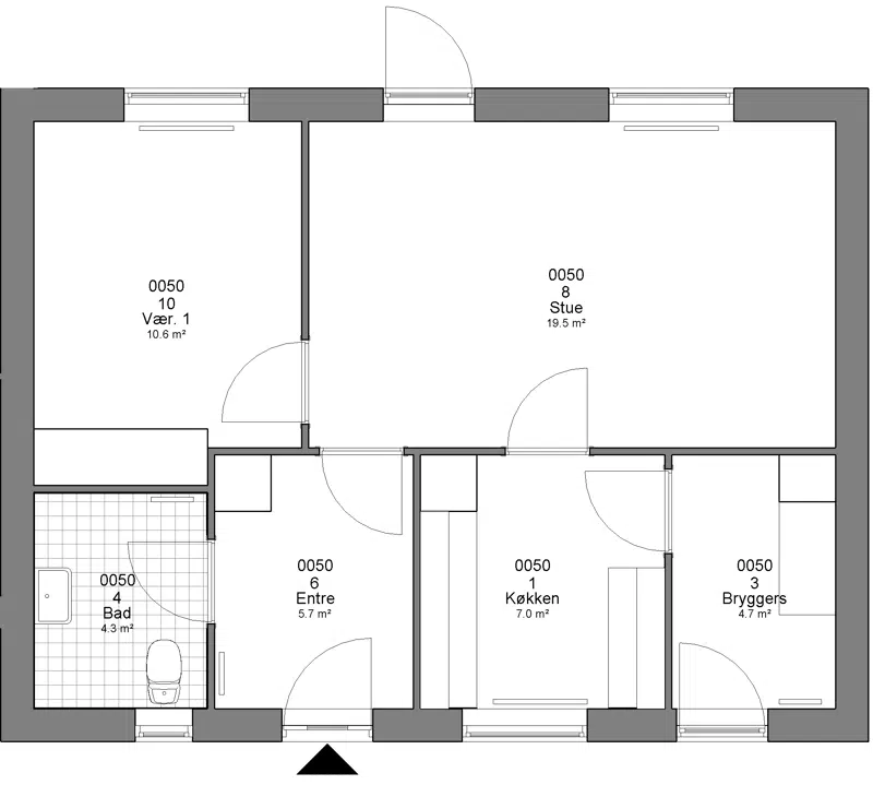
Familiebolig

2

72 m²

4765 kr.

9320 kr.

![](https://vab.dk/i/MOLIRIMEDIA/5240fcb6-0e53-4383-bd03-08dd476e8eef?width=800)






![](https://vab.dk/i/MOLIRIMEDIA/5240fcb6-0e53-4383-bd03-08dd476e8eef?width=800)

![](https://vab.dk/i/MOLIRIMEDIA/ce6a636a-3be6-4dd4-b65f-08dd476e8eef?width=800)

![](https://vab.dk/i/MOLIRIMEDIA/5240fcb6-0e53-4383-bd03-08dd476e8eef?width=800)

![](https://vab.dk/i/MOLIRIMEDIA/ce6a636a-3be6-4dd4-b65f-08dd476e8eef?width=800)

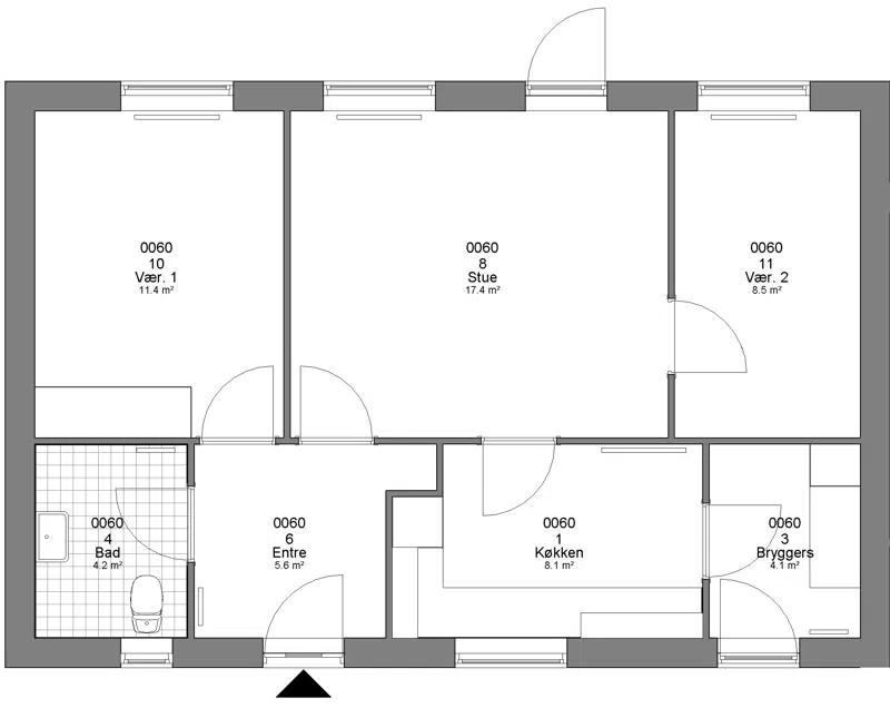
Familiebolig

3

72 m²

4765 kr.

9320 kr.

![](https://vab.dk/i/MOLIRIMEDIA/f9140c37-ec91-45d4-b9b6-08dd476e8eef?width=800)






![](https://vab.dk/i/MOLIRIMEDIA/f9140c37-ec91-45d4-b9b6-08dd476e8eef?width=800)

![](https://vab.dk/i/MOLIRIMEDIA/b10b17a5-a342-4a12-bc1f-08dd476e8eef?width=800)

![](https://vab.dk/i/MOLIRIMEDIA/f9140c37-ec91-45d4-b9b6-08dd476e8eef?width=800)

![](https://vab.dk/i/MOLIRIMEDIA/b10b17a5-a342-4a12-bc1f-08dd476e8eef?width=800)

## Afdelingens afstande til

Indkøbsmuligheder

meter

Park & natur

meter

Træning

meter

Bus

meter

Skole/uddanelse

meter

Institution

meter

## Afdelingsdokumenter

Her finder du nyttig information om din afdeling, såsom husorden, vedligeholdelse af dit lejemål m.m.

###

                                                Budget

[afd. 66 - 2015.pdf](https://vab.dk/p/Files/boligdata/BeboerMapper/66/Budget/afd.-66---2015.pdf)
                                            [Afd. 66 - 2016.pdf](https://vab.dk/p/Files/boligdata/BeboerMapper/66/Budget/Afd.-66---2016.pdf)
                                            [afd. 66 - 2017.pdf](https://vab.dk/p/Files/boligdata/BeboerMapper/66/Budget/afd.-66---2017.pdf)
                                            [afd. 66 - 2018.pdf](https://vab.dk/p/Files/boligdata/BeboerMapper/66/Budget/afd.-66---2018.pdf)
                                            [Afd. 66 - 2020.pdf](https://vab.dk/p/Files/boligdata/BeboerMapper/66/Budget/Afd.-66---2020.pdf)
                                            [afd. 66 - 2022.pdf](https://vab.dk/p/Files/boligdata/BeboerMapper/66/Budget/afd.-66---2022.pdf)
                                            [afd. 66 - 2023.pdf](https://vab.dk/p/Files/boligdata/BeboerMapper/66/Budget/afd.-66---2023.pdf)
                                            [afd. 66 - 2024.pdf](https://vab.dk/p/Files/boligdata/BeboerMapper/66/Budget/afd.-66---2024.pdf)
                                            [afd. 66 - 2025.pdf](https://vab.dk/p/Files/boligdata/BeboerMapper/66/Budget/afd.-66---2025.pdf)
                                            [afd. 66 - 2026.pdf](https://vab.dk/p/Files/boligdata/BeboerMapper/66/Budget/afd.-66---2026.pdf)

###

                                                Markvandringsrapport

[afd. 66 - 2019.pdf](https://vab.dk/p/Files/boligdata/BeboerMapper/66/Markvandringsrapport/afd.-66---2019.pdf)
                                            [afd. 66.pdf](https://vab.dk/p/Files/boligdata/BeboerMapper/66/Markvandringsrapport/afd.-66.pdf)

###

                                                Råderet

[Afd. 66 Råderetskatalog - standard.pdf](https://vab.dk/p/Files/boligdata/BeboerMapper/66/R&#xE5;deret/Afd.-66-R&#xE5;deretskatalog---standard.pdf)

###

                                                Drift- og vedligeholdelsesplaner

[afd. 66 - 2022.pdf](https://vab.dk/p/Files/boligdata/BeboerMapper/66/Drift-%20og%20vedligeholdelsesplaner/afd.-66---2022.pdf)
                                            [afd. 66 - 2023.pdf](https://vab.dk/p/Files/boligdata/BeboerMapper/66/Drift-%20og%20vedligeholdelsesplaner/afd.-66---2023.pdf)
                                            [afd. 66 - 2025.pdf](https://vab.dk/p/Files/boligdata/BeboerMapper/66/Drift-%20og%20vedligeholdelsesplaner/afd.-66---2025.pdf)
                                            [Afd. 66 - 2026.pdf](https://vab.dk/p/Files/boligdata/BeboerMapper/66/Drift-%20og%20vedligeholdelsesplaner/Afd.-66---2026.pdf)

###

                                                Diverse

[Afd. 66 - Beskrivelse af renoveringsprojekt 2025-2026.pdf](https://vab.dk/p/Files/boligdata/BeboerMapper/66/Diverse/Afd.-66---Beskrivelse-af-renoveringsprojekt-2025-2026.pdf)

###

                                                Vejledning til budget og regnskab

[Folder Læs og forstå budget og regnskab.pdf](https://vab.dk/p/Files/boligdata/BeboerMapper/F&#xE6;lles/Vejledning%20til%20budget%20og%20regnskab/Folder-L&#xE6;s-og-forst&#xE5;-budget-og-regnskab.pdf)

###

                                                Behandling og Vedligeholdelse (Fælles)

[Behandling og vedligeholdelsesvejledning.pdf](https://vab.dk/p/Files/boligdata/BeboerMapper/F&#xE6;lles/Behandling_Vedligeholdelse/Behandling-og-vedligeholdelsesvejledning.pdf)
                                            [Det kan betale sig at spare på ressourcerne.pdf](https://vab.dk/p/Files/boligdata/BeboerMapper/F&#xE6;lles/Behandling_Vedligeholdelse/Det-kan-betale-sig-at-spare-p&#xE5;-ressourcerne.pdf)
                                            [Luft ud.pdf](https://vab.dk/p/Files/boligdata/BeboerMapper/F&#xE6;lles/Behandling_Vedligeholdelse/Luft-ud.pdf)
                                            [Standardvedligeholdelsesreglement.pdf](https://vab.dk/p/Files/boligdata/BeboerMapper/F&#xE6;lles/Behandling_Vedligeholdelse/Standardvedligeholdelsesreglement.pdf)
                                            [Termostatventiler.pdf](https://vab.dk/p/Files/boligdata/BeboerMapper/F&#xE6;lles/Behandling_Vedligeholdelse/Termostatventiler.pdf)
                                            [Vandmåler.pdf](https://vab.dk/p/Files/boligdata/BeboerMapper/F&#xE6;lles/Behandling_Vedligeholdelse/Vandm&#xE5;ler.pdf)
                                            [Vedligeholdelse af sanitet.pdf](https://vab.dk/p/Files/boligdata/BeboerMapper/F&#xE6;lles/Behandling_Vedligeholdelse/Vedligeholdelse-af-sanitet.pdf)
                                            [Vedligeholdelse flyttekøkkener.pdf](https://vab.dk/p/Files/boligdata/BeboerMapper/F&#xE6;lles/Behandling_Vedligeholdelse/Vedligeholdelse-flyttek&#xF8;kkener.pdf)
                                            [Vedligeholdelse laminatbordplader.pdf](https://vab.dk/p/Files/boligdata/BeboerMapper/F&#xE6;lles/Behandling_Vedligeholdelse/Vedligeholdelse-laminatbordplader.pdf)

###

                                                Husorden (Fælles)

[Liste over forbudte hunderacer.pdf](https://vab.dk/p/Files/boligdata/BeboerMapper/F&#xE6;lles/Husorden/Liste-over-forbudte-hunderacer.pdf)
                                            [Standard husorden - Arabisk.pdf](https://vab.dk/p/Files/boligdata/BeboerMapper/F&#xE6;lles/Husorden/Standard-husorden---Arabisk.pdf)
                                            [Standard husorden.pdf](https://vab.dk/p/Files/boligdata/BeboerMapper/F&#xE6;lles/Husorden/Standard-husorden.pdf)

###

                                                Råderet (Fælles)

[Råderetsreglerne.pdf](https://vab.dk/p/Files/boligdata/BeboerMapper/F&#xE6;lles/R&#xE5;deret/R&#xE5;deretsreglerne.pdf)

## Afdelingsbestyrelsesmedlemmer

Navn

Titel

Email

Telefon

Jens Thomsen

Formand

Inge Anette Rejngaard Madsen

Medlem

Kirsten Melohn

Medlem

Lilli Arleth

Suppleant

Gitta Lena Hansen

Suppleant

## Kontaktpersoner i afdelingen

### Anne Suhr

Udlejningssagsbehandler

udlejning@vab.dk

### Channie Schleicher

Teknisk sagsbehandler

midt@vab.dk

### Evy Marie Nielsen

Driftschef

midt@vab.dk

### Helle Trier Hansen

Økonomisk sagsbehandler

okonomi@vab.dk

### Maria Nørregaard Nielsen

Inspektør

midt@vab.dk

### Vinni Barsøe

Teknisk sagsbehandler

midt@vab.dk
