---
title: "Afdeling 80 - Ridebanevej"
description: "Afdeling 80 - Ridebanevej"
date: "2026-05-15"
created: "2025-02-10"
---

-
-
-
-
-
-
-
-
-

https://maps.google.dk/?q=55.754686,11.704478

# Ridebanevej

Afdeling 80

## Velkommen til Ridebanevej 13-43 (U), 2A-D,4A-D,6A-D,8A-F, 1-11 (U) A-B

Rækkehuse i 1 & 1½ plan, 46 boliger - 2, 3 og 4 rums. Byggeår 1988 & 1994 & 2011

## Faciliteter

Husdyr

Ja

Det er tilladt at holde et husdyr pr. lejemål.

TV og internet

Ja

Lejer skal selv vælge sin TV og internetudbyder og betale direkte til udbyderen. Der er fibernet.

Legeplads

Ja

Der er en legeplads på afdelingens fællesareal

Ladestander

Ja

Der findes en ladestander (Nortec) på p-pladsen i afdelingen.

## Boligtyper i afdelingen

Familiebolig

2 værelses

Familiebolig

Familiebolig

3 værelses

Familiebolig

Familiebolig

4 værelses

Familiebolig

##

Angivet husleje er ex. forbrug

Boligtype

Værelser

Størrelse

Husleje

Indskud/dp

Plantegning

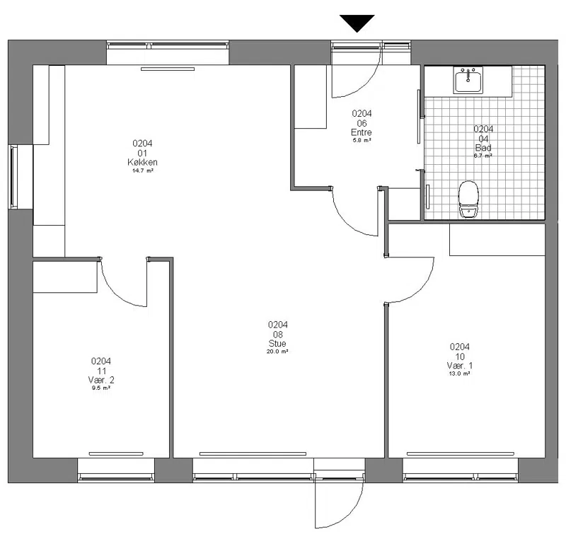
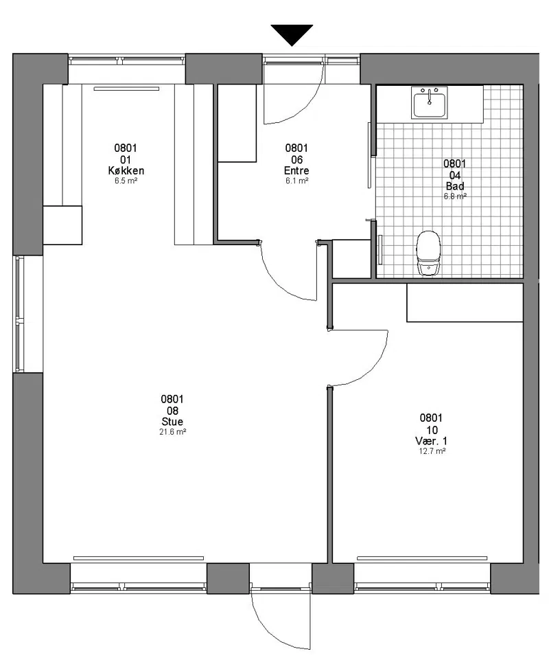
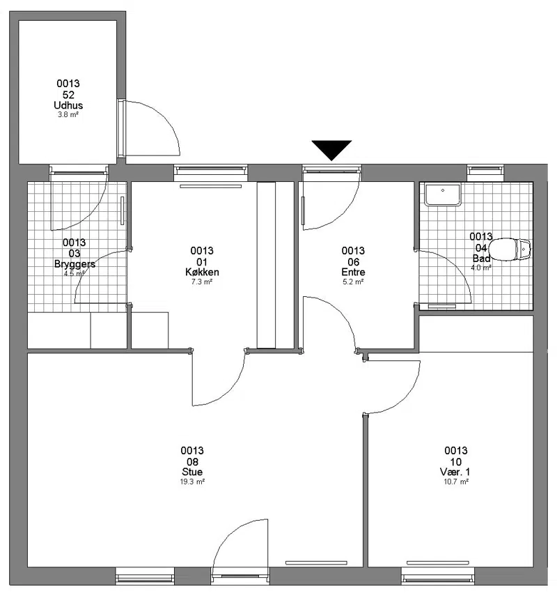
Familiebolig

2

66 m²

5558 kr.

24150 kr.

![](https://vab.dk/i/MOLIRIMEDIA/67fd64e4-3012-4c56-becb-08dd476e8eef?width=800)






![](https://vab.dk/i/MOLIRIMEDIA/67fd64e4-3012-4c56-becb-08dd476e8eef?width=800)

![](https://vab.dk/i/MOLIRIMEDIA/b68e7440-5b6b-405e-bbba-08dd476e8eef?width=800)

![](https://vab.dk/i/MOLIRIMEDIA/67fd64e4-3012-4c56-becb-08dd476e8eef?width=800)

![](https://vab.dk/i/MOLIRIMEDIA/b68e7440-5b6b-405e-bbba-08dd476e8eef?width=800)

Familiebolig

2

66 m²

4470 kr.

11600 kr.

![](https://vab.dk/i/MOLIRIMEDIA/9c3a5de1-07af-41d9-b92c-08dd476e8eef?width=800)






![](https://vab.dk/i/MOLIRIMEDIA/9c3a5de1-07af-41d9-b92c-08dd476e8eef?width=800)

![](https://vab.dk/i/MOLIRIMEDIA/a82bd8de-a27e-41ba-be9a-08dd476e8eef?width=800)

![](https://vab.dk/i/MOLIRIMEDIA/9c3a5de1-07af-41d9-b92c-08dd476e8eef?width=800)

![](https://vab.dk/i/MOLIRIMEDIA/a82bd8de-a27e-41ba-be9a-08dd476e8eef?width=800)

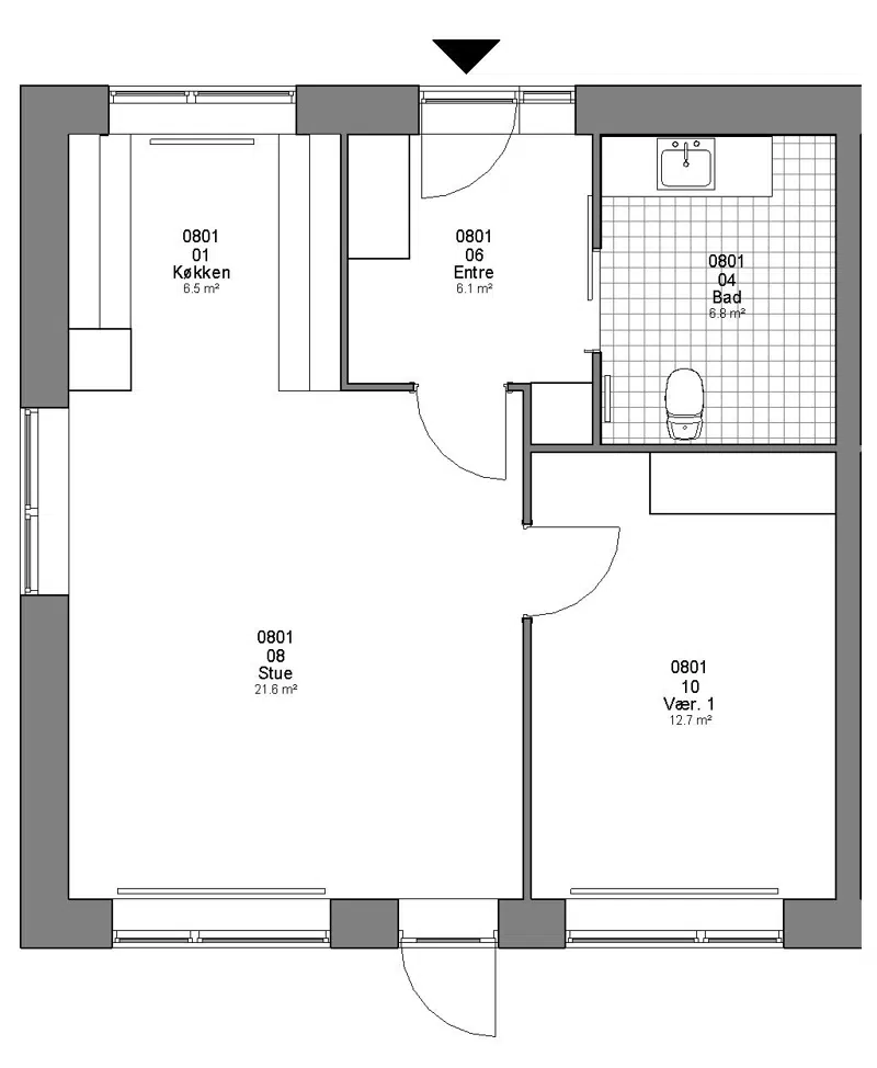
Familiebolig

2

59 m²

4423 kr.

9600 kr.

![](https://vab.dk/i/MOLIRIMEDIA/0d687943-12d4-4b00-bb82-08dd476e8eef?width=800)






![](https://vab.dk/i/MOLIRIMEDIA/0d687943-12d4-4b00-bb82-08dd476e8eef?width=800)

![](https://vab.dk/i/MOLIRIMEDIA/0a6bff8d-64d8-4312-beb6-08dd476e8eef?width=800)

![](https://vab.dk/i/MOLIRIMEDIA/0d687943-12d4-4b00-bb82-08dd476e8eef?width=800)

![](https://vab.dk/i/MOLIRIMEDIA/0a6bff8d-64d8-4312-beb6-08dd476e8eef?width=800)

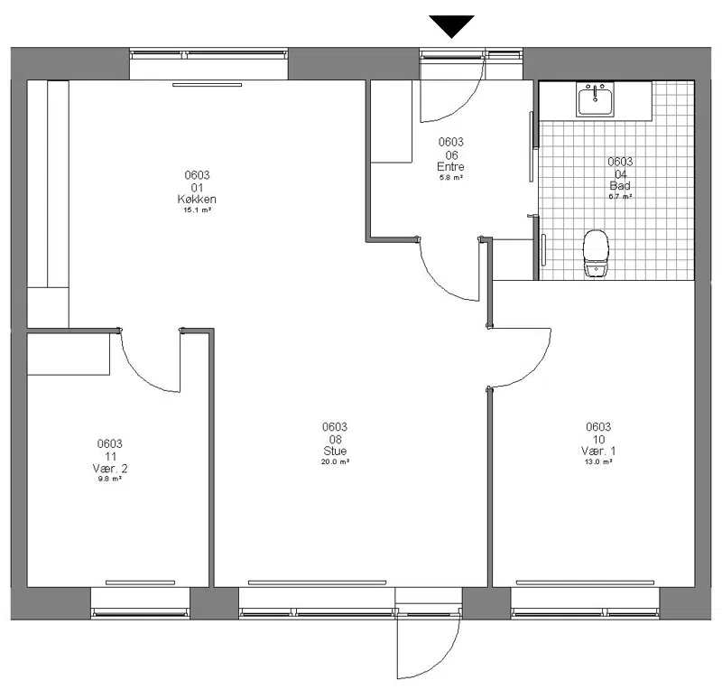
Familiebolig

2

60 m²

4431 kr.

9600 kr.

![](https://vab.dk/i/MOLIRIMEDIA/35094701-8aa6-4ca8-c1db-08dd476e8eef?width=800)






![](https://vab.dk/i/MOLIRIMEDIA/35094701-8aa6-4ca8-c1db-08dd476e8eef?width=800)

![](https://vab.dk/i/MOLIRIMEDIA/4ffcd8c0-d929-4208-b8e2-08dd476e8eef?width=800)

![](https://vab.dk/i/MOLIRIMEDIA/35094701-8aa6-4ca8-c1db-08dd476e8eef?width=800)

![](https://vab.dk/i/MOLIRIMEDIA/4ffcd8c0-d929-4208-b8e2-08dd476e8eef?width=800)

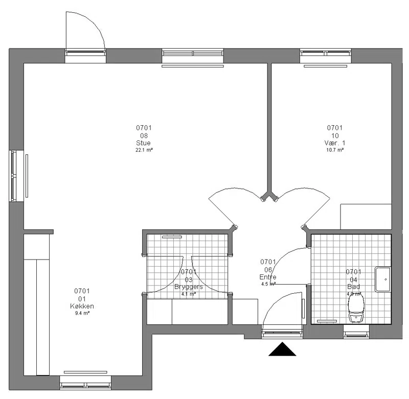
Familiebolig

3

82 m²

7108 kr.

31200 kr.

![](https://vab.dk/i/MOLIRIMEDIA/71e0c1fb-6237-4e56-ba25-08dd476e8eef?width=800)






![](https://vab.dk/i/MOLIRIMEDIA/71e0c1fb-6237-4e56-ba25-08dd476e8eef?width=800)

![](https://vab.dk/i/MOLIRIMEDIA/c8262ef5-262a-4d27-c70e-08dd476e8eef?width=800)

![](https://vab.dk/i/MOLIRIMEDIA/71e0c1fb-6237-4e56-ba25-08dd476e8eef?width=800)

![](https://vab.dk/i/MOLIRIMEDIA/c8262ef5-262a-4d27-c70e-08dd476e8eef?width=800)

Familiebolig

3

85 m²

7127 kr.

31200 kr.

![](https://vab.dk/i/MOLIRIMEDIA/6a27183b-046d-4e2c-c26b-08dd476e8eef?width=800)






![](https://vab.dk/i/MOLIRIMEDIA/6a27183b-046d-4e2c-c26b-08dd476e8eef?width=800)

![](https://vab.dk/i/MOLIRIMEDIA/e8fdedf8-49e9-4f71-b7ff-08dd476e8eef?width=800)

![](https://vab.dk/i/MOLIRIMEDIA/6a27183b-046d-4e2c-c26b-08dd476e8eef?width=800)

![](https://vab.dk/i/MOLIRIMEDIA/e8fdedf8-49e9-4f71-b7ff-08dd476e8eef?width=800)

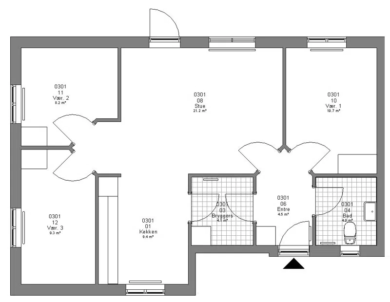
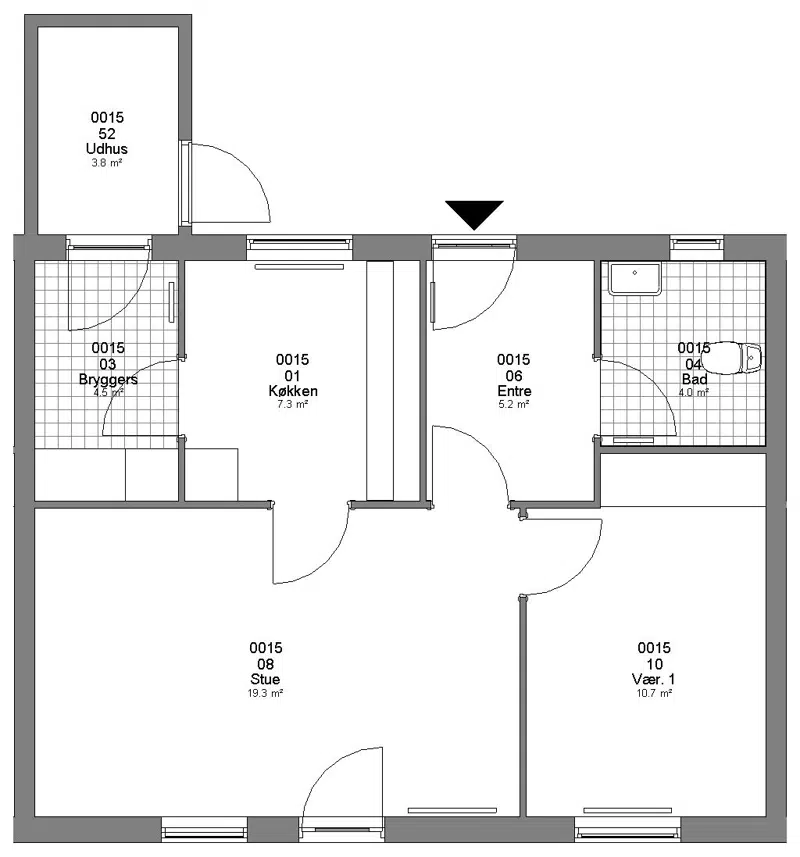
Familiebolig

3

75 m²

4979 kr.

13400 kr.

![](https://vab.dk/i/MOLIRIMEDIA/a2bae903-3fc5-4f24-bd5a-08dd476e8eef?width=800)






![](https://vab.dk/i/MOLIRIMEDIA/a2bae903-3fc5-4f24-bd5a-08dd476e8eef?width=800)

![](https://vab.dk/i/MOLIRIMEDIA/88236a44-50b2-4fe5-c411-08dd476e8eef?width=800)

![](https://vab.dk/i/MOLIRIMEDIA/a2bae903-3fc5-4f24-bd5a-08dd476e8eef?width=800)

![](https://vab.dk/i/MOLIRIMEDIA/88236a44-50b2-4fe5-c411-08dd476e8eef?width=800)

Familiebolig

3

86 m²

5609 kr.

13500 kr.

![](https://vab.dk/i/MOLIRIMEDIA/671d77d0-494e-4fef-c09e-08dd476e8eef?width=800)






![](https://vab.dk/i/MOLIRIMEDIA/671d77d0-494e-4fef-c09e-08dd476e8eef?width=800)

![](https://vab.dk/i/MOLIRIMEDIA/0d260c20-c9de-4125-b797-08dd476e8eef?width=800)

![](https://vab.dk/i/MOLIRIMEDIA/671d77d0-494e-4fef-c09e-08dd476e8eef?width=800)

![](https://vab.dk/i/MOLIRIMEDIA/0d260c20-c9de-4125-b797-08dd476e8eef?width=800)

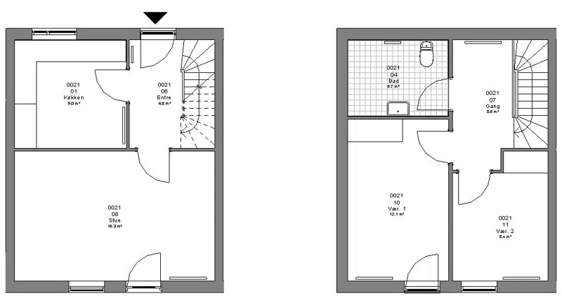
Familiebolig

4

85 m²

5495 kr.

15200 kr.

![](https://vab.dk/i/MOLIRIMEDIA/435de50b-1749-4787-c442-08dd476e8eef?width=800)






![](https://vab.dk/i/MOLIRIMEDIA/435de50b-1749-4787-c442-08dd476e8eef?width=800)

![](https://vab.dk/i/MOLIRIMEDIA/580c3410-bd28-4ca1-c3cd-08dd476e8eef?width=800)

![](https://vab.dk/i/MOLIRIMEDIA/435de50b-1749-4787-c442-08dd476e8eef?width=800)

![](https://vab.dk/i/MOLIRIMEDIA/580c3410-bd28-4ca1-c3cd-08dd476e8eef?width=800)

## Afdelingens afstande til

Indkøbsmuligheder

meter

Park & natur

meter

Træning

meter

Bus

meter

Skole/uddanelse

meter

Institution

meter

## Afdelingsdokumenter

Her finder du nyttig information om din afdeling, såsom husorden, vedligeholdelse af dit lejemål m.m.

###

                                                Budget

[afd. 80 - 2015.pdf](https://vab.dk/p/Files/boligdata/BeboerMapper/80/Budget/afd.-80---2015.pdf)
                                            [Afd. 80 - 2016.pdf](https://vab.dk/p/Files/boligdata/BeboerMapper/80/Budget/Afd.-80---2016.pdf)
                                            [afd. 80 - 2017.pdf](https://vab.dk/p/Files/boligdata/BeboerMapper/80/Budget/afd.-80---2017.pdf)
                                            [afd. 80 - 2018.pdf](https://vab.dk/p/Files/boligdata/BeboerMapper/80/Budget/afd.-80---2018.pdf)
                                            [Afd. 80 - 2020.pdf](https://vab.dk/p/Files/boligdata/BeboerMapper/80/Budget/Afd.-80---2020.pdf)
                                            [afd. 80 - 2022.pdf](https://vab.dk/p/Files/boligdata/BeboerMapper/80/Budget/afd.-80---2022.pdf)
                                            [afd. 80 - 2023.pdf](https://vab.dk/p/Files/boligdata/BeboerMapper/80/Budget/afd.-80---2023.pdf)
                                            [afd. 80 - 2024.pdf](https://vab.dk/p/Files/boligdata/BeboerMapper/80/Budget/afd.-80---2024.pdf)
                                            [afd. 80 - 2025.pdf](https://vab.dk/p/Files/boligdata/BeboerMapper/80/Budget/afd.-80---2025.pdf)
                                            [afd. 80 - 2026.pdf](https://vab.dk/p/Files/boligdata/BeboerMapper/80/Budget/afd.-80---2026.pdf)

###

                                                Husorden

[Afd. 80 - Tillæg til husorden.pdf](https://vab.dk/p/Files/boligdata/BeboerMapper/80/Husorden/Afd.-80---Till&#xE6;g-til-husorden.pdf)
                                            [Afd. 80.pdf](https://vab.dk/p/Files/boligdata/BeboerMapper/80/Husorden/Afd.-80.pdf)

###

                                                Markvandringsrapport

[afd. 80.pdf](https://vab.dk/p/Files/boligdata/BeboerMapper/80/Markvandringsrapport/afd.-80.pdf)

###

                                                Råderet

[Afd. 80 Råderetskatalog.pdf](https://vab.dk/p/Files/boligdata/BeboerMapper/80/R&#xE5;deret/Afd.-80-R&#xE5;deretskatalog.pdf)

###

                                                Drift- og vedligeholdelsesplaner

[afd. 80 - 2023.pdf](https://vab.dk/p/Files/boligdata/BeboerMapper/80/Drift-%20og%20vedligeholdelsesplaner/afd.-80---2023.pdf)
                                            [afd. 80 - 2025.pdf](https://vab.dk/p/Files/boligdata/BeboerMapper/80/Drift-%20og%20vedligeholdelsesplaner/afd.-80---2025.pdf)
                                            [Afd. 80 - 2026.pdf](https://vab.dk/p/Files/boligdata/BeboerMapper/80/Drift-%20og%20vedligeholdelsesplaner/Afd.-80---2026.pdf)

###

                                                Diverse

[Afd. 80 - Flagregler.pdf](https://vab.dk/p/Files/boligdata/BeboerMapper/80/Diverse/Afd.-80---Flagregler.pdf)
                                            [Afd. 80 - Informationspjece.pdf](https://vab.dk/p/Files/boligdata/BeboerMapper/80/Diverse/Afd.-80---Informationspjece.pdf)
                                            [Afd. 80 - Ladestander brugerfolder - Nortec Go 3.0.pdf](https://vab.dk/p/Files/boligdata/BeboerMapper/80/Diverse/Afd.-80---Ladestander-brugerfolder---Nortec-Go-3.0.pdf)

###

                                                Vejledning til budget og regnskab

[Folder Læs og forstå budget og regnskab.pdf](https://vab.dk/p/Files/boligdata/BeboerMapper/F&#xE6;lles/Vejledning%20til%20budget%20og%20regnskab/Folder-L&#xE6;s-og-forst&#xE5;-budget-og-regnskab.pdf)

###

                                                Behandling og Vedligeholdelse (Fælles)

[Behandling og vedligeholdelsesvejledning.pdf](https://vab.dk/p/Files/boligdata/BeboerMapper/F&#xE6;lles/Behandling_Vedligeholdelse/Behandling-og-vedligeholdelsesvejledning.pdf)
                                            [Det kan betale sig at spare på ressourcerne.pdf](https://vab.dk/p/Files/boligdata/BeboerMapper/F&#xE6;lles/Behandling_Vedligeholdelse/Det-kan-betale-sig-at-spare-p&#xE5;-ressourcerne.pdf)
                                            [Luft ud.pdf](https://vab.dk/p/Files/boligdata/BeboerMapper/F&#xE6;lles/Behandling_Vedligeholdelse/Luft-ud.pdf)
                                            [Standardvedligeholdelsesreglement.pdf](https://vab.dk/p/Files/boligdata/BeboerMapper/F&#xE6;lles/Behandling_Vedligeholdelse/Standardvedligeholdelsesreglement.pdf)
                                            [Termostatventiler.pdf](https://vab.dk/p/Files/boligdata/BeboerMapper/F&#xE6;lles/Behandling_Vedligeholdelse/Termostatventiler.pdf)
                                            [Vandmåler.pdf](https://vab.dk/p/Files/boligdata/BeboerMapper/F&#xE6;lles/Behandling_Vedligeholdelse/Vandm&#xE5;ler.pdf)
                                            [Vedligeholdelse af sanitet.pdf](https://vab.dk/p/Files/boligdata/BeboerMapper/F&#xE6;lles/Behandling_Vedligeholdelse/Vedligeholdelse-af-sanitet.pdf)
                                            [Vedligeholdelse flyttekøkkener.pdf](https://vab.dk/p/Files/boligdata/BeboerMapper/F&#xE6;lles/Behandling_Vedligeholdelse/Vedligeholdelse-flyttek&#xF8;kkener.pdf)
                                            [Vedligeholdelse laminatbordplader.pdf](https://vab.dk/p/Files/boligdata/BeboerMapper/F&#xE6;lles/Behandling_Vedligeholdelse/Vedligeholdelse-laminatbordplader.pdf)

###

                                                Husorden (Fælles)

[Liste over forbudte hunderacer.pdf](https://vab.dk/p/Files/boligdata/BeboerMapper/F&#xE6;lles/Husorden/Liste-over-forbudte-hunderacer.pdf)
                                            [Standard husorden - Arabisk.pdf](https://vab.dk/p/Files/boligdata/BeboerMapper/F&#xE6;lles/Husorden/Standard-husorden---Arabisk.pdf)
                                            [Standard husorden.pdf](https://vab.dk/p/Files/boligdata/BeboerMapper/F&#xE6;lles/Husorden/Standard-husorden.pdf)

###

                                                Råderet (Fælles)

[Råderetsreglerne.pdf](https://vab.dk/p/Files/boligdata/BeboerMapper/F&#xE6;lles/R&#xE5;deret/R&#xE5;deretsreglerne.pdf)

## Afdelingsbestyrelsesmedlemmer

Navn

Titel

Email

Telefon

Marie Louise Johnsen

Formand

Afd.80@outlook.dk

61271235

Marianne Schøndorff Engel

Medlem

Ole Lindersson

Medlem

Kirsten Inge Westberg

Suppleant

Kinnie Tea Hjorth

Suppleant

## Kontaktpersoner i afdelingen

### Anne Suhr

Udlejningssagsbehandler

udlejning@vab.dk

### Channie Schleicher

Teknisk sagsbehandler

midt@vab.dk

### Evy Marie Nielsen

Driftschef

midt@vab.dk

### Helle Trier Hansen

Økonomisk sagsbehandler

okonomi@vab.dk

### Maria Nørregaard Nielsen

Inspektør

midt@vab.dk

### Vinni Barsøe

Teknisk sagsbehandler

midt@vab.dk
