---
title: "Afdeling 81 - Hejrevej"
description: "Afdeling 81 - Hejrevej"
date: "2026-05-15"
created: "2025-02-10"
---

-
-
-
-
-
-

https://maps.google.dk/?q=55.7317235,11.544178

# Hejrevej

Afdeling 81

## Velkommen til Hejrevej 1-15(Ulige) & 17-31 & 26-46 & 33-65

Afdelingen består af 40 familieboliger samt 4 ungdomsboliger i 1 plan. Boligerne er 1-, 2- og 3-rums boliger.

Hejrevej 26-46 og 33-65 er opført i 1987 i gule mursten.

Hejrevej 1-15 og 17-31 er opført i henholdsvis 1991 og 1996 i røde mursten.

Afdelingen råder over et lille grønt område, hvor der er en mindre legeplads til børnene.

## Faciliteter

Husdyr

Ja

Det er tilladt at holde et husdyr pr. lejemål.

TV og internet

Ja

Lejer skal selv vælge sin TV og internetudbyder og betale direkte til udbyderen.

Varme

Se mere

Luft-til-vand varmepumper

Vaskeri

Ja

Fællesvaskeri ved nr. 33, hvor der også forefindes tørretumbler.

Hårde hvidevarer

Ja

Hejrevej 26-46 og 33-65 har komfur, køleskab og genvex.

Hejrevej 1-15 har dropinette, indbygget ovn og køleskab.

Hejrevej 17-31 har komfur, køleskab og emhætte.

Legeplads

Ja

Der er en legeplads på afdelingens fællesareal

Ladestander

Ja

Der findes en ladestander (Nortec) på p-pladsen i afdelingen.

## Boligtyper i afdelingen

Ungdomsbolig

1 værelses

Ungdomsbolig

Familiebolig

2 værelses

Familiebolig

Familiebolig

3 værelses

Familiebolig

##

Angivet husleje er ex. forbrug

Boligtype

Værelser

Størrelse

Husleje

Indskud/dp

Plantegning

Familiebolig

2

61 m²

5138 kr.

9700 kr.

![](https://vab.dk/i/MOLIRIMEDIA/7599b9dd-2e7a-4d1e-c4e5-08dd476e8eef?width=800)






![](https://vab.dk/i/MOLIRIMEDIA/7599b9dd-2e7a-4d1e-c4e5-08dd476e8eef?width=800)

![](https://vab.dk/i/MOLIRIMEDIA/437dd066-b513-4084-c1a3-08dd476e8eef?width=800)

![](https://vab.dk/i/MOLIRIMEDIA/7599b9dd-2e7a-4d1e-c4e5-08dd476e8eef?width=800)

![](https://vab.dk/i/MOLIRIMEDIA/437dd066-b513-4084-c1a3-08dd476e8eef?width=800)

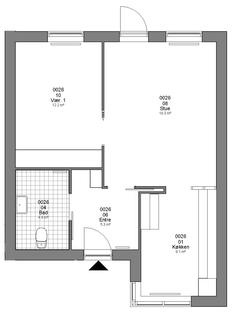
Familiebolig

2

60 m²

5096 kr.

9600 kr.

![](https://vab.dk/i/MOLIRIMEDIA/430bf94b-2f09-4c55-c393-08dd476e8eef?width=800)






![](https://vab.dk/i/MOLIRIMEDIA/430bf94b-2f09-4c55-c393-08dd476e8eef?width=800)

![](https://vab.dk/i/MOLIRIMEDIA/c858eb28-a196-4912-c3d6-08dd476e8eef?width=800)

![](https://vab.dk/i/MOLIRIMEDIA/430bf94b-2f09-4c55-c393-08dd476e8eef?width=800)

![](https://vab.dk/i/MOLIRIMEDIA/c858eb28-a196-4912-c3d6-08dd476e8eef?width=800)

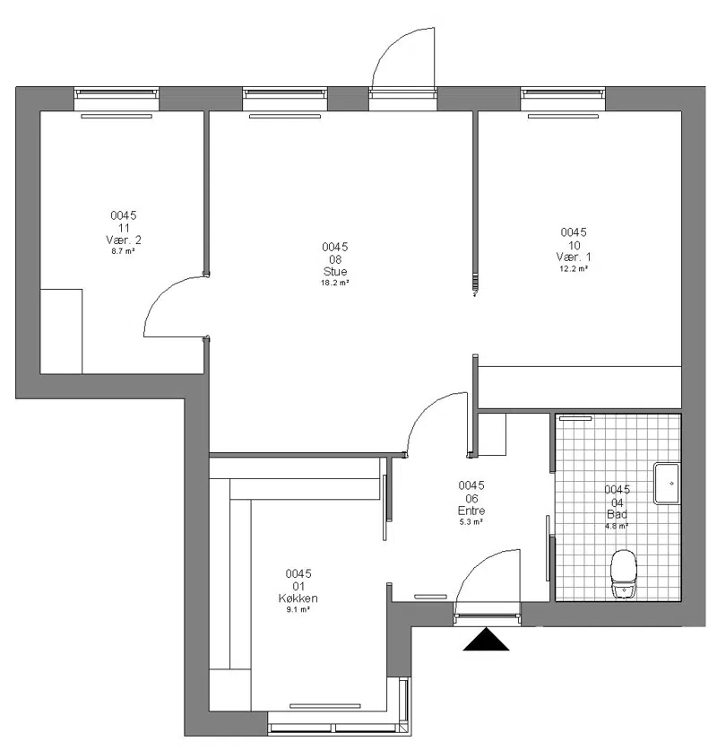
Familiebolig

2

66 m²

5425 kr.

12300 kr.

Familiebolig

2

66 m²

5425 kr.

11700 kr.

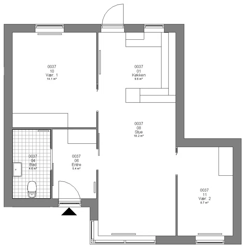
Familiebolig

3

70 m²

5762 kr.

11100 kr.

![](https://vab.dk/i/MOLIRIMEDIA/ad9db3c4-6acf-445e-b757-08dd476e8eef?width=800)






![](https://vab.dk/i/MOLIRIMEDIA/ad9db3c4-6acf-445e-b757-08dd476e8eef?width=800)

![](https://vab.dk/i/MOLIRIMEDIA/550db31a-0c6e-42c0-bee0-08dd476e8eef?width=800)

![](https://vab.dk/i/MOLIRIMEDIA/ad9db3c4-6acf-445e-b757-08dd476e8eef?width=800)

![](https://vab.dk/i/MOLIRIMEDIA/550db31a-0c6e-42c0-bee0-08dd476e8eef?width=800)

Familiebolig

3

72 m²

5884 kr.

11400 kr.

![](https://vab.dk/i/MOLIRIMEDIA/186b73bf-c9d0-4fee-c3f7-08dd476e8eef?width=800)






![](https://vab.dk/i/MOLIRIMEDIA/186b73bf-c9d0-4fee-c3f7-08dd476e8eef?width=800)

![](https://vab.dk/i/MOLIRIMEDIA/7f2fe4e8-b42e-4635-c05a-08dd476e8eef?width=800)

![](https://vab.dk/i/MOLIRIMEDIA/186b73bf-c9d0-4fee-c3f7-08dd476e8eef?width=800)

![](https://vab.dk/i/MOLIRIMEDIA/7f2fe4e8-b42e-4635-c05a-08dd476e8eef?width=800)

Familiebolig

3

76 m²

5950 kr.

14100 kr.

Ungdomsbolig

1

26 m²

2031 kr.

6093 kr.

![](https://vab.dk/i/MOLIRIMEDIA/f2348017-b13f-43e0-c220-08dd476e8eef?width=800)






![](https://vab.dk/i/MOLIRIMEDIA/f2348017-b13f-43e0-c220-08dd476e8eef?width=800)

![](https://vab.dk/i/MOLIRIMEDIA/650e71d7-da9c-40db-c621-08dd476e8eef?width=800)

![](https://vab.dk/i/MOLIRIMEDIA/f2348017-b13f-43e0-c220-08dd476e8eef?width=800)

![](https://vab.dk/i/MOLIRIMEDIA/650e71d7-da9c-40db-c621-08dd476e8eef?width=800)

## Afdelingens afstande til

Indkøbsmuligheder

meter

Park & natur

meter

Træning

meter

Bus

meter

Skole/uddanelse

meter

Institution

meter

## Afdelingsdokumenter

Her finder du nyttig information om din afdeling, såsom husorden, vedligeholdelse af dit lejemål m.m.

###

                                                Behandling og Vedligeholdelse

[afd. 81 - Ungdomsboliger (Istandsættelse ved fraflytning).pdf](https://vab.dk/p/Files/boligdata/BeboerMapper/81/Behandling_Vedligeholdelse/afd.-81---Ungdomsboliger--Istands&#xE6;ttelse-ved-fraflytning-.pdf)

###

                                                Budget

[afd. 81 - 2015.pdf](https://vab.dk/p/Files/boligdata/BeboerMapper/81/Budget/afd.-81---2015.pdf)
                                            [Afd. 81 - 2016.pdf](https://vab.dk/p/Files/boligdata/BeboerMapper/81/Budget/Afd.-81---2016.pdf)
                                            [afd. 81 - 2017.pdf](https://vab.dk/p/Files/boligdata/BeboerMapper/81/Budget/afd.-81---2017.pdf)
                                            [afd. 81 - 2018.pdf](https://vab.dk/p/Files/boligdata/BeboerMapper/81/Budget/afd.-81---2018.pdf)
                                            [Afd. 81 - 2020.pdf](https://vab.dk/p/Files/boligdata/BeboerMapper/81/Budget/Afd.-81---2020.pdf)
                                            [afd. 81 - 2022.pdf](https://vab.dk/p/Files/boligdata/BeboerMapper/81/Budget/afd.-81---2022.pdf)
                                            [afd. 81 - 2023.pdf](https://vab.dk/p/Files/boligdata/BeboerMapper/81/Budget/afd.-81---2023.pdf)
                                            [afd. 81 - 2024.pdf](https://vab.dk/p/Files/boligdata/BeboerMapper/81/Budget/afd.-81---2024.pdf)
                                            [afd. 81 - 2025.pdf](https://vab.dk/p/Files/boligdata/BeboerMapper/81/Budget/afd.-81---2025.pdf)
                                            [afd. 81 - 2026.pdf](https://vab.dk/p/Files/boligdata/BeboerMapper/81/Budget/afd.-81---2026.pdf)

###

                                                Råderet

[Afd. 81 Råderet Standard - Hejrevej 1-15 og 17-31.pdf](https://vab.dk/p/Files/boligdata/BeboerMapper/81/R&#xE5;deret/Afd.-81-R&#xE5;deret-Standard---Hejrevej-1-15-og-17-31.pdf)
                                            [Afd. 81 Råderetskatalog - Hejrevej 26-46 og 33-65.pdf](https://vab.dk/p/Files/boligdata/BeboerMapper/81/R&#xE5;deret/Afd.-81-R&#xE5;deretskatalog---Hejrevej-26-46-og-33-65.pdf)
                                            [afd. 81 råderetskatalog.pdf](https://vab.dk/p/Files/boligdata/BeboerMapper/81/R&#xE5;deret/afd.-81-r&#xE5;deretskatalog.pdf)

###

                                                Drift- og vedligeholdelsesplaner

[afd. 81 - 2023.pdf](https://vab.dk/p/Files/boligdata/BeboerMapper/81/Drift-%20og%20vedligeholdelsesplaner/afd.-81---2023.pdf)
                                            [afd. 81 - 2025.pdf](https://vab.dk/p/Files/boligdata/BeboerMapper/81/Drift-%20og%20vedligeholdelsesplaner/afd.-81---2025.pdf)
                                            [Afd. 81 - 2026.pdf](https://vab.dk/p/Files/boligdata/BeboerMapper/81/Drift-%20og%20vedligeholdelsesplaner/Afd.-81---2026.pdf)

###

                                                Diverse

[afd. 81 - information vedrørende varmetillæg 1.pdf](https://vab.dk/p/Files/boligdata/BeboerMapper/81/Diverse/afd.-81---information-vedr&#xF8;rende-varmetill&#xE6;g-1.pdf)
                                            [afd. 81 - information vedrørende varmetillæg 2.pdf](https://vab.dk/p/Files/boligdata/BeboerMapper/81/Diverse/afd.-81---information-vedr&#xF8;rende-varmetill&#xE6;g-2.pdf)
                                            [Afd. 81 - Ladestander brugerfolder - Nortec Go 3.0.pdf](https://vab.dk/p/Files/boligdata/BeboerMapper/81/Diverse/Afd.-81---Ladestander-brugerfolder---Nortec-Go-3.0.pdf)

###

                                                Vejledning til budget og regnskab

[Folder Læs og forstå budget og regnskab.pdf](https://vab.dk/p/Files/boligdata/BeboerMapper/F&#xE6;lles/Vejledning%20til%20budget%20og%20regnskab/Folder-L&#xE6;s-og-forst&#xE5;-budget-og-regnskab.pdf)

###

                                                Behandling og Vedligeholdelse (Fælles)

[Behandling og vedligeholdelsesvejledning.pdf](https://vab.dk/p/Files/boligdata/BeboerMapper/F&#xE6;lles/Behandling_Vedligeholdelse/Behandling-og-vedligeholdelsesvejledning.pdf)
                                            [Det kan betale sig at spare på ressourcerne.pdf](https://vab.dk/p/Files/boligdata/BeboerMapper/F&#xE6;lles/Behandling_Vedligeholdelse/Det-kan-betale-sig-at-spare-p&#xE5;-ressourcerne.pdf)
                                            [Luft ud.pdf](https://vab.dk/p/Files/boligdata/BeboerMapper/F&#xE6;lles/Behandling_Vedligeholdelse/Luft-ud.pdf)
                                            [Standardvedligeholdelsesreglement.pdf](https://vab.dk/p/Files/boligdata/BeboerMapper/F&#xE6;lles/Behandling_Vedligeholdelse/Standardvedligeholdelsesreglement.pdf)
                                            [Termostatventiler.pdf](https://vab.dk/p/Files/boligdata/BeboerMapper/F&#xE6;lles/Behandling_Vedligeholdelse/Termostatventiler.pdf)
                                            [Vandmåler.pdf](https://vab.dk/p/Files/boligdata/BeboerMapper/F&#xE6;lles/Behandling_Vedligeholdelse/Vandm&#xE5;ler.pdf)
                                            [Vedligeholdelse af sanitet.pdf](https://vab.dk/p/Files/boligdata/BeboerMapper/F&#xE6;lles/Behandling_Vedligeholdelse/Vedligeholdelse-af-sanitet.pdf)
                                            [Vedligeholdelse flyttekøkkener.pdf](https://vab.dk/p/Files/boligdata/BeboerMapper/F&#xE6;lles/Behandling_Vedligeholdelse/Vedligeholdelse-flyttek&#xF8;kkener.pdf)
                                            [Vedligeholdelse laminatbordplader.pdf](https://vab.dk/p/Files/boligdata/BeboerMapper/F&#xE6;lles/Behandling_Vedligeholdelse/Vedligeholdelse-laminatbordplader.pdf)

###

                                                Husorden (Fælles)

[Liste over forbudte hunderacer.pdf](https://vab.dk/p/Files/boligdata/BeboerMapper/F&#xE6;lles/Husorden/Liste-over-forbudte-hunderacer.pdf)
                                            [Standard husorden - Arabisk.pdf](https://vab.dk/p/Files/boligdata/BeboerMapper/F&#xE6;lles/Husorden/Standard-husorden---Arabisk.pdf)
                                            [Standard husorden.pdf](https://vab.dk/p/Files/boligdata/BeboerMapper/F&#xE6;lles/Husorden/Standard-husorden.pdf)

###

                                                Råderet (Fælles)

[Råderetsreglerne.pdf](https://vab.dk/p/Files/boligdata/BeboerMapper/F&#xE6;lles/R&#xE5;deret/R&#xE5;deretsreglerne.pdf)

## Afdelingsbestyrelsesmedlemmer

Navn

Titel

Email

Telefon

Vivie Blyme

Formand

bestyrelsenafdhejrevej@gmail.com

31795475

Kristine Andersen

Medlem

Sonja Jensen

Medlem

Per Christensen

Medlem

Hanne Jensen

Medlem

Ulla Alenkær

Suppleant

Tina Røjkjær Petersen

Suppleant

## Kontaktpersoner i afdelingen

### Anne Suhr

Udlejningssagsbehandler

udlejning@vab.dk

### Channie Schleicher

Teknisk sagsbehandler

midt@vab.dk

### Evy Marie Nielsen

Driftschef

midt@vab.dk

### Maria Nørregaard Nielsen

Inspektør

midt@vab.dk

### Rikke Støving Andersen

Økonomisk Sagsbehandler

### Sofie Anna Kristensen

Elev

okonomi@vab.dk

### Vinni Barsøe

Teknisk sagsbehandler

midt@vab.dk
