---
title: "Afdeling 9 - Rønne Alle"
description: "Afdeling 9 - Rønne Alle"
date: "2026-05-15"
created: "2025-07-01"
---

-
-
-
-
-

https://maps.google.dk/?q=55.7212747,11.4707151

# Rønne Alle

Afdeling 9

## Velkommen til Rønne Allé 27-43 (U)

Enfamiliehuse opført i gule sten i 1½ plan, 9 boliger - 3 rums. Byggeår 1957.

## Faciliteter

Husdyr

Ja

Det er tilladt at holde et husdyr pr. lejemål.

TV og internet

Ja

Lejer skal selv vælge sin TV og internetudbyder og betale direkte til udbyderen. Der er fibernet.

Vaskeri

Nej

Der findes ikke vaskeri i afdelingen

Hårde hvidevarer

Ja

Komfur, emhætte og køleskab.

## Boligtyper i afdelingen

Familiebolig

3 værelses

Familiebolig

Familiebolig

4 værelses

Familiebolig

##

Angivet husleje er ex. forbrug

Boligtype

Værelser

Størrelse

Husleje

Indskud/dp

Plantegning

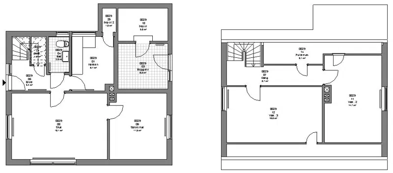
Familiebolig

3

120 m²

5238 kr.

19900 kr.

![](https://vab.dk/i/MOLIRIMEDIA/590180c3-d24a-423b-c21d-08dd476e8eef?width=800)






![](https://vab.dk/i/MOLIRIMEDIA/590180c3-d24a-423b-c21d-08dd476e8eef?width=800)

![](https://vab.dk/i/MOLIRIMEDIA/347ee2a1-2f0c-403d-c41a-08dd476e8eef?width=800)

![](https://vab.dk/i/MOLIRIMEDIA/590180c3-d24a-423b-c21d-08dd476e8eef?width=800)

![](https://vab.dk/i/MOLIRIMEDIA/347ee2a1-2f0c-403d-c41a-08dd476e8eef?width=800)

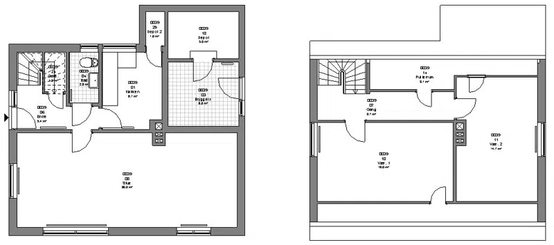
Familiebolig

3

120 m²

5238 kr.

19900 kr.

![](https://vab.dk/i/MOLIRIMEDIA/9126fb01-255f-40ae-bc2d-08dd476e8eef?width=800)






![](https://vab.dk/i/MOLIRIMEDIA/9126fb01-255f-40ae-bc2d-08dd476e8eef?width=800)

![](https://vab.dk/i/MOLIRIMEDIA/8dfa8ebd-702a-4bc9-c1be-08dd476e8eef?width=800)

![](https://vab.dk/i/MOLIRIMEDIA/9126fb01-255f-40ae-bc2d-08dd476e8eef?width=800)

![](https://vab.dk/i/MOLIRIMEDIA/8dfa8ebd-702a-4bc9-c1be-08dd476e8eef?width=800)

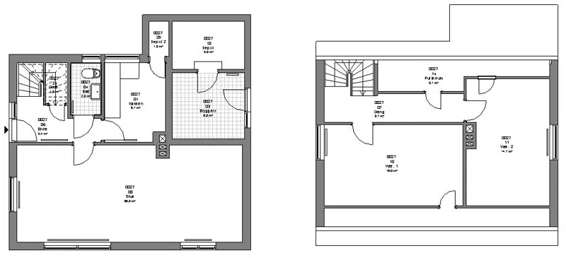
Familiebolig

4

120 m²

5238 kr.

19000 kr.

![](https://vab.dk/i/MOLIRIMEDIA/d4311a22-0ae5-48fb-c766-08dd476e8eef?width=800)






![](https://vab.dk/i/MOLIRIMEDIA/d4311a22-0ae5-48fb-c766-08dd476e8eef?width=800)

![](https://vab.dk/i/MOLIRIMEDIA/a2476204-95d1-4982-c170-08dd476e8eef?width=800)

![](https://vab.dk/i/MOLIRIMEDIA/d4311a22-0ae5-48fb-c766-08dd476e8eef?width=800)

![](https://vab.dk/i/MOLIRIMEDIA/a2476204-95d1-4982-c170-08dd476e8eef?width=800)

## Afdelingens afstande til

Indkøbsmuligheder

meter

Park & natur

meter

Træning

meter

Bus

meter

Skole/uddanelse

meter

Institution

meter

## Afdelingsdokumenter

Her finder du nyttig information om din afdeling, såsom husorden, vedligeholdelse af dit lejemål m.m.

###

                                                Budget

[afd. 9 - 2015.pdf](https://vab.dk/p/Files/boligdata/BeboerMapper/9/Budget/afd.-9---2015.pdf)
                                            [Afd. 9 - 2016.pdf](https://vab.dk/p/Files/boligdata/BeboerMapper/9/Budget/Afd.-9---2016.pdf)
                                            [afd. 9 - 2017.pdf](https://vab.dk/p/Files/boligdata/BeboerMapper/9/Budget/afd.-9---2017.pdf)
                                            [afd. 9 - 2018.pdf](https://vab.dk/p/Files/boligdata/BeboerMapper/9/Budget/afd.-9---2018.pdf)
                                            [afd. 9 - 2019.pdf](https://vab.dk/p/Files/boligdata/BeboerMapper/9/Budget/afd.-9---2019.pdf)
                                            [Afd. 9 - 2020.pdf](https://vab.dk/p/Files/boligdata/BeboerMapper/9/Budget/Afd.-9---2020.pdf)
                                            [afd. 9 - 2021.pdf](https://vab.dk/p/Files/boligdata/BeboerMapper/9/Budget/afd.-9---2021.pdf)
                                            [afd. 9 - 2022.pdf](https://vab.dk/p/Files/boligdata/BeboerMapper/9/Budget/afd.-9---2022.pdf)
                                            [afd. 9 - 2023.pdf](https://vab.dk/p/Files/boligdata/BeboerMapper/9/Budget/afd.-9---2023.pdf)
                                            [afd. 9 - 2024.pdf](https://vab.dk/p/Files/boligdata/BeboerMapper/9/Budget/afd.-9---2024.pdf)
                                            [afd. 9 - 2025.pdf](https://vab.dk/p/Files/boligdata/BeboerMapper/9/Budget/afd.-9---2025.pdf)
                                            [afd. 9 - 2026 .pdf](https://vab.dk/p/Files/boligdata/BeboerMapper/9/Budget/afd.-9---2026-.pdf)

###

                                                Markvandringsrapport

[afd. 9 - 2019.pdf](https://vab.dk/p/Files/boligdata/BeboerMapper/9/Markvandringsrapport/afd.-9---2019.pdf)

###

                                                Råderet

[Afd. 9.pdf](https://vab.dk/p/Files/boligdata/BeboerMapper/9/R&#xE5;deret/Afd.-9.pdf)

###

                                                Drift- og vedligeholdelsesplaner

[afd. 9 - 2022.pdf](https://vab.dk/p/Files/boligdata/BeboerMapper/9/Drift-%20og%20vedligeholdelsesplaner/afd.-9---2022.pdf)
                                            [afd. 9 - 2025.pdf](https://vab.dk/p/Files/boligdata/BeboerMapper/9/Drift-%20og%20vedligeholdelsesplaner/afd.-9---2025.pdf)
                                            [afd. 9 - 2026.pdf](https://vab.dk/p/Files/boligdata/BeboerMapper/9/Drift-%20og%20vedligeholdelsesplaner/afd.-9---2026.pdf)

###

                                                Vejledning til budget og regnskab

[Folder Læs og forstå budget og regnskab.pdf](https://vab.dk/p/Files/boligdata/BeboerMapper/F&#xE6;lles/Vejledning%20til%20budget%20og%20regnskab/Folder-L&#xE6;s-og-forst&#xE5;-budget-og-regnskab.pdf)

###

                                                Behandling og Vedligeholdelse (Fælles)

[Behandling og vedligeholdelsesvejledning.pdf](https://vab.dk/p/Files/boligdata/BeboerMapper/F&#xE6;lles/Behandling_Vedligeholdelse/Behandling-og-vedligeholdelsesvejledning.pdf)
                                            [Det kan betale sig at spare på ressourcerne.pdf](https://vab.dk/p/Files/boligdata/BeboerMapper/F&#xE6;lles/Behandling_Vedligeholdelse/Det-kan-betale-sig-at-spare-p&#xE5;-ressourcerne.pdf)
                                            [Luft ud.pdf](https://vab.dk/p/Files/boligdata/BeboerMapper/F&#xE6;lles/Behandling_Vedligeholdelse/Luft-ud.pdf)
                                            [Standardvedligeholdelsesreglement.pdf](https://vab.dk/p/Files/boligdata/BeboerMapper/F&#xE6;lles/Behandling_Vedligeholdelse/Standardvedligeholdelsesreglement.pdf)
                                            [Termostatventiler.pdf](https://vab.dk/p/Files/boligdata/BeboerMapper/F&#xE6;lles/Behandling_Vedligeholdelse/Termostatventiler.pdf)
                                            [Vandmåler.pdf](https://vab.dk/p/Files/boligdata/BeboerMapper/F&#xE6;lles/Behandling_Vedligeholdelse/Vandm&#xE5;ler.pdf)
                                            [Vedligeholdelse af sanitet.pdf](https://vab.dk/p/Files/boligdata/BeboerMapper/F&#xE6;lles/Behandling_Vedligeholdelse/Vedligeholdelse-af-sanitet.pdf)
                                            [Vedligeholdelse flyttekøkkener.pdf](https://vab.dk/p/Files/boligdata/BeboerMapper/F&#xE6;lles/Behandling_Vedligeholdelse/Vedligeholdelse-flyttek&#xF8;kkener.pdf)
                                            [Vedligeholdelse laminatbordplader.pdf](https://vab.dk/p/Files/boligdata/BeboerMapper/F&#xE6;lles/Behandling_Vedligeholdelse/Vedligeholdelse-laminatbordplader.pdf)

###

                                                Husorden (Fælles)

[Liste over forbudte hunderacer.pdf](https://vab.dk/p/Files/boligdata/BeboerMapper/F&#xE6;lles/Husorden/Liste-over-forbudte-hunderacer.pdf)
                                            [Standard husorden - Arabisk.pdf](https://vab.dk/p/Files/boligdata/BeboerMapper/F&#xE6;lles/Husorden/Standard-husorden---Arabisk.pdf)
                                            [Standard husorden.pdf](https://vab.dk/p/Files/boligdata/BeboerMapper/F&#xE6;lles/Husorden/Standard-husorden.pdf)

###

                                                Råderet (Fælles)

[Råderetsreglerne.pdf](https://vab.dk/p/Files/boligdata/BeboerMapper/F&#xE6;lles/R&#xE5;deret/R&#xE5;deretsreglerne.pdf)

## Afdelingsbestyrelsesmedlemmer

Navn

Titel

Email

Telefon

Brian Hansen

Formand

Per Pedersen

Medlem

Tove Hansen

Medlem

Hans Hansen

Suppleant

Morten Holm Jensen

Suppleant

## Kontaktpersoner i afdelingen

### Anne Suhr

Udlejningssagsbehandler

udlejning@vab.dk

### Channie Schleicher

Teknisk sagsbehandler

midt@vab.dk

### Christina Lebech Løve

Økonomisk sagsbehandler

okonomi@vab.dk

### Evy Marie Nielsen

Driftschef

midt@vab.dk

### Maria Nørregaard Nielsen

Inspektør

midt@vab.dk

### Vinni Barsøe

Teknisk sagsbehandler

midt@vab.dk
